Grundstück: Das Grundstück hat eine Größe von ca. 1.181 m². Es hat eine Straßenfront von ca. 20 m und ist ca. 60 m tief. Das Freizeitgrundstück ist mit mehreren Gebäuden bebaut und mit einer Reihe von Kiefern bewachsen.
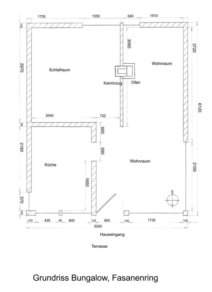
Objekt: Auf dem Grundstück stehen ein Bungalow, ein Nebengebäude und ein Sanitärgebäude. Der teilweise massiv und teilweise in Holz gebaute Bungalow wurde in den 1960er Jahren errichtet und hat eine Wohnfläche von ca. 32 m² sowie eine teilweise überdachte Terrasse von ca. 15 m². Das Dach inkl. der Holzkonstruktion wurde vor 10 Jahre erneuert und hat eine neue Dacheindeckung mit Schweißbahnen erhalten. Im inneren des Bungalows hat der Eigentümer mit dem Umbau begonnen aber diesen nicht fertiggestellt. Im Moment existieren 3 Räume. Er wollte daraus zwei Räume gestalten, einen Wohnraum mit offener Küche und ein Bad. In der Mitte des Gebäudes steht ein Kaminzug mit einem Dauerbrandofen. Dieser Einbau wurde Mitte der 1980er Jahre beantragt, genehmigt und realisiert. Er muss jedoch durch den Schornsteinfeger geprüft und neu abgenommen werden. Im Eingangsbereich des Grundstücks steht ein kleines Blockbohlenhaus mit ca. 10 m² Nutzfläche. Es wurde in den 2000er Jahren als Sanitärgebäude errichtet. Im Gebäude befinden sich das WC, eine Dusche, ein Waschbecken und ein Abwaschtisch. Das Warmwasser wird über einen Elektroboiler erzeugt. Im hinteren Teil des Grundstücks steht noch ein Werkstatt- und Lagergebäude mit ca. 20 m² Nutzfläche.
Erschließung: Das Grundstück ist mit Strom und Telefon erschlossen, wobei der Telefonmast umgefallen und dabei das Telefonkabel zerrissen wurde. Dazu muss dann durch den Käufer mit der Telekom ein Termin zur Wiederherstellung des Kabels abgestimmt werden. Die Trinkwasserversorgung erfolgt über einen eigenen ca. 13 m tiefen Brunnen mit Tauchpumpe. Da das Grundstück eine längere Zeit nicht genutzt wurde ist dieser versandet. Er müsste neu angesaugt werden oder es müsste eine neue Bohrung erfolgen. Für das Abwasser existiert eine alte Sammelgrube, die aber nicht mehr den Vorschriften entspricht. Dazu muss eine neue Sammelgrube mit einem Absaugrohr am Grundstücksrand eingebaut werden, um dem Entsorger die Möglichkeit zur sofortigen Absaugung zu geben, ohne dass das Grundstück betreten noch einer vor Ort sein muss. Das Grundstück ist eingezäunt. Auf der linken Seite wurde ein komplett neuer Zaun errichtet. Das Grundstück kann auch von der hinteren Grundstücksfront über einen Waldweg befahren werden. Dort ist eine PKW- Zufahrt durch ein größeres Tor möglich. Der Fasanenring selbst ist ein unbefestigter Waldweg.
Finanzierungszertifikat
In nur zwei Minuten zu Ihrem persönlichen Finanzierungszertifkat.
Infos
| Vermarktungsart | Kaufen |
|---|---|
| Grundstücksfläche | 1.181 m2 |
| Erschließung | Teilerschlossen |
| Bebaubar nach | Aussengebiet |
| Verfügbar ab | nach Kaufpreiszahlung |
Kosten
| Miete pro Jahr |
49.000 € |
|---|---|
| Provision |
7,14% inkl. MwSt. vom Kaufpreis Die Nachweis- bzw. Vermittlungsprovision ist verdient und fällig bei notariellem Kaufvertragsabschluss und wird vom Käufer getragen. |
Finanzierungsrechner:
Kaufpreis:
600.000 €
Eigenkapital:
600.000 €
Monatliche Rate
0 €
Effektiver Jahreszins
0 %
Sollzinsbindung
10 Jahre
Beschreibung des Objekts
Lage
Eigentum: Das Grundstück befindet sich in Privatbesitz. Die Eigentumsverhältnisse sind klar geregelt. Der jetzige Eigentümer ist im Grundbuch eingetragen.
Kaufpreis: Der Kaufpreis beträgt 49.000,- €. Das Grundstück und die Aufbauten werden so verkauft wie sie liegen und stehen inkl. der vorhandenen Einrichtung, der Werkzeuge und Materialien.
Dieses Exposé gilt als Objektnachweis und ist nur für den Empfänger bestimmt. Die Nachweis- bzw. Vermittlungsprovision von 7,14% inkl. der MwSt. vom Kaufpreis, ist verdient und fällig bei notariellem Kaufvertragsabschluss und wird vom Käufer getragen. Die vorstehenden Angaben beruhen auf Aussagen und Unterlagen des Eigentümers, für deren Richtigkeit wir, trotz sorgfältiger Bearbeitung keine Gewähr übernehmen können.
Sonstige Angaben
Standort: Das Freizeitgrundstück liegt in der ca. 3.200 Einwohner zählenden Gemeinde Fichtenwalde, einem Ortsteil der Stadt Beelitz, ca. 20 km südwestlich von Potsdam, im Landkreis Potsdam-Mittelmark. Fichtenwalde ist der jüngste und im Moment noch der zweitgrößte Ortsteil der Stadt Beelitz. 1908 als Wochenendsiedlung von Erholung suchenden Berlinern gegründet, wurde der Ort mit dem Ausbau der Infrastruktur in den 1920er Jahren für viele zum festen Wohnsitz. Die saubere Luft und die idyllische Lage in den dichten Wäldern auf dem Beelitzer Sander boten eine verlockende Alternative zum Großstadttrubel. „Raus in die Fichten“ hieß es damals, obwohl ja eigentlich Kiefern gemeint waren. 1929 erhielt die Siedlung offiziell den Namen Fichtenwalde, 1950 wurde sie selbstständige Gemeinde. Nach 1990 erlebte Fichtenwalde einen rasanten Aufschwung als Wohnort. Innerhalb nur eines Jahrzehntes verdreifachte sich die Einwohnerzahl. Fichtenwalde ist insbesondere bei jungen Familien und Pensionären als Wohnort gefragt. Das liegt immer noch vor allem an der ruhigen Wohnlage unter dem Dach der Bäume bei gleichzeitig optimaler Verkehrsanbindung. So ist die Zufahrt zur Autobahn 9 nur einen Kilometer vom Ortsausgang entfernt, ein Bus nach Potsdam fährt stündlich. Außerdem gibt es hier eine gute Nahversorgung mit Lebensmittelmärkten und einer Postfiliale sowie kirchliche Einrichtungen. Fichtenwalde verfügt auch über eine eigene Kita, eine Grundschule, einen Jugendclub sowie Allgemein– und Fachärzte und Heilpraktiker. Den Anwohnern stehen auch Sportanlagen sowie das Hans-Grade-Haus als gesellschaftlich-kulturelles Herz des Ortes zur Verfügung. Das Leben pulsiert in Fichtenwalde in besonderem Maße. Es gibt zahlreiche Vereine, in denen sich Bürger zum Beispiel für die Feuerwehr oder die Kinder im Ort engagieren und in denen sie ein gutes Stück ihrer Freizeit miteinander teilen.
Lage: Das Freizeitgrundstück liegt nordwestlich des Ortszentrums von Fichtenwalde in einem größeren Waldgebiet. Der Fasanenring, an der das Grundstück liegt, ist eine Ringstraße mitten im Wald und ist vor allem mit Wochenendhäusern bebaut. Zum Ortszentrum sind es ca. 1,8 km. Der Spargel- und Erlebnishof Klaistow liegt ca. 800 m vom Grundstück entfernt. Zur Autobahnauffahrt Fichtenwalde an der A9 sind es ca. 4,5 km, dichter ist es zur Autobahnauffahrt Glindow an der A10, dorthin sind es ca. 1,5 km. In die Stadt Werder (Havel) sind es ca. 8km. Der Gesamtbereich am Fasanenring ist als Außenbereich im Flächennutzungsplan gekennzeichnet. Dementsprechend gibt es bauliche Beschränkungen.
Grundriss
Grundriss Bungalow
>
>
Flurstückslage Fasanenring 23
>
>