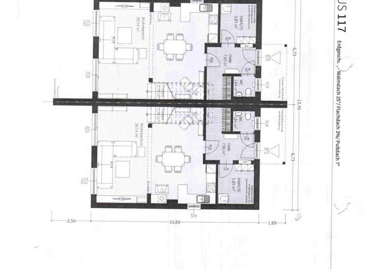
Funktionale Architektur und elegante Optik = zum Beispiel, ELK Doppelhaus 117. Farbige Fassaden-Details und Terrassentrennwände kommen hier besonders gut zu Geltung. Der großzügige Wohn-Ess-Kochbereich im Erdgeschoss lädt mit über 40 m² zum geselligen Beisammensein ein. Über eine offene Treppe kommt man in den 1. Stock mit 3 Schlafzimmern, Bad und separater Toilette. Andere DHH sind möglich. Siehe www.elkhaus.de
Grundstück für DHH in Kleinmachnow
14532 Kleinmachnow
Die vollständige Adresse der Immobilie erhalten Sie vom Anbieter.
Auf Karte anzeigen
Die vollständige Adresse der Immobilie erhalten Sie vom Anbieter.
Finanzierungszertifikat
In nur zwei Minuten zu Ihrem persönlichen Finanzierungszertifkat.
Infos
| Vermarktungsart | Kaufen |
|---|---|
| Grundstücksfläche | 1.000 m2 |
| Erschließung | Erschlossen |
| Empfohlene Nutzung | Doppelhaus, Einfamilienhaus |
| Grundflächenzahl (GRZ) | 0.2 |
| Geschossflächenzahl (GFZ) | 0.4 |
| Bebaubar nach | wie Nachbarbebauung |
Kosten
| Miete pro Jahr |
650.000 € |
|---|---|
| Provision |
3,75 % nur für das Grundstück Bei Abschluss eines Kaufvertrages wird eine Vermittlungs-/ Nachweisprovision nur auf das Grundstück in Höhe von 3,57 % inklusive 19 % Mehrwertsteuer auf den Kaufpreis vom Käufer fällig. |
Finanzierungsrechner:
Kaufpreis:
600.000 €
Eigenkapital:
600.000 €
Monatliche Rate
0 €
Effektiver Jahreszins
0 %
Sollzinsbindung
10 Jahre
Beschreibung des Objekts
Lage
Kleinmachnow hat eine sehr schöne Lage zwischen Berlin , Teltow und Potsdam.
Sonstige Angaben
ELK tritt ausschließlich als das bauausführende Unternehmen auf.
Die Baunebenkosten wie zum Beispiel Grundsteuer, Notar, Hausanschlüsse, behördliche Gebühren sind nicht im Preis enthalten.
Eine ausführliche und transparente Investitionsaufstellung wird Ihnen zugesichert.
Unsere Hausmodelle finden Sie auf www.elkhaus.de
Zum Teil zeigen die Abbildungen Sonderausstattungen.
Änderungen des Preises oder der Ausstattung sowie Irrtümer sind vorbehalten.
Gerne planen wir den Hausbau mit ihnen auch individuell auf diesem Grundstück oder einem anderen.
Hinweis zu den gesetzlichen Pflichtangaben gemäß der EnEV:
Das hier angebotene Haus ist ein Neubauprojekt, daher liegt noch kein Energieausweis vor. Dieser wird Ihnen spätestens im Rahmen der Erstellung des Objektes ausgehändigt.
Alle Angaben sind ohne Gewähr.
Bauen mit ELKHAUS:
Als Hausherr wünschen Sie sich einen Partner, auf den Sie sich 100 %-ig verlassen können. Der immer für Sie da ist, wenn Sie ihn brauchen. Sich kümmert, wenn es darauf ankommt. Genau darin sind wir bei ELK richtig gut.
Über 60 Jahre Erfahrung im Fertighausbau:
- große Vielfalt, individuelle und flexible Gestaltung, modernes Design
- finanzielle Sicherheit durch Fixpreise
- Keller oder Bodenplatte durch unsere Partnerfirmen
- kurze Bauzeit, reibungsloser Ablauf, Fertigstellung nach Absprache
- ausgezeichnete eigene Fertigung - Qualität hat einen Namen - ELKHAUS
- unter den TOP 10 in Europa