Durch dieses charmante Einfamilienhaus in Meerbusch-Nierst ergibt sich – wenn auch selten – die außergewöhnliche Möglichkeit, dem Trubel des Alltags zu entfliehen, ohne auf die Nähe zum urbanen Geschehen verzichten zu müssen.
Umgeben von Feldern, Wiesen und Obstbäumen genießen Sie hier eine naturnahe Wohnatmosphäre, in der Kinder behütet und mit viel Freiraum aufwachsen können – eine echte Rarität in der heutigen Zeit.
Die moderne, hochwertig errichtete Doppelhaushälfte wurde 2019 fertiggestellt. Bodentiefe Fensterfronten und die offene Raumgestaltung mit integrierter Küche verleihen dem Haus eine helle, einladende Wohnqualität. Der großzügige Wohn- und Essbereich präsentiert sich als Herzstück des Hauses und wird durch die elegante Einbauküche der Marke Häcker Küchen abgerundet. Das gesamte Erdgeschoss sowie die Treppe sind mit großformatigen Feinsteinzeugfliesen (60 × 60 cm) in zeitgemäßer Betonoptik ausgestattet.
Für die Wärmeversorgung sorgt eine energieeffiziente Geothermie-Sole-Wasser-Wärmepumpe mit zentraler Warmwasserbereitung, Speicher und entsprechenden Tiefenbohrungen. In Kombination mit der Photovoltaikanlage und einer Tesla Powerwall als Stromspeicher wird über das Sommerhalbjahr nahezu vollständige Autarkie in Bezug auf Strom, Kühlung sowie Heizung und Warmwasser erreicht. Überschüssig erzeugter Strom wird zudem ins Netz eingespeist und vergütet.
Zeitlose Eleganz trifft Naturidylle – Ihr neues Zuhause in Meerbusch-Nierst
40668 Meerbusch
Die vollständige Adresse der Immobilie erhalten Sie vom Anbieter.
Auf Karte anzeigen
Die vollständige Adresse der Immobilie erhalten Sie vom Anbieter.
Infos
| Haustyp | Doppelhaushaelfte |
|---|---|
| Etagenzahl | 1 |
| Wohnfläche ca. | 196 m2 |
| Nutzfläche | 75 m2 |
| Grundstücksfläche | 610 m2 |
| Bezugsfrei ab | ab sofort |
| Zimmer | 7 |
| Schlafzimmer | 6 |
| Badezimmer | 2 |
| Haustiere | Ja |
| Garage/Stellplatz | Garage |
| Anzahl Garage/Stellplatz | 1 |
Kosten
| Kaltmiete |
3.900 € |
|---|---|
| Nebenkosten | + 250 € |
| Heizkosten | in Nebenkosten enthalten |
| Gesamtmiete | 4.150 € |
| Miete für Garage/Stellplatz | 90 € |
| Kaution o. Genossenschaftsanteile | 11700 |
Weiter mieten oder doch kaufen?
Wer in Miete wohnt, überweist dem Vermieter im Laufe der Jahre hohe Summen, die sich
auch in die eigenen vier Wände investieren lassen könnten.
Bausubstanz & Energieausweis
| Baujahr | 2019 |
|---|---|
| Objektzustand | Neuwertig |
| Qualität der Austattung | Gehoben |
| Wesentliche Energieträger | Erdwärme |
| Energieausweis | liegt vor |
| Energieausweistyp | Bedarfsausweis |
| Energieverbrauchskennwert | 15,9 kWh/(m²*a) |
| Energieeffizienzklasse | A+ |
15,9
kWh/(m²*a)
Energieeffizienzklasse A+
- A+
- A
- B
- C
- D
- E
- F
- G
- H
- 0
- 25
- 50
- 75
- 100
- 125
- 150
- 175
- 200
- 225
- >250
Beschreibung des Objekts
Ausstattung
Ausstattungsmerkmale im Überblick
Wohnfläche: ca. 196 m²
Grundstücksgröße: ca. 610 m²
Baujahr: 2019 (Neubau)
Fußbodenheizung in allen Wohnbereichen
Überdurchschnittliche Deckenhöhe für ein großzügiges Raumgefühl
Moderne Einbauküche der Marke Häcker mit hochwertigen Bosch-Einbaugeräten
3-fach verglaste Fenster für optimale Energieeffizienz und Schalldämmung
Photovoltaikanlage in Kombination mit einer Tesla Powerwall als leistungsstarkem Stromspeicher
Hochwertige Malerarbeiten: Wände mit Malervlies und weißer Dispersionsfarbe
Elektrische Rollläden
Vollunterkellerung für zusätzliche Nutz- und Abstellflächen
Hochwertige Sanitärobjekte in den Bädern
Bodenbeläge: großformatige Fliesen und edles Parkett
Garage für ein Fahrzeug
Lage
Das angebotene Haus befindet sich in Meerbusch-Nierst in einer ruhigen, kinderfreundlichen Wohngegend, die ausschließlich mit Einfamilienhäusern bebaut ist. Die Umgebung ist geprägt von viel Grün, einem harmonischen Ortsbild und einer angenehm entschleunigten Atmosphäre.
Die Fährverbindung zwischen Langst-Kierst und Düsseldorf-Kaiserswerth befindet sich in unmittelbarer Nähe. Aktuell wird über die zukünftige Weiterführung des Fährbetriebs beraten.
Sonstige Angaben
Zusätzlich zur Kaltmiete wird eine monatliche Miete für die Einbauküche in Höhe von 150 EUR erhoben.
Die Nutzung der Photovoltaikanlage erfolgt gegen eine monatliche Pauschale von 150 EUR
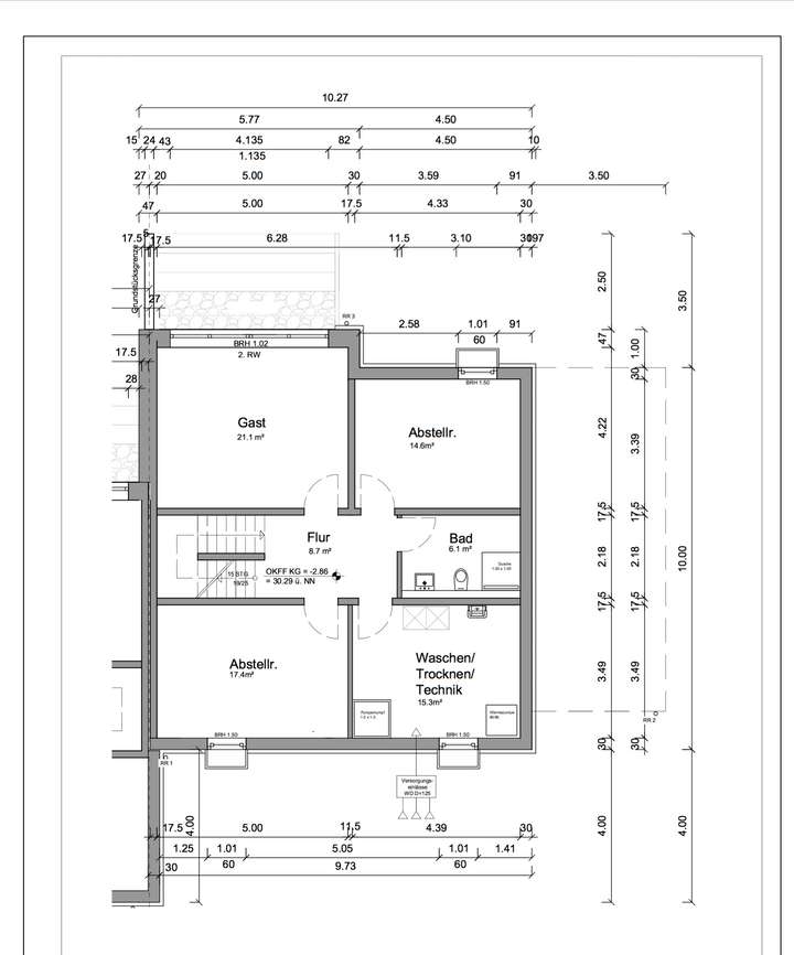
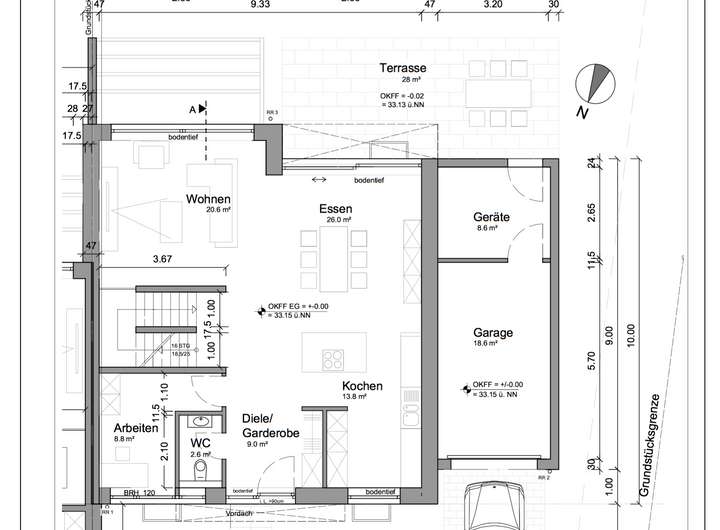
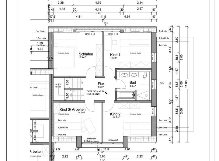
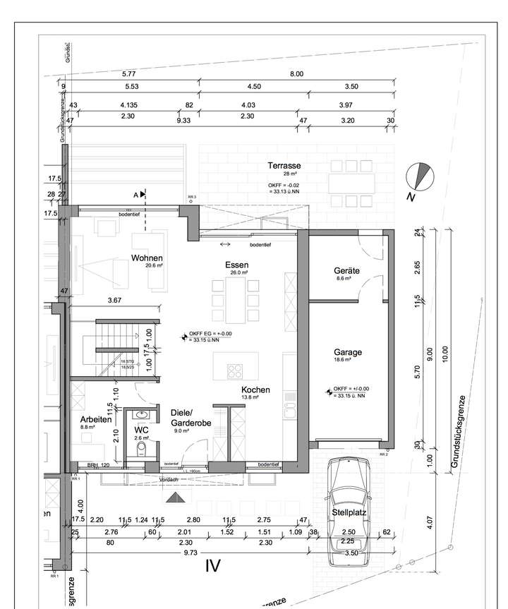
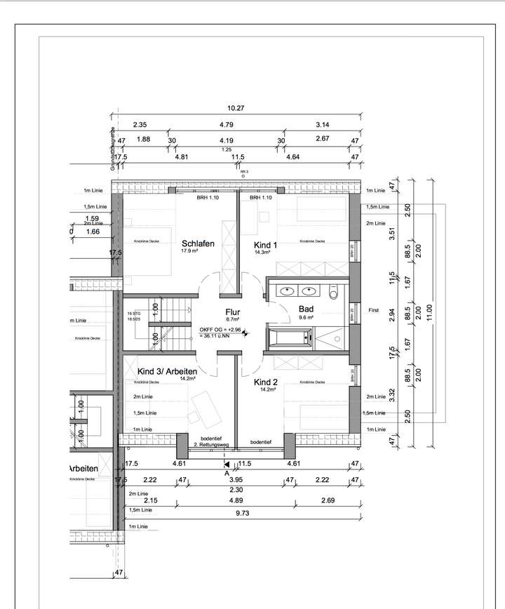
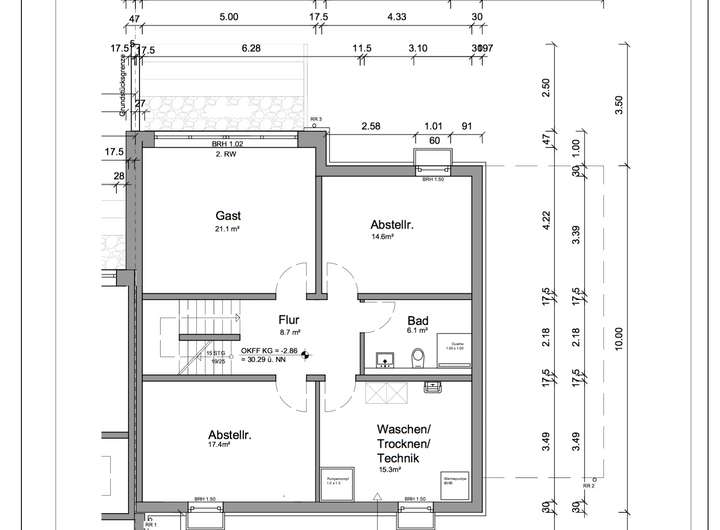
Grundriss
Grundriss Erdgeschoss
>
>
Grundriss Untergeschoss
>
>
Grundriss 1. Obergeschoss
>
>
Adresse
40668 Meerbusch
Interessante Orte
Preis- und Lageinformationen
Preistrend für Bestandsimmobilien in Meerbusch