Baujahr: ca. 1963, Anbau ca. 1983 und 2018
Grundstück: ca. 409 m² Eigenland
Wohnfläche: ca. 150 m²
Heizung: Gasheizung (ca. 1999)
Dieses in einer ruhigen, familienfreundlichen Wohngegend von Büsum gelegenes großzügiges Einfamilienhaus erwartet Sie auf einem ca. 409 m² großen Eigenland-Grundstück. Das Haus wurde ursprünglich im Jahr 1963 erbaut und in den Jahren 1983 sowie 2018 durch zwei Anbauten erweitert. Es bietet heute ca. 150 m² Wohnfläche und überzeugt durch seine durchdachte Raumaufteilung sowie den gepflegten Zustand.
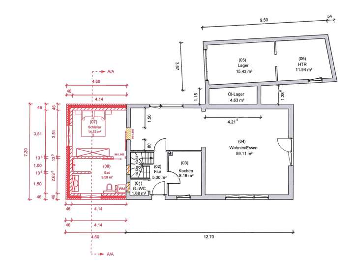
Der Eingangsbereich führt in die Küche, in den großzügigen Wohnbereich mit separatem Essplatz und in das Dachgeschoss. Das ca. 59 m² große Wohnzimmer lädt mit seinem offenen Schnitt und dem Zugang zur sonnigen Südterrasse mit elektrischer Markise zum Wohlfühlen ein. Angrenzend befindet sich ein im Jahr 2018 neu angebautes Schlafzimmer, das mit dem ebenfalls neuen, modernen Badezimmer verbunden ist. Dieses ist mit einer Walk-In-Dusche und einem Waschmaschinenanschluss ausgestattet.
Das gesamte Erdgeschoss wurde barrierearm gestaltet und eignet sich daher hervorragend für komfortables Wohnen im Alter oder das Zusammenleben mehrerer Generationen.
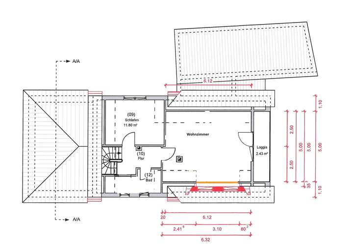
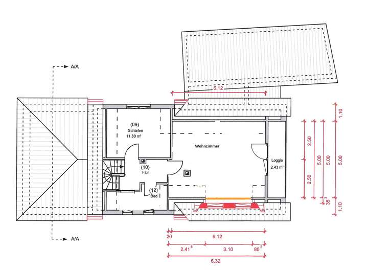
Im Dachgeschoss stehen ein saniertes Tageslichtbad, ein weiteres großzügiges Wohnzimmer mit Zugang zur Loggia in Westausrichtung sowie ein Schlafzimmer mit praktischem Einbauschrank zur Verfügung. Die Loggia ist ein idealer Rückzugsort, um entspannte Abendstunden zu genießen.
Das Haus wurde in den vergangenen Jahren umfassend energetisch modernisiert. Dazu zählen eine umfangreiche Sanierung von Dach und Wohnräumen im Dachgeschoss, überwiegend dreifach verglaste Fenster, eine Einblasdämmung im Altbau sowie elektrische Außenjalousien an nahezu allen Fenstern. Ein Glasfaseranschluss für schnelles Internet ist ebenfalls vorhanden.
Neben dem Wohnbereich bietet das Haus zwei praktische Abstellräume sowie einen separaten Waschraum mit zusätzlichem Waschmaschinenanschluss.
Bereits vorliegende Angebote zur weiteren Modernisierung – darunter für die Installation einer Wärmepumpe, das Abschleifen des Parketts sowie eine mögliche Sanierung des Balkons – sind bereits im Kaufpreis berücksichtigt. Auf Wunsch können ergänzende Angebote, etwa für Innenarbeiten, eingeholt werden.
Diese Immobilie eignet sich ideal für Familien, Paare oder Mehrgenerationenhaushalte, die ein gepflegtes Zuhause in ruhiger Lage an der Nordseeküste suchen und Wert auf bereits umgesetzte sowie planbare Modernisierungen legen.
Büsum: Teilsaniertes Einfamilienhaus für die ganze Familie mit Südterrasse und Loggia auf Eigenland
25761 Büsum
Die vollständige Adresse der Immobilie erhalten Sie vom Anbieter.
Auf Karte anzeigen
Die vollständige Adresse der Immobilie erhalten Sie vom Anbieter.
Finanzierungszertifikat
In nur zwei Minuten zu Ihrem persönlichen Finanzierungszertifkat.
Infos
| Haustyp | Einfamilienhaus |
|---|---|
| Etagenzahl | 2 |
| Wohnfläche ca. | 150 m2 |
| Grundstücksfläche | 409 m2 |
| Bezugsfrei ab | sofort |
| Zimmer | 4 |
| Schlafzimmer | 3 |
| Badezimmer | 2 |
| Garage/Stellplatz | Außenstellplatz |
| Anzahl Garage/Stellplatz | 3 |
Kosten
| Kaufpreis |
395.000 € |
|---|---|
| Provision |
2,975 % inkl. MwSt. 2,975 % Käuferprovision inkl. MwSt. , verdient und fällig mit Beurkundung des notariellen Kaufvertrages. Die Immobilienmaklerin hat einen provisionspflichtigen Maklervertrag mit dem Verkäufer in gleicher Höhe abgeschlossen. |
Finanzierungsrechner:
Kaufpreis:
600.000 €
Eigenkapital:
600.000 €
Monatliche Rate
0 €
Effektiver Jahreszins
0 %
Sollzinsbindung
10 Jahre
Bausubstanz & Energieausweis
| Baujahr | 1963 |
|---|---|
| Letzte Sanierung | 2020 |
| Objektzustand | Gepflegt |
| Heizungsart | Gas-Heizung |
| Wesentliche Energieträger | Gas |
| Energieausweis | liegt vor |
| Energieausweistyp | Bedarfsausweis |
| Energieverbrauchskennwert | 108,2 kWh/(m²*a) |
| Energieeffizienzklasse | D |
108,2
kWh/(m²*a)
Energieeffizienzklasse D
- A+
- A
- B
- C
- D
- E
- F
- G
- H
- 0
- 25
- 50
- 75
- 100
- 125
- 150
- 175
- 200
- 225
- >250
Beschreibung des Objekts
Lage
Das gepflegte Wohnhaus befindet sich in ruhiger Wohnlage im beliebten Nordseeheilbad Büsum. Alle Einrichtungen des täglichen Bedarfs wie Supermärkte, Bäckereien, Cafés, Restaurants sowie ein Ärztezentrum sind innerhalb von ca. 10 Gehminuten (rund 800 m) bequem erreichbar. Familien mit Kindern profitieren von einer sehr guten Infrastruktur: Die Kindertagesstätte „Spatzennest“ sowie die Kita „Hoppetosse“ liegen jeweils nur etwa 10 Gehminuten entfernt und bieten integrative Ganztagsbetreuung an. Die Grund- und Gemeinschaftsschule „Schule am Meer“ sowie das weiterführende Gymnasium liegen ebenfalls in fußläufiger Entfernung von rund 800–900 m.
Für Freizeit und Erholung bietet Büsum ein vielfältiges Angebot: Das Erlebnisbad „Meerzeit“ mit Wellenbecken, Sauna und Spa-Bereich, der Museumshafen mit maritimem Flair sowie das Museum am Meer liegen in der Nähe und laden zum Entspannen und Entdecken ein. Sportbegeisterte finden in der Umgebung zahlreiche Rad- und Spazierwege sowie Wassersportmöglichkeiten wie Surfen, Kiten und Stand-Up-Paddling – oder besuchen den nahegelegenen 18-Loch-Golfplatz Büsum-Dithmarschen.
Auch verkehrstechnisch ist Büsum gut angebunden: Der Bahnhof ist ca. 800 m entfernt und bietet mit der Regionalbahn RB 63 stündliche Verbindungen nach Heide und weiter Richtung Neumünster oder Hamburg. Zusätzlich verkehren die Buslinien 2610 und 2612, ergänzt durch ein Anruflinientaxi-Angebot. Die nächstgrößere Stadt Heide liegt nur ca. 15 km entfernt und ist in wenigen Minuten mit dem Zug oder Auto erreichbar – hier finden sich weiterführende Schulen, Fachärzte sowie ein breiteres Einzelhandelsangebot.
Insgesamt bietet die Lage eine ideale Kombination aus ruhigem, familienfreundlichem Wohnen, guter Nahversorgung, vielfältigen Freizeitmöglichkeiten und einer verlässlichen Verkehrsanbindung – sowohl für den Alltag als auch für entspannte Stunden an der Nordsee.
Sonstige Angaben
Bitte beachten Sie, dass wir Ihre Anfragen nur bearbeiten können, wenn Sie uns die, im Anhang befindliche, Datenschutzerklärung ausgefüllt haben.
Unser gesamtes Immobilienangebot finden Sie auch auf www.dreessen-immobilien.de
Unsere Bürozeiten
Montag bis Freitag - 09:00 Uhr bis 17:00 Uhr
Die Holmer Dreeßen GmbH übernimmt keine Gewähr für vom Verkäufer oder von Dritten gemachte Angaben, Exposéhaftung ausgeschlossen. Irrtümer in der Beschreibung und Zwischenverkauf vorbehalten.
Wir möchten Sie ausdrücklich darauf hinweisen, dass die genannten Wohn- und Nutzflächen von der DIN-Wohnflächenberechnung abweichen können. Alle von uns genannten Maße und Daten sind ca. Maße/Daten und sind vor Ort zu prüfen.
Ferner haften wir nicht für Erschließungsgrad, Wohn- und Nutzflächenberechnung, Beschaffenheit, Verwertbarkeit, steuerliche, gewerbliche und baurechtliche Fragen.
Weitere Dokumente
DatenschutzerklärungGrundriss
Grundriss Erdgeschoss
>
>
Grundriss Dachgeschoss
>
>
Adresse
25761 Büsum
Interessante Orte
Preis- und Lageinformationen
Preistrend für Bestandsimmobilien in Büsum