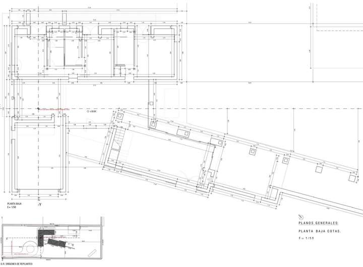
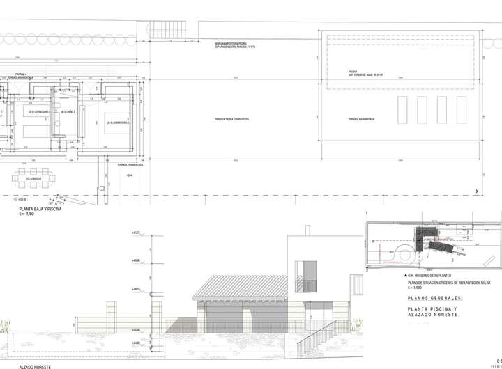
Grundstück mit altem Baulizenzprojekt in Canyamel. 420 Quadratmeter Wohnfläche mit 4 Schlafzimmern, 3 Bädern, Küche, Wohnzimmer, Keller, Fitnessraum, 3 Terrassen und Swimmingpool, verteilt auf Erdgeschoss, Obergeschoss und Keller. Es liegt nur 3 Kilometer vom Golfplatz Canyamel, 5 km vom Golfplatz Pula und 5 km vom Strand entfernt.
Verwirklichen Sie Ihren ganz persönlichen Wohntraum auf einem phantastischem Grundstück.
Als Ansprechpartner steht Ihnen Herr Alvaro Sanchez Boyero in unserem Büro in Cala Ratjada gerne zur Verfügung.
Canyamel: Grundstück mit Bau-Lizenz. Preis auf Anfrage. Obj.7369
07580 Capdepera
Die vollständige Adresse der Immobilie erhalten Sie vom Anbieter.
Auf Karte anzeigen
Die vollständige Adresse der Immobilie erhalten Sie vom Anbieter.
Finanzierungszertifikat
In nur zwei Minuten zu Ihrem persönlichen Finanzierungszertifkat.
Infos
| Vermarktungsart | Kaufen |
|---|---|
| Grundstücksfläche | 17.118 m2 |
Kosten
| Miete pro Jahr |
0 € |
|---|---|
| Provision | Nein |
Finanzierungsrechner:
Kaufpreis:
600.000 €
Eigenkapital:
600.000 €
Monatliche Rate
0 €
Effektiver Jahreszins
0 %
Sollzinsbindung
10 Jahre
Beschreibung des Objekts
Lage
Canyamel ist ein idyllisches und ruhiges Küstendorf an der Ostküste Mallorcas, das sich durch seine natürliche Schönheit und seine entspannte Atmosphäre auszeichnet. Der Name "Canyamel" leitet sich von den katalanischen Wörtern für "Bucht" (Cala) und "Honig" (Mel) ab, was die sanfte, goldene Farbe des Strandes und die Süße des Wassers beschreibt. Die Bucht von Canyamel ist ein wahrer Hingucker mit ihrem feinen Sand und dem kristallklaren Wasser, ideal für Familien und Sonnenanbeter.
Cuevas de Artà: In der Nähe von Canyamel befinden sich die beeindruckenden Höhlen von Artà. Diese spektakulären Tropfsteinhöhlen sind ein echtes Naturwunder und bieten faszinierende Formationen und unterirdische Seen.
Das charmante Städtchen Capdepera liegt nur eine kurze Fahrt von Canyamel entfernt und ist für seine gut erhaltene Festung und seinen traditionellen Wochenmarkt bekannt. Hier können Sie die lokale Kultur erleben und handgefertigte Produkte erwerben. Für Naturliebhaber ist der Naturpark Llevant ein Muss. Dieses geschützte Gebiet bietet eine vielfältige Flora und Fauna sowie eine beeindruckende Landschaft mit Wanderwegen und Aussichtspunkten.
Neben der Bucht von Canyamel gibt es in der Umgebung viele weitere schöne Strände und Buchten zu entdecken, darunter Cala Mesquida, Cala Agulla und Cala Torta, die alle für ihre natürliche Schönheit und Ruhe bekannt sind.
Canyamel und seine Umgebung bieten eine harmonische Mischung aus Natur, Kultur und Erholung. Ob Sie die beeindruckenden Höhlen erkunden, eine Partie Golf in einem der 4 in der Nähe liegenden Golfplätze spielen oder einfach nur am Strand entspannen möchten, diese Region hat für jeden etwas zu bieten.