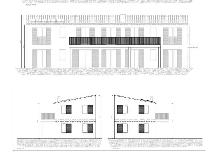
Zu verkaufen steht ein wunderschönes 23 Hektar großes Grundstück in Son Alberti, Marina de Llucmajor. Sie haben hier die Möglichkeit ein Grundstück mit einer Größe von 290 m² zu bauen. Diese Gelegenheit ist ideal für Projektentwickler, Bauherren oder Privatpersonen, die ein Haus inmitten von Ruhe und Natur bauen möchten. Das Grundstück umfasst ein Grundprojekt für ein Einfamilienhaus und einen Pool. Das Grundstück liegt am Stadtrand von Llucmajor, nur ca. 4 km vom Meer und wenige Minuten von der Stadt Llucmajor entfernt und bietet reichlich Platz für die Errichtung eines Jagdhauses. Mit einem weitläufigen Pinienwald, einem Bach und einer strategisch günstigen Lage ist es ideal für alle, die die Landschaft und die Ruhe genießen wollen und gleichzeitig in der Nähe von beeindruckenden Klippen und herrlichen Stränden leben möchten.Für dieses 229.000 m² große Grundstück läuft gerade das Genehmigungsverfahren für den Bau eines zweistöckigen Einfamilienhauses mit 290 m² Wohnfläche, 5 Schlafzimmern (2 im Erdgeschoss) und 4 Bädern. Der Entwurf umfasst eine offene Küche und ein Wohnzimmer, weitläufige Terrassen und einen 35 m² großen Pool. Vom Obergeschoss aus hat man einen schönen Blick auf das Meer und die Insel Cabrera vor Cala Pi. Das derzeit mit Sträuchern bewachsene und komplett eingezäunte Grundstück ist leicht zugänglich und es besteht die Möglichkeit an das öffentliche Stromnetz angeschlossen zu werden. Die Option, eine Lizenz für einen privaten Brunnen zu beantragen, ist ebenfalls möglich.
Wunderschönes großes Grundstück mit der Option, ein 290 qm großes Haus zu bauen
07639 Llucmajor
Die vollständige Adresse der Immobilie erhalten Sie vom Anbieter.
Auf Karte anzeigen
Die vollständige Adresse der Immobilie erhalten Sie vom Anbieter.
Finanzierungszertifikat
In nur zwei Minuten zu Ihrem persönlichen Finanzierungszertifkat.
Infos
| Vermarktungsart | Kaufen |
|---|---|
| Grundstücksfläche | 229.000 m2 |
Kosten
| Miete pro Jahr |
980.000 € |
|---|---|
| Provision | Nein |
Finanzierungsrechner:
Kaufpreis:
600.000 €
Eigenkapital:
600.000 €
Monatliche Rate
0 €
Effektiver Jahreszins
0 %
Sollzinsbindung
10 Jahre
Beschreibung des Objekts
Sonstige Angaben
Idealista, Kyero, Fotocasa, Inmoscout