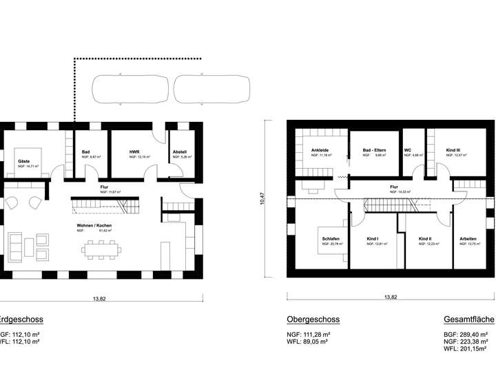
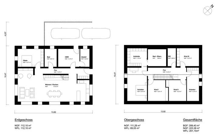
Das denkmalgeschützte Huthaus in Brand-Erbisdorf befindet sich zwar in einem ursprünglichen, sanierungsbedürftigen Zustand, eröffnet jedoch ein außergewöhnliches Potenzial für Bauherren, die das Besondere suchen. Der aktuelle Entwurf sieht vor, die historischen Natursteinmauern als äußere Hülle zu bewahren und im Inneren ein modernes Wohnhaus nach neuesten Energiestandards zu errichten. Damit entsteht eine faszinierende Verbindung aus historischem Charakter und zeitgemäßem Wohnen. Ein entscheidender Vorteil: Die Abstimmungen mit der Denkmalbehörde und der Gemeinde sind bereits erfolgt, sodass der geplanten modernen Umsetzung nichts entgegensteht. Darüber hinaus eröffnen Fördermöglichkeiten gemäß §§ 7i und 10f EStG attraktive steuerliche Vorteile, die die Investition erheblich begünstigen. Das Grundstück selbst überzeugt durch seine schöne Terrassierung, den wertvollen Altbaumbestand und den naturbelassenen Charme, der das Projekt zu einem echten Unikat macht. Eine eingetragene Dienstbarkeit zugunsten der Revierwasserlaufanstalt Freiberg sichert den Zugang zum kleinen Röschenschachtgebäude, beeinträchtigt die Nutzung des restlichen Grundstücks jedoch nicht. Erste Architektenentwürfe zeigen, dass sich das Areal flexibel entwickeln und auch teilen lässt. Mit bestehenden Leitungsrechten für Wasser und Gas sowie einem bereits vorliegenden Bodengutachten ist zudem ein hohes Maß an Planungssicherheit gegeben. Besonders hervorzuheben ist, dass die Natursteinmauern in Teilbereichen als Vorhangfassade genutzt werden können. Dahinter lässt sich ein modernes, voll gedämmtes Wohnhaus realisieren, das sogar Passivhausstandard erreichen kann. Auf diese Weise wird der historische Charakter bewahrt, ohne dass auf höchsten Wohnkomfort und Energieeffizienz verzichtet werden muss.
Historisches Bauland mit Potenzial: 2850 m² Grundstück mit denkmalgeschütztem Huthaus
Kirchweg 32,
09618 Brand-Erbisdorf
Auf Karte anzeigen
Finanzierungszertifikat
In nur zwei Minuten zu Ihrem persönlichen Finanzierungszertifkat.
Infos
| Vermarktungsart | Kaufen |
|---|---|
| Grundstücksfläche | 2.850 m2 |
| Erschließung | Erschlossen |
| Empfohlene Nutzung | Einfamilienhaus, Mehrfamilienhaus |
| Bebaubar nach | wie Nachbarbebauung |
| Verfügbar ab | 15.10.2025 |
Kosten
| Miete pro Jahr |
69.500 € |
|---|---|
| Provision | Nein |
Finanzierungsrechner:
Kaufpreis:
600.000 €
Eigenkapital:
600.000 €
Monatliche Rate
0 €
Effektiver Jahreszins
0 %
Sollzinsbindung
10 Jahre
Beschreibung des Objekts
Lage
Das Grundstück liegt am Kirchweg in Brand-Erbisdorf, einer traditionsreichen Bergbaustadt im Erzgebirgsvorland, nur wenige Minuten von der Universitäts- und Silberstadt Freiberg entfernt. Die Lage ist vor allem für Menschen attraktiv, die in Freiberg oder der Region arbeiten und ein ruhiges, naturnahes Wohnumfeld suchen. Auf dem Grundstück selbst prägen Naturstein-Terrassierungen und alter Baumbestand das besondere Ambiente, während die umgebende Nachbarschaft durch eine gewachsene, ruhige Wohnlage geprägt ist.
Brand-Erbisdorf verfügt über eine gute Infrastruktur: Einkaufsmöglichkeiten, Schulen, Kindergärten, Ärzte und öffentliche Einrichtungen sind direkt im Ort vorhanden. Durch die Nähe zu Freiberg profitieren künftige Bewohner zudem von den vielfältigen Angeboten der Universitätsstadt von der Altstadt mit ihrem historischen Flair über kulturelle Einrichtungen bis hin zu einem breiten Arbeitsplatzangebot in Wissenschaft, Verwaltung und Industrie.
Die Verkehrsanbindung ist ebenfalls günstig: Freiberg ist in wenigen Minuten mit dem Auto erreichbar, Chemnitz in etwa 30 Minuten, Dresden in rund 45 Minuten. Auch der Anschluss an die A4 und A72 ist schnell gegeben, was Pendlern eine gute Erreichbarkeit ermöglicht. Gleichzeitig bleibt das Grundstück selbst ruhig gelegen und bietet ein hohes Maß an Wohnqualität.
Damit vereint der Standort die Vorteile einer naturnahen, entspannten Wohnumgebung mit der Nähe zu Freiberg als lebendigem Zentrum von Wirtschaft, Wissenschaft und Kultur ein idealer Lebensmittelpunkt für ortsansässige Familien, Berufspendler oder Menschen, die den Charakter historischer Orte schätzen und zugleich eine verlässliche Infrastruktur wünschen.
>