Exklusives Hanggrundstück in malerischer Lage
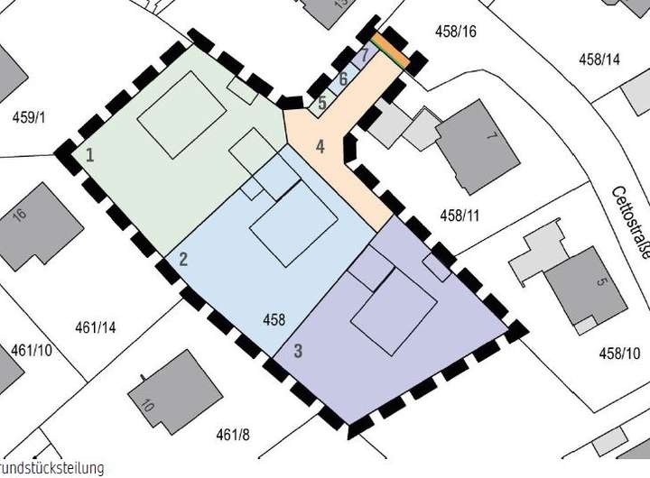
In herrlicher Randlage der idyllischen und historischen Stadt Tittmoning erwartet Sie auf ca. 817 m² dieses voll erschlossene Hanggrundstück, das Ihnen Potenzial zum Bau eines Einfamilienhauses mit bis zu zwei Wohneinheiten bzw. einem Baukörper von 9,50 m x 12,50 m bietet.
Die attraktive Lage im reinen Wohngebiet (WR gemäß § 3 BauNVO), die Erschließung und die bereits geleistete Vorarbeit bis zur Baugenehmigung ergeben eine seltene Gelegenheit für eine zeitlos moderne und attraktive Bebauung in herrlicher Lage, unweit unzähliger Seen auf deutscher und österreichischer Seite auf dem Weg nach Salzburg.
Das Hanggrundstück ermöglicht eine wunderbare Aussicht in Richtung Österreich über die nahe gelegene Salzach hinweg und die Lage an einer Sackgasse sorgt für eine ruhige und ungestörte Wohnatmosphäre, da hier kein störender Durchgangsverkehr stattfindet.
Ebenfalls attraktiv ist die unmittelbare Nähe zur Landesgrenze nach Österreich nur einen Katzensprung vom Salzburger Land, die Ihnen vielfältige Möglichkeiten für Ausflüge und Aktivitäten im Nachbarland eröffnet. Gleichzeitig erreichen Sie die charmante Altstadt von Tittmoning und die mittelalterliche Burg in nur wenigen Minuten. Hier erwarten Sie eine Vielzahl an Geschäften, Cafés und kulturellen Angeboten, die das Leben in dieser Region bereichern.
Das Grundstück besticht nicht nur durch seine großzügige Fläche, sondern auch durch die ruhige, natürliche Umgebung. Sie genießen hier nicht nur die Vorzüge der Natur, sondern haben auch eine direkte Anbindung an die wichtigen Einrichtungen des täglichen Lebens, sodass alles, was Sie brauchen, in Reichweite ist.
Nutzen Sie diese einmalige Gelegenheit, in einer der reizvollsten Lagen Tittmonings zu bauen, und genießen Sie die perfekte Kombination aus naturnahem Wohnen und urbaner Anbindung.
Weitere Angaben und Details erhalten Sie gerne nach einem ersten persönlichen Gespräch.
Interessiert? Dann stellen Sie bitte im ersten Schritt eine schriftliche Anfrage (Immobilienportal, Homepage, E-Mail) mit Angabe Ihrer vollständigen Kontaktdaten.
Wir freuen uns auf Ihre Anfrage!
Exklusives Hanggrundstück in malerischer Lage mit Baugenehmigung für bis zu zwei Wohneinheiten
84529 Tittmoning
Die vollständige Adresse der Immobilie erhalten Sie vom Anbieter.
Auf Karte anzeigen
Die vollständige Adresse der Immobilie erhalten Sie vom Anbieter.
Finanzierungszertifikat
In nur zwei Minuten zu Ihrem persönlichen Finanzierungszertifkat.
Infos
| Vermarktungsart | Kaufen |
|---|---|
| Grundstücksfläche | 817 m2 |
| Erschließung | Erschlossen |
| Bebaubar nach | Bebauungsplan |
Kosten
| Miete pro Jahr |
269.700 € |
|---|---|
| Provision |
Käuferprovision beträgt 3,57 % (inkl. MwSt.) des beurkundeten Kaufpreises |
Finanzierungsrechner:
Kaufpreis:
600.000 €
Eigenkapital:
600.000 €
Monatliche Rate
0 €
Effektiver Jahreszins
0 %
Sollzinsbindung
10 Jahre
Beschreibung des Objekts
Lage
Tittmoning – Eine Stadt mit lebendiger Geschichte
Die Kleinstadt Tittmoning liegt im oberbayerischen Landkreis Traunstein, malerisch am Ufer der Salzach, die hier die Grenze zu Österreich bildet. Mit ihren etwa 6.000 Einwohnern besticht die Stadt durch eine reiche Geschichte, die bis ins 8. Jahrhundert zurückreicht. Tittmoning war einst eine bedeutende Grenz- und Handelsstadt, deren mittelalterliche Wurzeln noch heute in den gut erhaltenen Bauten des Stadtkerns sichtbar sind. Besonders prägend ist die imposante Burg, die über der Stadt thront und einen weiten Blick auf das Salzachtal bietet.
Die mittelalterliche Burg in Tittmoning gilt als das Wahrzeichen der Stadt und symbolisiert bis heute die einstige Macht und Bedeutung des Ortes. Hoch über der Stadt gelegen, bietet sie Besuchern einen beeindruckenden Einblick in die Geschichte und eine wunderschöne Aussicht auf die umliegende Landschaft des Salzachtals. Wer den Anstieg auf die Stufen der Burg wagt, wird nicht nur mit einem historischen Erlebnis belohnt, sondern auch mit der Möglichkeit, im gemütlichen Burgcafé einzukehren. Hier lässt sich das Ambiente der alten Mauern bei Kaffee und Kuchen genießen. Von den Burgterrassen aus eröffnet sich ein atemberaubender Panoramablick auf die malerische Umgebung, die Felder, Wälder und die ruhig fließende Salzach. Die Burg Tittmoning vereint Geschichte, Kultur und Natur und ist ein eindrucksvoller Ort, der die Stadt auf besondere Weise prägt.
Der weitläufige, barocke Marktplatz ist das Herzstück des städtischen Lebens. Umrahmt von prächtigen Bürgerhäusern, lädt er Besucher dazu ein, in den örtlichen Cafés zu verweilen und das historische Ambiente zu genießen. Trotz der Nähe zur Großstadt Salzburg hat Tittmoning seinen ländlichen Charme bewahrt, was den Ort sowohl für Touristen als auch für Einheimische attraktiv macht.
Tittmoning bietet neben seiner historischen Bedeutung auch vielfältige Freizeitmöglichkeiten in der Natur. Wander- und Radwege entlang der Salzach und in der umliegenden Hügellandschaft des Rupertiwinkels machen die Region für Naturliebhaber besonders attraktiv. Zudem liegt der Waginger See, einer der wärmsten Badeseen Bayerns, nur wenige Kilometer entfernt und ist ein beliebtes Ausflugsziel, wie auch die vielen anderen Seen auf deutscher und österreichischer Seite unweit der Stadt.
In Tittmoning vereinen sich auf einzigartige Weise Tradition, Geschichte und Natur, was die Stadt zu einem beliebten Ziel im bayerischen Voralpenland macht.
Sonstige Angaben
GELDWÄSCHE: Als Immobilienmaklerunternehmen ist die von Poll Immobilien GmbH nach § 2 Abs. 1 Nr. 14 und § 11 Abs. 1, 2 Geldwäschegesetz (GwG) dazu verpflichtet, bei der Begründung einer Geschäftsbeziehung die Identität des Vertragspartners festzustellen und zu überprüfen, bzw. sobald ein ernsthaftes Interesse an der Durchführung des Immobilienkaufvertrages besteht. Hierzu ist es erforderlich, dass wir nach § 11 Abs. 4 GwG die relevanten Daten Ihres Personalausweises festhalten (wenn Sie als natürliche Person handeln) – beispielsweise mittels einer Kopie. Bei einer juristischen Person benötigen wir eine Kopie des Handelsregisterauszugs, aus welchem der wirtschaftlich Berechtigte hervorgeht. Das Geldwäschegesetz sieht vor, dass der Makler die Kopien bzw. Unterlagen fünf Jahre aufbewahren muss. Als unser Vertragspartner haben Sie auch eine Mitwirkungspflicht nach § 11 Abs. 6 GwG.
HAFTUNG: Wir weisen darauf hin, dass die von uns weitergegebenen Objektinformationen, Unterlagen, Pläne etc. vom Verkäufer bzw. Vermieter stammen. Eine Haftung für die Richtigkeit oder Vollständigkeit der Angaben übernehmen wir daher nicht. Es obliegt daher unseren Kunden, die darin enthaltenen Objektinformationen und Angaben auf ihre Richtigkeit hin zu überprüfen. Alle Immobilienangebote sind freibleibend und vorbehaltlich Irrtümer, Zwischenverkauf- und Vermietung oder sonstiger Zwischenverwertung.
UNSER SERVICE FÜR SIE ALS EIGENTÜMER:
Planen Sie den Verkauf oder die Vermietung Ihrer Immobilie, so ist es für Sie wichtig, deren Marktwert zu kennen. Lassen Sie kostenfrei und unverbindlich den aktuellen Wert Ihrer Immobilie professionell durch einen unserer Immobilienspezialisten einschätzen. Unser bundesweites und internationales Netzwerk ermöglicht es uns, Verkäufer bzw. Vermieter und Interessenten bestmöglich zusammenzuführen.