Am westlichen Ortseingang von Kirchhofen, einem Teilort von Ehrenkirchen, entsteht zwischen Offnadinger und Lairenstraße auf ca. 18.000 m² ein neues Wohnareal mit ca. 180 Wohneinheiten in mehreren Bauabschnitten. Für den 5. Bauabschnitt sind 12 förderfähige Neubauwohnungen im Haus 1.1 geplant. Die Wohnungsgrößen variieren zwischen einer Wohnfläche von ca. 59 m² und ca. 75 m², bei 2 oder 3 Zimmern. Sämtliche Wohnungen sind gemäß den Programmen der Mietwohnungsfinanzierung BW der L-Bank Baden-Württemberg förderfähig.
Aufgrund der hohen Arbeitsplatzdichte und des starken Einwohner- und Beschäftigungsanstiegs ist der Wohnungsbedarf in Ehrenkirchen stets hoch. Der Standort bietet folglich eine solide wirtschaftliche Grundlage mit langfristig guten Perspektiven.
Finanzierungszertifikat
In nur zwei Minuten zu Ihrem persönlichen Finanzierungszertifkat.
Infos
| Haustyp | Mehrfamilienhaus |
|---|---|
| Etagenzahl | 2 |
| Wohnfläche ca. | 818 m2 |
| Grundstücksfläche | 1.834 m2 |
| Bezugsfrei ab | Mitte 2027 |
| Zimmer | 31 |
| Garage/Stellplatz | Tiefgarage |
| Anzahl Garage/Stellplatz | 18 |
Kosten
| Kaufpreis |
2.497.000 € |
|---|---|
| Provision | Nein |
Finanzierungsrechner:
Kaufpreis:
600.000 €
Eigenkapital:
600.000 €
Monatliche Rate
0 €
Effektiver Jahreszins
0 %
Sollzinsbindung
10 Jahre
Bausubstanz & Energieausweis
| Bauphase | Haus im Bau |
|---|---|
| Objektzustand | Erstbezug |
| Heizungsart | Wärmepumpe |
Beschreibung des Objekts
Ausstattung
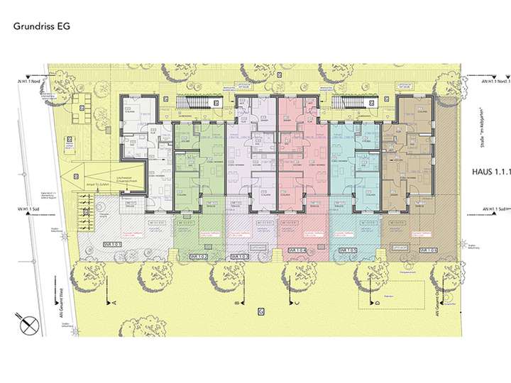
- Gesamtwohnfläche ca. 818 m² Wfl.
- 5 x 2 Zimmer, 7 x 3 Zimmer, mit ca. 59 m² bis ca. 75 m² Wfl.
- Wohnungen im Erdgeschoss barrierefrei gemäß LBO
- 18 Stellplätze in der gemeinsamen Tiefgarage
- Wärmeversorgung durch Wärmepumpenanlage
- Wärmeschutz- und Energiesparmaßnahmen nach Gebäudeenergiegesetz (GEG)
- alle Planungsleistungen im Kaufpreis enthalten
- EH 55-EE-Standard
Lage
- Alles für den täglichen Bedarf innerhalb eines 1-km-Radius
- Grund- und Gemeinschaftsschule in der Nähe
- Weiterführende Schulen in den Nachbarorten
- Hervorragende Anbindung an den ÖPNV über die fußläufig erreichbare Bushaltestelle
- im Dreiländereck von Frankreich, Schweiz und Deutschland
- zentrale Lage im Umland von Freiburg
- schnell in Freiburg, Bad Krozingen und Staufen über die B3
- gute Verkehrsanbindung nach Basel über die A5
Sonstige Angaben
- L-Bank-Reservierungszusage vorhanden
- Kaufpreis Wohnungen: 3.967.000 €
- Kaufpreis Stellplätze: 180.000 €
- Kaufpreis gesamt: 4.147.000 €
- abzgl. L-Bank-Förderung *: ca. 1.650.000 €
- Invest: 2.497.000 €
* Absenkung um 33% der ortsüblichen Vergleichsmiete, 30 Jahre Bindungsdauer
Weitere Dokumente
Teaser Ehrenkirchen BA5 2025-0Grundriss
BA5_Grundriss EG IS24
>
>
BA5_Grundriss_OG IS24
>
>
Adresse
Offnadinger Straße 4, 79238 Ehrenkirchen
Interessante Orte
Preis- und Lageinformationen
Preistrend für Bestandsimmobilien in Ehrenkirchen