Einfamilienhaus mit großem Grundstück, Pool & Koiteich in Chemnitz-Glösa
– Direkt vom Eigentümer – Keine Käuferprovision –
• Gesamtgrundstücksfläche: 1.625 m²
• Ruhige, gewachsene Wohnlage in Chemnitz-Glösa
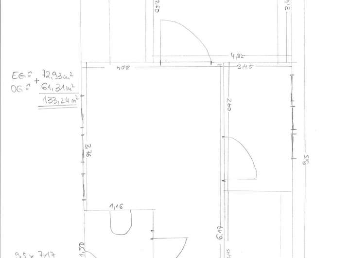
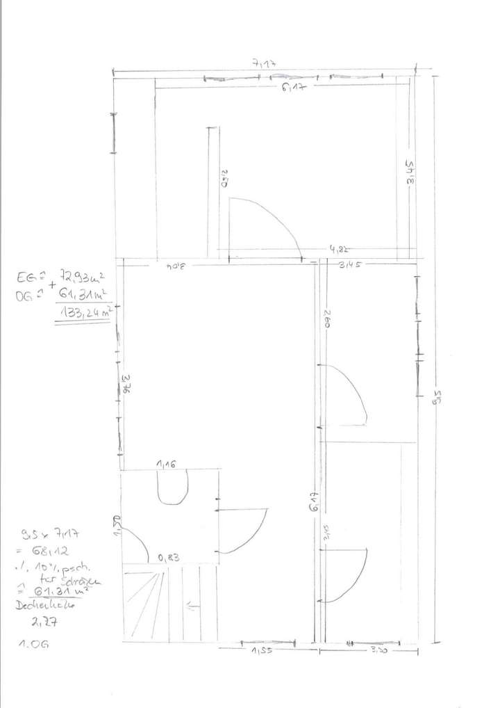
• Wohnfläche: ca. 140 m² (Erdgeschoss & Obergeschoss)
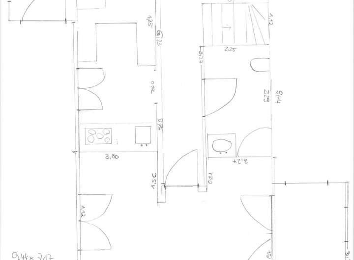
• Zusätzliche Flächen: Beheizter Keller (4 Räume) + unausgebauter Dachboden
• Heizung: Gas (Junkers)
• Stellplätze: Carport für 1 PKW + 2 Außenstellplätze
• Smart Home-System: Steuerung von Heizung, Licht, Pool, Teich, Bewässerung, Haustür, Einfahrtstor u.v.m. (Homematic, Shelly, Doorbird)
• Moderne Küche (IKEA, Baujahr 2022)
• Optional: Übernahme von Möbeln und Technik (TV, Poolroboter, Mähroboter, Gartengeräte)
• Pool: 8 × 5 m, 1,5 m tief
• Koiteich: ca. 65.000 Liter
• Weitere Highlights: Whirlpool, überdachte Terrasse, Spielturm, Trampolin
Raumaufteilung
• Erdgeschoss: Küche, Bad mit Dusche, Wohn-/Esszimmer
• Obergeschoss: Schlafzimmer, Kinderzimmer, Büro, Bad mit WC
• Dachboden: Nicht ausgebaut
• Keller: Vier nutzbare Räume
Energieausweis
• Wird zur Besichtigung vorgelegt (in Erstellung)
Einfamilienhaus in Chemnitz-Glösa mit riesigem Grundstück, Pool, Teich und Keller vom Eigentümer
Slevogtstraße 53,
09114 Chemnitz
Auf Karte anzeigen
Finanzierungszertifikat
In nur zwei Minuten zu Ihrem persönlichen Finanzierungszertifkat.
Infos
| Haustyp | Einfamilienhaus |
|---|---|
| Etagenzahl | 4 |
| Wohnfläche ca. | 140 m2 |
| Grundstücksfläche | 1.625 m2 |
| Zimmer | 4 |
| Schlafzimmer | 2 |
| Badezimmer | 2 |
| Garage/Stellplatz | Carport |
| Anzahl Garage/Stellplatz | 3 |
Kosten
| Kaufpreis |
439.000 € |
|---|---|
| Provision | Nein |
Finanzierungsrechner:
Kaufpreis:
600.000 €
Eigenkapital:
600.000 €
Monatliche Rate
0 €
Effektiver Jahreszins
0 %
Sollzinsbindung
10 Jahre
Bausubstanz & Energieausweis
| Baujahr | unbekannt |
|---|---|
| Bauphase | Haus fertig gestellt |
| Objektzustand | Gepflegt |
| Qualität der Austattung | Normal |
| Heizungsart | Gas-Heizung |
| Wesentliche Energieträger | Strom |
| Energieausweis | liegt zur Besichtigung vor |
Beschreibung des Objekts
Lage
Das Objekt befindet sich in belebter Wohnlage in Chemnitz Glösa-Draisdorf. Für Mobilität ist dank der in der Nähe verkehrenden Buslinie 63 gesorgt. Zu Fuß erreichen Sie ein Café und einen Supermarkt. Außerdem gibt es eine Grün- und Parkanlage, einen Physiotherapeuten und einen Friseur.
Grundriss
Grundriss Erdgeschoss
>
>
Grundriss Obergeschoss
>
>
Keller
>
>
Überblick Garten
>
>
Adresse
Slevogtstraße 53, 09114 Chemnitz
Interessante Orte
Preis- und Lageinformationen
Preistrend für Bestandsimmobilien in Glösa-Draisdorf