Abrissgrundstück mit Baugenehmigung für ein Doppelhaus in Königstein.
Zur Zeit finden Sie ein freistehendes Einfamilienhaus mit 137m2 Wohnfläche vor, welches im Jahre 1957 erbaut wurde.
Es gibt drei Stellplätze und sowie eine Garage.
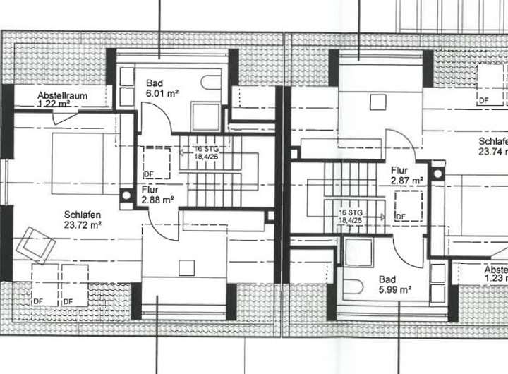
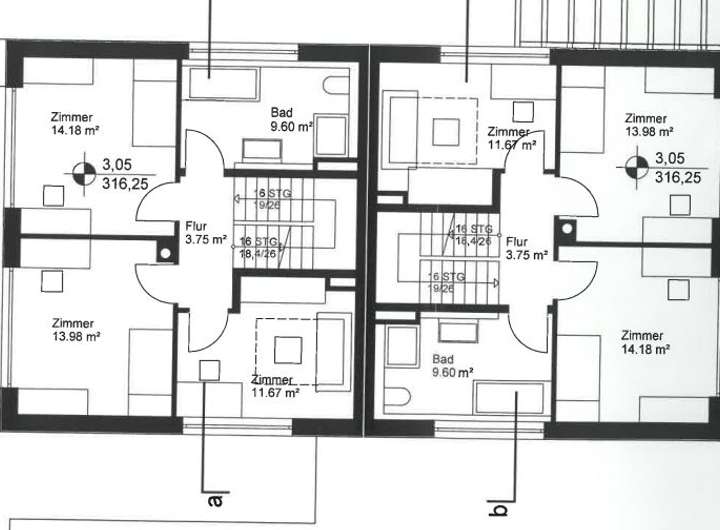
Eine bereits vorhandene Baugenehmigung für Zwei Doppelhaushälften mit je 142m² Wohnfläche liegt vor.
Die Baugenehmigung berücksichtigt ein Carport und drei weitere Stellplätze.
Es besteht auch die Möglichkeit die Baugenehmigung anzupassen für den Bau eines Einfamilienhauses.
Es gibt keinen Bebauungsplan.
Ein Neubau richtet sich nach § 6 HBO sowie der umliegenden Bebauung.
Makleranfragen werden nicht berücksichtigt.
Privatverkauf: Grundstück mit Baugenehmigung
61462 Königstein im Taunus
Die vollständige Adresse der Immobilie erhalten Sie vom Anbieter.
Auf Karte anzeigen
Die vollständige Adresse der Immobilie erhalten Sie vom Anbieter.
Finanzierungszertifikat
In nur zwei Minuten zu Ihrem persönlichen Finanzierungszertifkat.
Infos
| Vermarktungsart | Kaufen |
|---|---|
| Grundstücksfläche | 669 m2 |
| Erschließung | Erschlossen |
| Bebaubar nach | wie Nachbarbebauung |
| Verfügbar ab | 3.1.2026 |
Kosten
| Miete pro Jahr |
675.000 € |
|---|---|
| Provision | Nein |
Finanzierungsrechner:
Kaufpreis:
600.000 €
Eigenkapital:
600.000 €
Monatliche Rate
0 €
Effektiver Jahreszins
0 %
Sollzinsbindung
10 Jahre
Beschreibung des Objekts
Lage
Schneidhain ist ein Stadtteil von Königstein im Taunus. Im Ort selbst finden Sie ein ein Lebensmittelgeschäft, einen Bäcker und eine Grundschule, (bilinguale) Kita, sowie Spielplätze für Ihre Kinder. Besonders hervorzuheben ist die Nähe zum ca. 250m entfernten Wald, der zum Spazieren und Erholen einlädt und beliebte Wanderrouten bietet. In ca. 5 Minuten mit dem Auto, mit dem Bus oder mit der Bahn haben Sie die Möglichkeit die Innenstadt von Königstein zu erreichen. Dort finden Sie u.a. mehrere Lebensmittelgeschäfte, Ärzte, Restaurants und Bars. Die Innenstadt der Mainmetropole Frankfurt am Main ist ebenfalls mit dem Auto in ca. 25 Minuten zu erreichen. Mit der Hessischen Landesbahn, die nur 4 Minuten fußläufig entfernt ist, können Sie im 30 Minuten Takt nach 34 Minuten den Frankfurter Hauptbahnhof erreichen.