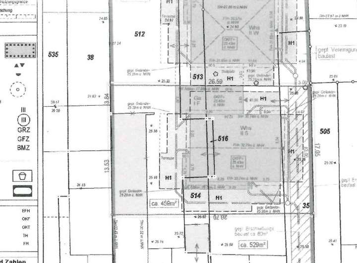
Bei der Liegenschaft handelt es sich um eins der insgesamt zwei Baugrundstücke die auch zusammengelegt werden können. Das Angebot ist ersichtlich im Lageplan gelb markiert und ist 459 m2 groß.
Für beide Grundstücke liegt eine Baugenehmigung für jeweils ein Einfamilienhaus mit Garage vor wobei eine Unterkellerung nicht vorgesehen ist. Die Ansichten sowie die Grundrisse haben wir im Exposee zur Verfügung gestellt. Auch einer neuen Planung mit Ihrem Architekten steht nichts im Weg.
Wir freuen uns auf Ihre Anfrage.
Baugrundstück in Orsoy II
47495 Rheinberg
Die vollständige Adresse der Immobilie erhalten Sie vom Anbieter.
Auf Karte anzeigen
Die vollständige Adresse der Immobilie erhalten Sie vom Anbieter.
Finanzierungszertifikat
In nur zwei Minuten zu Ihrem persönlichen Finanzierungszertifkat.
Infos
| Vermarktungsart | Kaufen |
|---|---|
| Grundstücksfläche | 459 m2 |
| Erschließung | Unerschlossen |
| Verfügbar ab | sofort |
Kosten
| Miete pro Jahr |
130.000 € |
|---|---|
| Provision |
2,38% inklusive gesetzlicher MwSt. |
Finanzierungsrechner:
Kaufpreis:
600.000 €
Eigenkapital:
600.000 €
Monatliche Rate
0 €
Effektiver Jahreszins
0 %
Sollzinsbindung
10 Jahre
Beschreibung des Objekts
Lage
Durch die Kommunale Neuordnung aus dem Jahre 1975 wurde Orsoy ein Stadtteil von Rheinberg.
Das gemütliche Städtchen Rheinberg liegt am unteren Niederrhein im Nordwesten des Ruhrgebietes und gehört zum Regierungsbezirk Düsseldorf im Kreis Wesel. Im Nordosten wird das Stadtgebiet durch den Rhein begrenzt, der durch seine Rheinauen und dem Deich viel Platz für Freizeitmöglichkeiten bietet. Alle Dinge des täglichen Bedarfs, wie Schulen, Kindergärten, Einkaufsmöglichkeiten, Ärzte, Apotheken sind kurzweilig zu erreichen. Auch die Verkehrsanbindung ist als sehr gut zu bezeichnen: Haltestellen des öffentlichen Nahverkehrs, die Fähre nach Duisburg, der Bahnhof in Rheinberg sowie der Autobahnanschluss zur A 57, A40 und A42 erreicht man in wenigen Minuten. Der internationale Flughafen Düsseldorf und auch der Flughafen Weeze sind mit dem PKW in ca. 30 Fahrminuten zu erreichen.
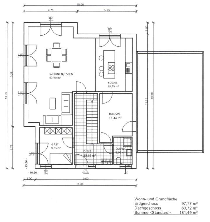
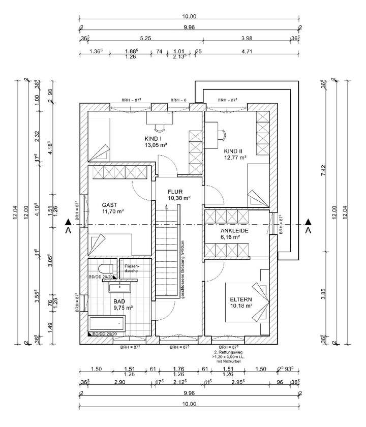
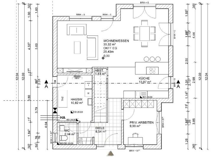
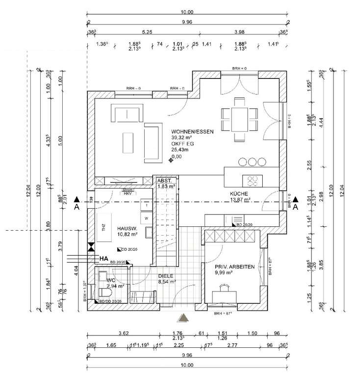
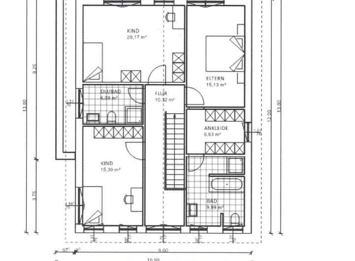
Grundriss
Grundriss Erdgeschoss Haus1
>
>
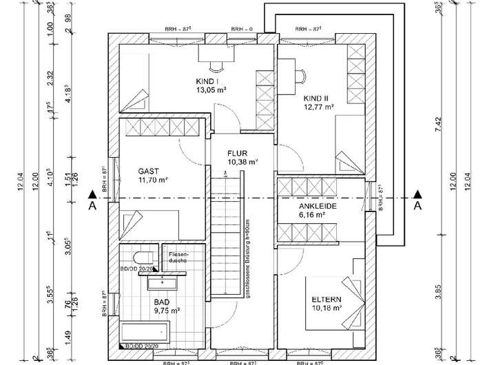
Grundriss Obergeschoss Haus1
>
>
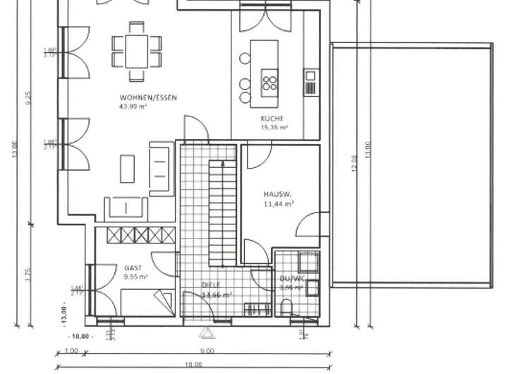
Grundriss Erdgeschoss Haus 2
>
>
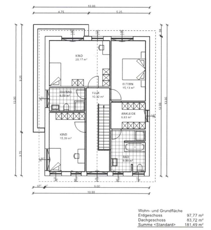
Grundriss Obergeschoss Haus 2
>
>