Das Sunshine 165 besticht durch seine sehr durchdachte Planung und sein attraktives Erscheinungsbild. Ziehen Sie ein in Ihr neues Einfamilienhaus. Sichern Sie sich den besten Standard ab Effizienz 55 und unsere Energiepreisbremse I-KON!
Als Ausbauhaus Plus geplant, können Sie sich bereits jetzt auf Ihr neues und schickes Haus freuen. Zahlreiche Gestaltungsmöglichkeiten und Optionen finden Sie bei www.livinghaus.de !
Sichern Sie sich bereits für heute einen Energiestandard für die Zukunft dank I-KON!
Gerne berate ich Sie in einem persönlichen Gespräch und zeige Ihnen den Weg in Ihr neues Zuhause.
Energieeffizientes Traumhaus! 18 Monate Festpreisgarantie!
65239 Hochheim am Main
Die vollständige Adresse der Immobilie erhalten Sie vom Anbieter.
Auf Karte anzeigen
Die vollständige Adresse der Immobilie erhalten Sie vom Anbieter.
Finanzierungszertifikat
In nur zwei Minuten zu Ihrem persönlichen Finanzierungszertifkat.
Infos
| Haustyp | Einfamilienhaus |
|---|---|
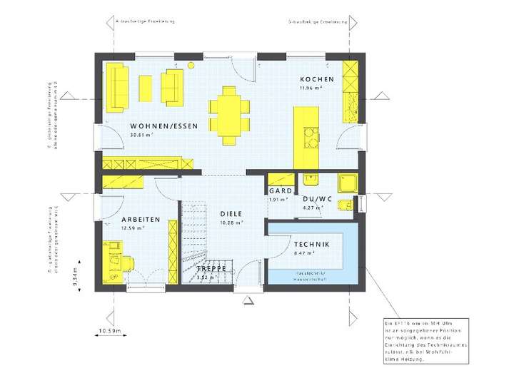
| Wohnfläche ca. | 165 m2 |
| Grundstücksfläche | 527 m2 |
| Zimmer | 6 |
| Badezimmer | 2 |
Kosten
| Kaufpreis |
1.026.942 € |
|---|
Finanzierungsrechner:
Kaufpreis:
600.000 €
Eigenkapital:
600.000 €
Monatliche Rate
0 €
Effektiver Jahreszins
0 %
Sollzinsbindung
10 Jahre
Bausubstanz & Energieausweis
| Baujahr | 2026 |
|---|---|
| Qualität der Austattung | Gehoben |
| Heizungsart | Zentralheizung |
| Energieausweis | liegt vor |
| Energieausweistyp | Bedarfsausweis |
| Energieverbrauchskennwert | 18,0 kWh/(m²*a) |
| Energieeffizienzklasse | A+ |
18,0
kWh/(m²*a)
Energieeffizienzklasse A+
- A+
- A
- B
- C
- D
- E
- F
- G
- H
- 0
- 25
- 50
- 75
- 100
- 125
- 150
- 175
- 200
- 225
- >250
Beschreibung des Objekts
Ausstattung
Willkommen zu einem Zuhause, das nicht nur aus Wänden und Dächern besteht, sondern aus Träumen und Wünschen, die Wirklichkeit werden. Hier erwartet Sie mehr als nur ein Immobilieninserat - es ist eine Einladung, Ihre Vorstellungskraft zu entfalten und Ihr Leben in einem Ort zu gestalten, der auf Ihre Bedürfnisse zugeschnitten ist.
In diesem Angebot enthalten sind:
- Eine individuell geplante Küche mit Kochinsel, Softclose, Induktion, Spülmaschine und mehr.
- Ein Haus als Plusenergiehaus mit Kühlfunktion.
- Bodenplatte, Fenster, Außenfensterbänke, Rollladenführungsschienen und -endleisten in RAL Farbe.
- Eine Photovoltaikanlage und Stromspeicher VARTA pulse neo 6.
- Elektroinstallation, Sanitärrohinstallation, Dämmung und Beplankung durch Living Haus.
- Estricharbeiten durch Living Haus.
- Hochwertiges Finish-Material für Boden- und Wandbeläge, Innentüren, Sanitärobjekte und mehr.
- Ein Ausbaucoach für 3 Tage auf Ihrer eigenen Baustelle (DiY - Academy).
- Architektenleistung und Finanzierungsservice mit Sonderkonditionen.
- Baucockpit App, um die nächsten Schritte im Blick zu behalten.
- DGNB Zertifikat in GOLD.
Ein Ort, der nicht nur ein Haus ist, sondern ein Zuhause. Willkommen in Ihrem neuen Leben. Willkommen zu Ihrem neuen Zuhause.
Lage
Das hier berücksichtigte Baugrundstück befindet sich in Hochheim am Taunus, einer charmanten Stadt im Main-Taunus-Kreis in Hessen. Trotz der naturnahen Lage ist Hochheim hervorragend an das Verkehrsnetz angebunden. Die Bundesstraßen B40 und B43 sowie die nahegelegenen Autobahnen A66 und A671 ermöglichen eine schnelle Anbindung an Frankfurt, Wiesbaden, Mainz und den Flughafen Frankfurt am Main. Der Bahnhof Hochheim bietet zudem direkte S-Bahn- und Regionalzugverbindungen ins gesamte Rhein-Main-Gebiet. Hochheim ist besonders familienfreundlich und verfügt über eine ausgezeichnete Infrastruktur. Kindergärten, Schulen - darunter auch weiterführende Schulen - sowie zahlreiche Freizeit- und Sportangebote machen die Stadt zu einem attraktiven Wohnort. Einkaufsmöglichkeiten für den täglichen Bedarf, Restaurants und sämtliche wichtige Dienstleistungen befinden sich direkt vor Ort und sorgen für eine hohe Lebensqualität. Wenn Sie auf der Suche nach einem Wohnort mit hoher Lebensqualität, naturnaher Umgebung und gleichzeitig exzellenter Anbindung sind, ist Hochheim am Taunus der ideale Ort für Ihre Zukunft. Da das Grundstück überwiegend eben ist, entscheiden Sie, ob Sie einen Keller wollen oder auf einer Bodenplatte bauen möchten.
Sonstige Angaben
Natürlich sind unsere Häuser mit den besten Energiekennwerten der heutigen Zeit ausgestattet. Gerne berate ich Sie auch hier über die vielen Möglichkeiten und wie wir gemeinsam dazu beitragen können, unseren Planeten zu schützen. Das Erfüllen der Anforderungen für ein Zertifikat der Deutschen Gesellschaft für nachhaltiges Bauen (DGNB) ist für uns ein Lebensauftrag! Für Sie und auch für uns alle ist es unser Ziel, unsere Welt besser zu machen!
Darüber hinaus bieten wir auch Unterstützung bei der Erfüllung von Förderprogrammen und anderen Möglichkeiten zur finanziellen Unterstützung an. Uns ist es wichtig, Ihnen dabei zu helfen, nicht nur ein umweltfreundliches Zuhause zu besitzen, sondern auch von finanziellen Vorteilen zu profitieren.
Adresse
65239 Hochheim am Main
Interessante Orte
Preis- und Lageinformationen
Preistrend für Bestandsimmobilien in Hochheim am Main