Betreutes Wohnen für Senioren. Ein Haus mit Barrierefreien Wohnungen, Aufzug und extra breiten Türen.
Die Bäder sind mit ausreichender Bewegungsfläche vor WC und Waschtisch, so dass auch Rollstuhlfahrer bequem rangieren können. Die Toiletten und Duschen haben Haltegriffe.
Die älteren Menschen wohnen in abgeschlossenen Wohneinheiten in einer speziellen Wohnanlage und können den Anspruch auf ausgewählte Betreuungsleistungen in Anspruch nehmen. Die Mitarbeiter sind vor Ort und bieten ein Hausnotrufsystem als Leistung unter anderem mit an. In der oberen Etage befinden sich Zimmer für die Ganztagspflege.
Das Wohnen hier kombiniert das selbst bestimmte Leben mit den Vorteilen einer Pflegeeinrichtung.
Barrierefreie 2-Raumwohnung mit Fahrstuhl in Verbindung mit Pflegedienst
Raguhner Straße 18,
06749 Bitterfeld-Wolfen
Auf Karte anzeigen
Infos
| Wohnungskategorie | Etagenwohnung |
|---|---|
| Etage | 1 von 2 |
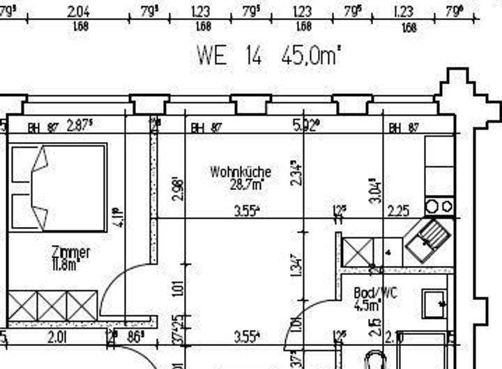
| Wohnfläche ca. | 45 m2 |
| Bezugsfrei ab | 2025-02-16 |
| Zimmer | 2 |
| Schlafzimmer | 1 |
| Badezimmer | 1 |
| Haustiere | Nein |
Kosten
| Kaltmiete |
385 € |
|---|---|
| Nebenkosten | + 154 € |
| Heizkosten | + 100 € |
| Gesamtmiete | 639 € (zzgl. Heizkosten) |
| Kaution o. Genossenschaftsanteile | 1155 |
Weiter mieten oder doch kaufen?
Wer in Miete wohnt, überweist dem Vermieter im Laufe der Jahre hohe Summen, die sich
auch in die eigenen vier Wände investieren lassen könnten.
Bausubstanz & Energieausweis
| Baujahr | 1929 |
|---|---|
| Objektzustand | Gepflegt |
| Qualität der Austattung | Normal |
| Heizungsart | Zentralheizung |
| Wesentliche Energieträger | Gas |
| Energieausweis | liegt vor |
| Energieausweistyp | Verbrauchsausweis |
| Energieverbrauchskennwert | 150,7 kWh/(m²*a) |
| Energieeffizienzklasse | E |
150,7
kWh/(m²*a)
Energieeffizienzklasse E
- A+
- A
- B
- C
- D
- E
- F
- G
- H
- 0
- 25
- 50
- 75
- 100
- 125
- 150
- 175
- 200
- 225
- >250
Beschreibung des Objekts
Ausstattung
Die Wohnung befindet sich in der 1. Etage, diese erreicht man bequem über einen Fahrstuhl.
Das Wohnzimmer ist mit einer offenen Küche mit Fliesenspiegel ausgestattet. Einen Schlafzimmer und ein innenliegendes Badezimmer mit Dusche.
Für eine mögliche Betreuung wird ein Vertrag gesondert mit der Pro Vitalia Pflegedienst GmbH abgeschlossen.
Lage
Die Raguhner Straße ist ca. 1km vom Bitterfelder Zentrum entfernt. Eine Apotheke ca. 700m, Supermarkt ca. 450m und das Krankenhaus 860m.
Sonstige Angaben
HAFTUNG:
Wir weisen Sie darauf hin, dass die von Anhalt-Immobilien weitergegebenen Objektinformationen, Unterlagen, Pläne etc. vom Verkäufer bzw. Vermieter stammen. Eine Haftung für die Richtigkeit, Aktualität oder Vollständigkeit der Angaben, als auch für unbekannte Umstände, übernehmen wir nicht. Es obliegt daher unseren Kunden (m/w), diese Angaben auf ihre Richtigkeit hin zu überprüfen. Alle Immobilienangebote sind freibleibend und vorbehaltlich Irrtümer, Zwischenverkauf/Vermietung oder sonstiger Zwischenverwertung. Maßgeblich sind die Vereinbarungen des zu schließenden Mietvertrages.
Sie interessieren sich auch für einen Immobilienverkauf, -Vermietung oder eine optimale Immobilienverwaltung? Zudem bieten wir auch noch einen Renovierung – und Hausmeisterservice an. Machen Sie heute noch einen Termin mit unseren Experten aus!
Erreichbarkeit: von Mo, Mi, Fr: 09:00 - 12:00 Uhr | Di, Do: 09:00 Uhr - 12:00 & 14:00 - 16:30 Uhr
Weitere Dokumente
Vorvermieterbescheinigung.pdfAdresse
Raguhner Straße 18, 06749 Bitterfeld-Wolfen
Interessante Orte
Preis- und Lageinformationen
Preistrend für Bestandsimmobilien in Bitterfeld-Wolfen