- - 7 Familienhaus mit ca. 474 qm Wohnflläche (genehmigt)
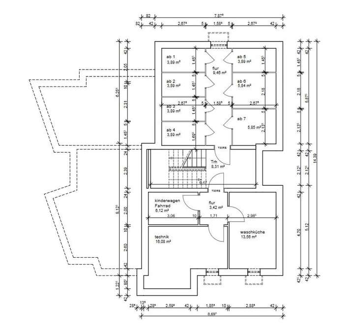
- - Nutzfläche mit ca. 86,27 qm
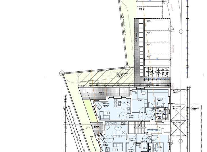
- - 7 Stellplätze
- - ca. 531 qm großes, ebenes Grundstück mit Abrisshaus
- - Neubauen und Vermieten und höherer Abschreibung von 5% erhalten
- - Auf dem Grundstück steht aktuell ein Abrisshaus
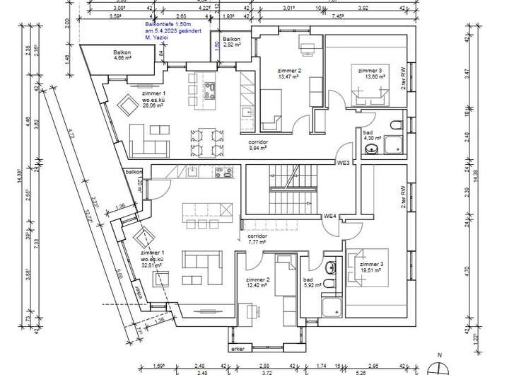
Aufstellung genehmigter Wohnungen mit Wohnfläche:
- Whg. Nr. 1 - EG (3 Zimmer / 77,61 qm)
- Whg. Nr. 2 - EG (3 Zimmer / 79,05 qm)
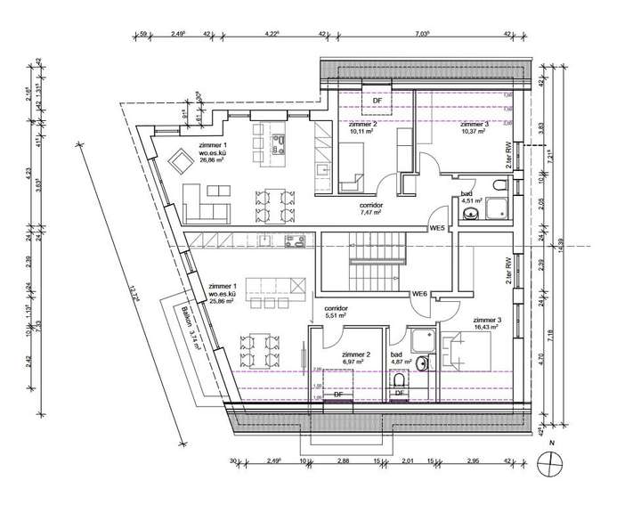
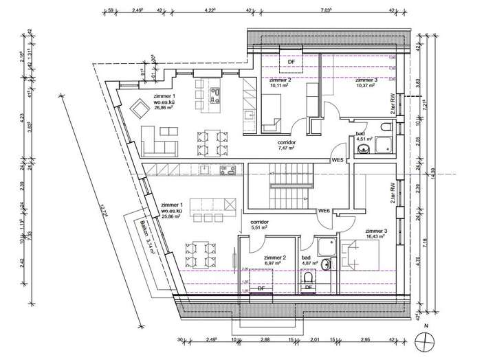
- Whg. Nr. 3 - 1.OG (3 Zimmer / 77,61 qm)
- Whg. Nr. 4 - 1.OG (3 Zimmer / 79,05 qm)
- Whg. Nr. 5 - 2.OG (3 Zimmer / 77,61 qm)
- Whg. Nr. 6 - 2.OG (3 Zimmer / 79,05 qm)
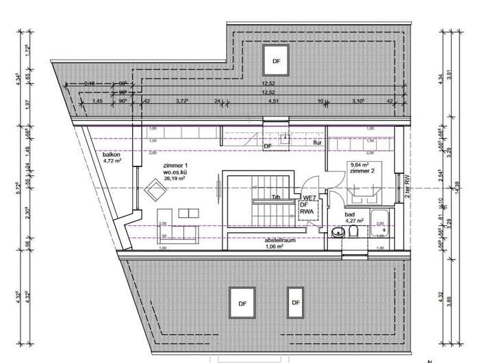
- Whg. Nr. 7 - DG (3 Zimmer / 79,05 qm)
Neubau eines 7-Familienhauses mit 8 % Rendite
73614 Schorndorf
Die vollständige Adresse der Immobilie erhalten Sie vom Anbieter.
Auf Karte anzeigen
Die vollständige Adresse der Immobilie erhalten Sie vom Anbieter.
Finanzierungszertifikat
In nur zwei Minuten zu Ihrem persönlichen Finanzierungszertifkat.
Infos
| Vermarktungsart | Kaufen |
|---|---|
| Grundstücksfläche | 531 m2 |
| Verfügbar ab | ab Sofort |
Kosten
| Miete pro Jahr |
270.000 € |
|---|---|
| Provision |
4,76% vom Kaufpreis (inkl. MwSt.) |
Finanzierungsrechner:
Kaufpreis:
600.000 €
Eigenkapital:
600.000 €
Monatliche Rate
0 €
Effektiver Jahreszins
0 %
Sollzinsbindung
10 Jahre
Beschreibung des Objekts
Lage
- zentrale Lage von Schorndorf-Miedelsbach
- gute Verkehrsanbindung
- gute Infrastruktur
- Dinge des täglichen Bedarfs bequem erreichbar
Sonstige Angaben
Energieausweis in Erstellung
Grundriss
Hausschnitt 2
>
>
Hausschnitt 3
>
>
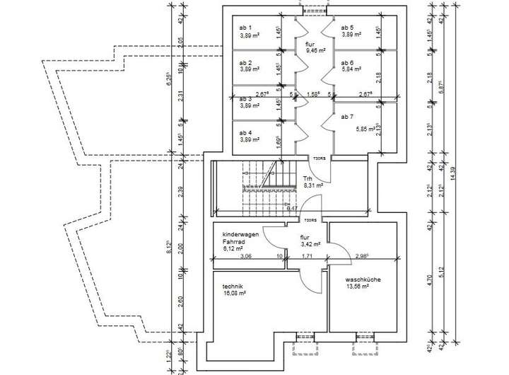
Grundriss UG
>
>
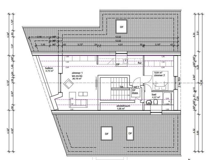
Grundriss DG
>
>