Hier erwartet Sie eine neuwertige und helle 2,5-Zimmer-Wohnung in einer begehrten Wohngegend von Hamburg-Blankenese. Ein besonderes Highlight ist die sonnige, uneinsehbare Dachterrasse mit Blick ins Grüne. Im Wohn- und Schlafbereich reicht die Decke an der Giebelseite teilweise bis zum First, was den Räumen eine besondere Atmosphäre und Großzügigkeit verleiht. Das stilvolle Gebäude wurde im Jahr 2015 errichtet. Neben der attraktiven Lage besticht die Wohnung vor allem durch ihre Helligkeit, dank zahlreicher Fensterflächen, die exklusive Ausstattung mit wertbeständigen Materialien, die nach Südwesten ausgerichtete Dachterrasse sowie den behaglichen Wohn- und Essbereich mit offener Küche. In diesem Zuhause treffen Komfort und Moderne aufeinander.
Das Mehrfamilienhaus umfasst fünf exklusive Wohnungen, die alle von den EigentümerInnen selbst bewohnt werden. Die Beheizung erfolgt über eine Fußbodenheizung, während die Böden mit hochwertigen Eichenholz-Dielen ausgestattet sind. Die dreifach verglasten Holz-Sprossenfenster (Meranti) sind teilweise mit elektrischen Außenrollläden versehen. Im Wohnbereich besteht die Möglichkeit, einen Kamin einzubauen. Ein weiteres Privileg ist der Aufzug, der direkt in die Wohnung fährt. Selbstverständlich gibt es auch einen Zugang über das Treppenhaus. Das gepflegte Grundstück erstreckt sich über eine Fläche von etwa 906 m² und befindet sich in einer idyllischen Lage, umgeben von viel Grün. Zur Wohnung gehört eine Garage (Doppelparkersystem), die mit 25.000 € zusätzlich berechnet wird, sowie ein Kellerraum.
Die Möbel könnten bei Interesse übernommen werden.
Exklusive Dachterrassenwohnung über zwei Ebenen in Hamburg-Blankenese!
22587 Hamburg
Die vollständige Adresse der Immobilie erhalten Sie vom Anbieter.
Auf Karte anzeigen
Die vollständige Adresse der Immobilie erhalten Sie vom Anbieter.
Finanzierungszertifikat
In nur zwei Minuten zu Ihrem persönlichen Finanzierungszertifkat.
Infos
| Wohnungskategorie | Maisonette |
|---|---|
| Wohnfläche ca. | 125 m2 |
| Bezugsfrei ab | Nach Vereinbarung |
| Zimmer | 3 |
| Schlafzimmer | 1 |
| Badezimmer | 2 |
| Garage/Stellplatz | Garage |
| Anzahl Garage/Stellplatz | 1 |
Kosten
| Kaufpreis |
1.115.000 € |
|---|---|
| Hausgeld |
554 € |
| Preis für Garage/Stellplatz | 25.000 € |
| Provision |
3 % inkl. MwSt. |
Finanzierungsrechner:
Kaufpreis:
600.000 €
Eigenkapital:
600.000 €
Monatliche Rate
0 €
Effektiver Jahreszins
0 %
Sollzinsbindung
10 Jahre
Bausubstanz & Energieausweis
| Baujahr | 2015 |
|---|---|
| Objektzustand | Gepflegt |
| Qualität der Austattung | Luxus |
| Heizungsart | Fußbodenheizung |
| Wesentliche Energieträger | Gas |
| Energieausweis | liegt vor |
| Energieausweistyp | Verbrauchsausweis |
| Energieverbrauchskennwert | 73,0 kWh/(m²*a) |
| Energieeffizienzklasse | B |
73,0
kWh/(m²*a)
Energieeffizienzklasse B
- A+
- A
- B
- C
- D
- E
- F
- G
- H
- 0
- 25
- 50
- 75
- 100
- 125
- 150
- 175
- 200
- 225
- >250
Beschreibung des Objekts
Ausstattung
- Das elegante Gebäude wurde 2015 errichtet und beherbergt 5 exklusive Wohnungen.
- Das gepflegte Grundstück ist ca. 906 m² groß.
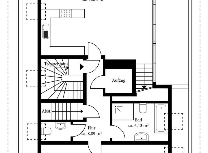
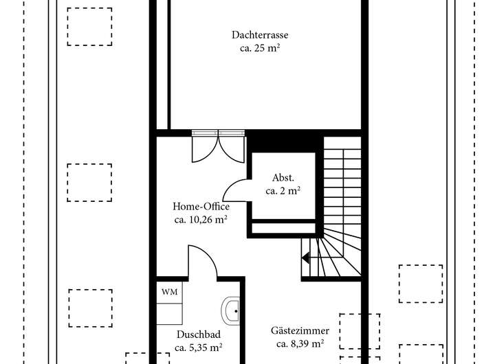
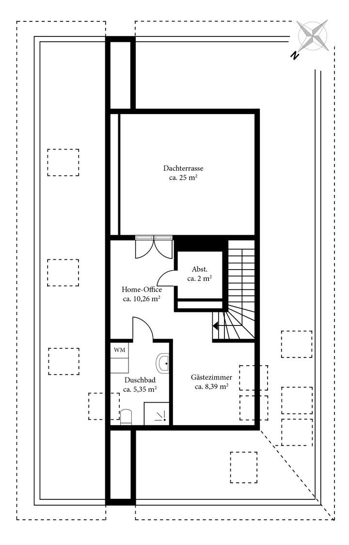
- Die Wohnung erstreckt sich über das gesamte Dachgeschoss und den Spitzboden. Sie bietet rund 125 m², aufgeteilt in 2,5 Zimmer über zwei Ebenen, und präsentiert sich in einem äußerst gepflegten Zustand mit moderner und hochwertiger Ausstattung. Die zahlreichen Fensterflächen sorgen für viel Tageslicht in den Räumen.
- Über eine private Fahrstuhl-Ebene gelangen Sie direkt in die Wohnung.
- Der gemütliche Wohn-, Ess- und Kochbereich hat eine Größe von ca. 43 m². Im Wohnbereich ist ein Kaminanschluss vorhanden.
- Die komfortable Einbauküche ist mit weißen Fronten, einer Massivholz-Arbeitsplatte und hochwertigen Markeneinbaugeräten ausgestattet. Die Kochinsel mit Blick auf den Essbereich bildet das Herzstück der Wohnung.
- Im Essbereich und im Schlafzimmer sind die Decken an der Giebelseite teilweise bis zum First ausgebaut, was den Räumen besonderen Charme und Großzügigkeit verleiht.
- Die Wohnung bietet zwei exklusiv ausgestattete und helle Bäder sowie ein Gäste-WC.
- Das Schlafzimmer ist mit ca. 26,34 m² besonders großzügig und könnte bei Bedarf geteilt werden. Im ursprünglichen Bauplan war dies so vorgesehen.
- Eine herrliche, etwa 25 m² große, uneinsehbare Südwest-Dachterrasse lädt zum Entspannen ein und bietet einen Blick über die Gärten und Dächer von Blankenese.
- Die obere Wohnebene bietet zwei offen gestaltete Räume, die bei Bedarf getrennt werden könnten, ein Duschbad sowie den Zugang zur Dachterrasse.
- Helle Räume dank der zahlreichen, teilweise bodentiefen Fensterflächen.
- 3-fach verglaste Holz-Sprossenfenster (Meranti).
- Teilweise elektrische Außenrollläden und Veluxfenster mit elektrischem Sonnenschutz.
- Fußbodenheizung, die für jeden Raum elektronisch regulierbar ist.
- Die Räume sind mit schönen Eichenholzdielen ausgestattet.
- Videogegensprechanlage vorhanden.
- Automatisches Be- und Entlüftungssystem.
- Ein Garagenstellplatz (Duplex) wird für zusätzlich € 25.000,- angeboten.
- Ein Kellerraum gehört zur Wohnung, und ein Fahrradkeller ist ebenfalls vorhanden.
Lage
Blankenese gehört zu den exklusivsten und schönsten Stadtteilen der Hamburger Elbvororte. Der Stadtteil ist bekannt für seine eleganten Villen, die historischen Fischerhäuser, das verwinkelte Treppenviertel sowie die Nähe zum Elbstrand. Die exklusive Eigentumswohnung befindet sich in einer ruhigen Seitenstraße, umgeben von viel Grün und einer attraktiven Nachbarschaftsbebauung.
Im Ortskern von Blankenese finden Sie hochwertige Einkaufsmöglichkeiten, Ärzte, Cafés, Restaurants, Friseure und mehr. Der Wochenmarkt lädt Sie dienstags, freitags und samstags zu einem Einkaufsbummel mit einer breiten Auswahl an regionalen frischen Produkten ein. Das Elbe-Einkaufszentrum ist nur 10 Autominuten oder 15 Minuten mit dem Fahrrad entfernt. In der Umgebung gibt es erstklassige Restaurants, die zum Genießen einladen. Die malerischen Spazierwege am Elbstrand sind perfekt zum Radfahren, Spazierengehen und Joggen. Auch die zahlreichen Parks, wie der Waldpark Marienhöhe, Schinckels Park und Goßlers Park, bieten viel Grün. Für Familien gibt es in der Nähe eine Vielzahl von Kitas, Grundschulen und weiterführenden Schulen. Sportbegeisterte finden in den umliegenden Vereinen zahlreiche Aktivitäten, wie Golf, Tennis, Polo, Reiten oder Segeln. Die Hamburger Innenstadt ist etwa 25 Autominuten oder ca. 35 Minuten mit öffentlichen Verkehrsmitteln entfernt.
Sonstige Angaben
Die Courtage in Höhe von 3 % inkl. der gesetzlichen Mehrwertsteuer auf den Kaufpreis trägt der Käufer und ist mit dem Zustandekommen des Kaufvertrages (notarieller Vertragsabschluss) verdient und fällig. Die Faust + Partner Immobilien oHG hat mit dem Verkäufer eine schriftliche Provisionsvereinbarung in gleicher Höhe geschlossen. Die Firma Faust + Partner Immobilien oHG erhält einen unmittelbaren Zahlungsanspruch gegenüber dem Käufer (Vertrag zugunsten Dritter, § 328 BGB). Alle Angaben sind ohne Gewähr und basieren ausschließlich auf Informationen, die uns von unserem Auftraggeber zur Verfügung gestellt wurden. Wir übernehmen keine Gewähr für die Vollständigkeit, Richtigkeit und Aktualität dieser Angaben. Die Grunderwerbsteuer, Notar- und Grundbuchkosten sind vom Käufer zu tragen. Im Übrigen gelten unsere Allgemeinen Geschäftsbedingungen. Irrtum und Zwischenverkauf vorbehalten.
Grundriss
Grundriss Dachgeschoss
>
>
Grundriss Spitzboden
>
>
Adresse
22587 Hamburg
Interessante Orte
Preis- und Lageinformationen
Preistrend für Bestandsimmobilien in Blankenese