Der Kaufpreis von 5.700.000,00 € setzt sich zusammen aus:
- Grundstückspreis inkl. Kaufnebenkosten
- kalkulierte Entstehungskosten für das Projekt laut Bauvertrag
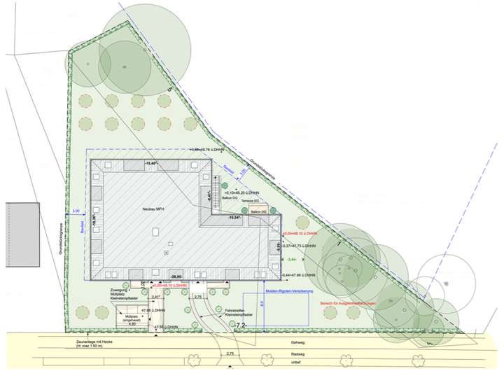
Das Grundstück verfügt über eine Gesamtfläche von ca. 3.729 qm, wovon momentan eine Fläche von ca. 1.497 qm zur Bebauung mit einem Wohn- und Geschäftshaus genutzt werden kann. Die Baugenehmigung hierfür richtet sich nach dem aktuellen B-Plan und liegt vor:
- realisierbare Fläche (Baugenehmigung) ca. 1.772 qm BGF
- 5 Gewerbeeinheiten
- 10 Wohneinheiten
- Tiefgarage
Nach Rücksprache mit dem Architekturbüro kann für die geplante Bebauung eine Änderungsgenehmigung mit nachfolgenden Inhalten beantragt werden:
- Aufstockung des Gebäudes auf insgesamt 4 Etagen und Verzicht auf die bauliche Umsetzung der Tiefgarage
- Nachweis von 15 Außenstellplätzen auf dem Grundstück
- Nutzung für betreutes Wohnen
- 5 Gewerbeeinheiten (Büro-/Serviceflächen)
- 15 Wohneinheiten
Ein Betreiber hat für das o. g. Vorhaben bereits direktes Interesse bekundet (Jahresnettokaltmiete ca. 331.046,00 € - 20,00 €/qm zzgl. Stellplätze, Laufzeit nach Absprache).
Ein Bauvertrag für die Realisierung des Projektes kann auf Wunsch ebenfalls vermittelt werden [...]
Ein ausführliches Exposé erhalten Sie auf Anfrage.
Projekt / Grundstück / Planung / Bauvertrag
16548 Glienicke/Nordbahn
Die vollständige Adresse der Immobilie erhalten Sie vom Anbieter.
Auf Karte anzeigen
Die vollständige Adresse der Immobilie erhalten Sie vom Anbieter.
Finanzierungszertifikat
In nur zwei Minuten zu Ihrem persönlichen Finanzierungszertifkat.
Infos
| Vermarktungsart | Kaufen |
|---|---|
| Grundstücksfläche | 3.729 m2 |
| Erschließung | Unerschlossen |
| Bebaubar nach | Bebauungsplan |
Kosten
| Miete pro Jahr |
5.800.000 € |
|---|---|
| Provision |
7,14 % inkl. MwSt. |
Finanzierungsrechner:
Kaufpreis:
600.000 €
Eigenkapital:
600.000 €
Monatliche Rate
0 €
Effektiver Jahreszins
0 %
Sollzinsbindung
10 Jahre
Beschreibung des Objekts
Lage
Glienicke/Nordbahn zählt zu den beliebten Wohnlagen in Berlins nördlichem Umland. Die Gegend wird von einer herrschaftlichen Villenbebauung auf durchgrünten Grundstücken mit altem Baumbestand, Einfamilienhäusern und Geschäftshäusern geprägt. Die unmittelbare Nähe zu Berlin und die grüne Umgebung machen den Ort zu einer begehrten Wohnlage für Familien und Menschen, die ihren Freiraum und die Natur zu schätzen wissen und gleichzeitig das urbane Leben nicht missen möchten.
Der Standort verfügt über eine gute Infrastruktur, darunter Einkaufsmöglichkeiten, Kindergärten, Schulen, Ärzte, Restaurants und weitere Angebote für den täglichen Bedarf [...]
Ein ausführliches Exposé erhalten Sie auf Anfrage.
Sonstige Angaben
Die Courtage in Höhe von 7,14 % inkl. der gesetzlichen Mehrwertsteuer auf den Kaufpreis ist mit dem Zustandekommen des Kaufvertrages (notarieller Vertragsabschluss) verdient und fällig. Die Wertstein Immobiliengesellschaft mbH erhält einen unmittelbaren Zahlungsanspruch gegenüber dem Käufer. Alle Angaben sind ohne Gewähr und basieren ausschließlich auf Informationen, die uns von unserem Auftraggeber zur Verfügung gestellt wurden. Wir übernehmen keine Gewähr für die Vollständigkeit, Richtigkeit und Aktualität dieser Angaben. Die Grunderwerbsteuer, Notar- und Grundbuchkosten sind vom Käufer zu tragen. Alle Angaben und Preise sowie Reservierungen sind unverbindlich und gelten immer nur vorbehaltlich der Zustimmung des Eigentümers. Ein Rechtsanspruch auf ein Kauf- oder Mietvertrag kommt erst durch Gegenzeichnung des selbigen durch den Eigentümer zustande.
Wichtiger Hinweis:
Nach erhalt Ihrer ausgefüllten Kontaktanfrage inkl. einer Rufnummer, über die Sie erreichbar sind, werden wir Sie kurzfristig kontaktieren. Wir bitten um Ihr Verständnis, dass wir keine Exposés mit detaillierten Adressangaben versenden können, wenn wir Sie telefonisch nicht erreichen sollten.
Die von uns in den Medien präsentierten Objekte umfassen nur einen kleinen Teil unseres Immobilienangebotes.
Sprechen Sie uns an. Wir haben für Sie stets eine Auswahl von Immobilien in Berlin, Dresden und Leipzig.
Als registrierter und legitimierter Kunde erhalten Sie von uns automatisch regelmäßig die aktuellsten Immobilienangebote.