Diese beeindruckende Villa in Großmehring thront auf einer Anhöhe am Ortsrand der Gemeinde Großmehring. Auf einem weitläufigen Grundstück von ca. 3.704 m² erwartet Sie ein einzigartiges Zuhause mit einer Wohnfläche von ca. 478 m², in dem sich großzügige 16 Zimmer verteilen. Diese Villa bietet insgesamt 9 Schlafzimmer und 6 luxuriöse Badezimmer, perfekt für Familien und Gäste.
Eine private Zufahrt führt Sie direkt zum Vorhof dieser prachtvollen Residenz. Das Haupthaus umfasst 4 luxuriöse Schlafzimmer, jedes mit eigenem Ensuite-Badezimmer, ein großzügiges Wohnzimmer, ein gemütliches Esszimmer, eine hochwertige Küche, einen praktischen Abstellraum sowie ein Gäste-WC. Über einen separaten Eingang gelangen Sie zu einer exquisiten Einliegerwohnung oder einem Bürobereich, der über 5 Zimmer, ein Bad und eine voll ausgestattete Küche verfügt. Das Untergeschoss bietet neben den Technikräumen einen großzügigen Abstellraum, der viel Stauraum bietet. Edle Marmorböden und warmes Parkett verleihen jedem Raum eine exklusive Note und unterstreichen das gehobene Ambiente dieser Villa.
Für Entspannung und Erholung sorgen sowohl der Indoor- als auch der Outdoorpool – ein Wellnessbereich, der keine Wünsche offenlässt. Ergänzt wird dieses Luxuserlebnis durch einen einladenden Jacuzzi. Zum Entspannen im Freien lädt die großzügige Terrasse ein, die nach Südosten ausgerichtet ist. Ein überdachter Freisitz bietet zudem die Möglichkeit, auch bei unbeständigem Wetter die frische Luft zu genießen.
Im westlichen Teil des Grundstücks befindet sich ein idyllischer Gartenbereich, der derzeit mit Hühnern und Ziegen besiedelt ist – ideal für Naturfreunde und Tierliebhaber.
Diese Villa verkörpert Luxus, Ruhe und ein Höchstmaß an Lebensqualität und bietet Ihnen ein Zuhause, das keine Wünsche offenlässt.
Atemberaubende Villa im Toskanastil
85098 Großmehring
Die vollständige Adresse der Immobilie erhalten Sie vom Anbieter.
Auf Karte anzeigen
Die vollständige Adresse der Immobilie erhalten Sie vom Anbieter.
Finanzierungszertifikat
In nur zwei Minuten zu Ihrem persönlichen Finanzierungszertifkat.
Infos
| Haustyp | Villa |
|---|---|
| Wohnfläche ca. | 478 m2 |
| Grundstücksfläche | 3.704 m2 |
| Bezugsfrei ab | nach Vereinbarung |
| Zimmer | 16 |
| Schlafzimmer | 9 |
| Badezimmer | 6 |
| Garage/Stellplatz | Garage |
| Anzahl Garage/Stellplatz | 5 |
Kosten
| Kaufpreis |
2.800.000 € |
|---|---|
| Provision |
3,57 % inkl. MwSt. Nach Abschluss eines rechtswirksamen Kaufvertrages ist der Käufer verpflichtet eine Provision in Höhe von 3,57 % inkl. MwSt. vom notariellen Kaufpreis an den Makler zu bezahlen. |
Finanzierungsrechner:
Kaufpreis:
600.000 €
Eigenkapital:
600.000 €
Monatliche Rate
0 €
Effektiver Jahreszins
0 %
Sollzinsbindung
10 Jahre
Bausubstanz & Energieausweis
| Baujahr | 2011 |
|---|---|
| Heizungsart | Fußbodenheizung |
| Wesentliche Energieträger | Erdwärme |
| Energieausweis | liegt vor |
| Energieausweistyp | Verbrauchsausweis |
| Energieverbrauchskennwert | 12,7 kWh/(m²*a) |
| Energieeffizienzklasse | A+ |
12,7
kWh/(m²*a)
Energieeffizienzklasse A+
- A+
- A
- B
- C
- D
- E
- F
- G
- H
- 0
- 25
- 50
- 75
- 100
- 125
- 150
- 175
- 200
- 225
- >250
Beschreibung des Objekts
Ausstattung
- Moderne Einbauküche mit Gaskochfeld
- Exklusive Bodenbeläge: Marmor und Parkett
- Großzügige Terrasse mit überdachtem Freisitz
- 5 Garagen mit elektrischem Torantrieb
- Fußbodenheizung
- Energieeffiziente Beheizung durch Sole/Wasser-Wärmepumpe und Erdwärme
- Intelligentes BUS-System
- Luxuriöse Innen- und Außenpools
- Stilvoller Koi-Teich im Vorhof
- Sicherheit durch Fingerprint-Türöffner und Alarmanlage
- Leistungsstarker Holzkamin mit 22 kW Heizleistung
- Hochwertige Holz-Alufenster
- Outdoor-Pizzaofen
- Jacuzzi im Außenbereich
Lage
Die exklusive Villa befindet sich in Großmehring, einer charmanten Gemeinde im Herzen Bayerns, die mit ihrer malerischen Umgebung und ihrer hervorragenden Anbindung viele Vorteile bietet. Die Ortschaft zeichnet sich durch eine gut entwickelte Infrastruktur aus, die von Einkaufsmöglichkeiten über Bildungs- und Betreuungseinrichtungen bis hin zu Restaurants reicht. Die Immobilie liegt außerdem nur ca. 15 Autominuten vom Ingolstadt Village entfernt.
Vor Ort gibt es eine KiTa, einen Kindergarten und eine Grundschule. Weiterführende Schulen befinden sich in der Ingolstädter Innenstadt und sind gut mit dem Bus zu erreichen.
Für Naturliebhaber bieten die umliegenden Grünflächen und Naherholungsgebiete zahlreiche Möglichkeiten zur Entspannung und aktiven Freizeitgestaltung. Zudem profitieren Sie von einer hervorragenden Verkehrsanbindung (ca. 5 km zur A9), die es ermöglicht, sowohl mit dem Auto als auch mit öffentlichen Verkehrsmitteln schnell an Ihr Ziel zu gelangen, sei es in innerstädtische Bereiche oder in weiter entfernte Metropolen.
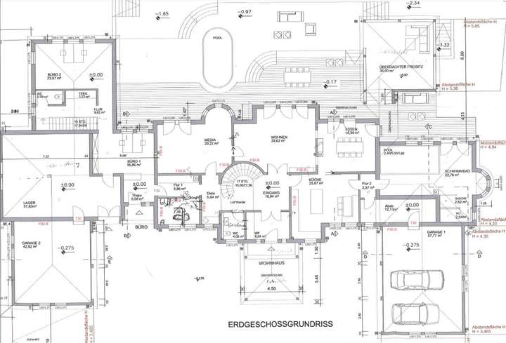
Grundriss
Erdgeschoss
>
>
Obergeschoss
>
>
Keller
>
>
Adresse
85098 Großmehring
Interessante Orte
Preis- und Lageinformationen
Preistrend für Bestandsimmobilien in Großmehring