Entdecken Sie dieses sonnige, knapp 760 qm große Grundstück in Sa Rapita, das Ihnen die Möglichkeit bietet, Ihre Traumvilla zu verwirklichen. Mit einem durchdachten Projekt für ein modernes, zweigeschossiges Wohnhaus, erfüllt dieses Angebot alle Wünsche an komfortables und stilvolles Wohnen.
Nur etwa 700 Meter entfernt erwartet Sie die malerische Promenade, die mit einer Vielzahl von Restaurants, einer Bäckerei und direkten Einstieg ins glitzernde Meer, dass zum Schwimmen einlädt. Genießen Sie die ruhige Nachbarschaft, während Sie gleichzeitig in der Nähe aller Annehmlichkeiten und nur 30 Minuten von Palma entfernt sind.
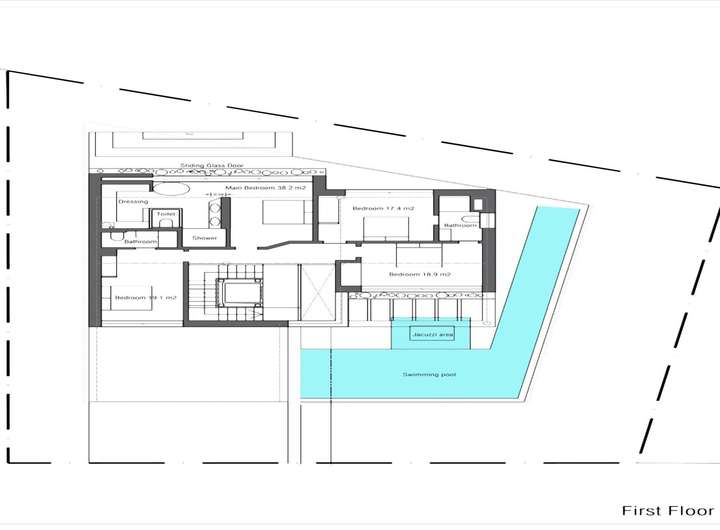
Das geplante Projekt umfasst ein großzügiges, zweistöckiges Wohnkonzept mit einem durchdachten Raumdesign. Im Erdgeschoss erwartet Sie eine offene Küche, die nahtlos in einen eleganten Wohn- und Essbereich übergeht. Große Fensterfronten garantieren Helligkeit und laden die Natur ins Innere Ihres neuen Zuhauses ein. Der direkt anschließende Außenbereich mit einem einladenden Pool lädt zum Entspannen und Verweilen ein.
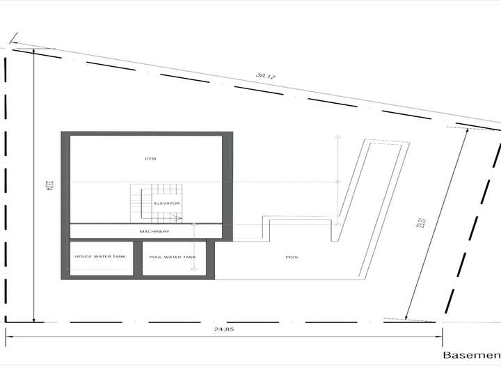
Im ersten Stock finden Sie 4 geräumige Schlafzimmer, von denen 2 über ein eigenes Badezimmer en Suite verfügen – perfekt für Gäste oder die Familie. Ein besonderes Highlight ist der geplante Keller, der Platz für einen kleinen Wellness-Bereich mit Fitnessraum und Sauna genutzt werden kann. Genießen Sie entspannte Stunden in Ihrer persönlichen Oase der Ruhe nach einem langen Tag am Strand.
Lassen Sie Ihrer Fantasie freien Lauf und gestalten Sie Ihr persönliches Paradies in dieser traumhaften Umgebung, nur 30 Minuten vom Flughafen von Palma entfernt.
Baugrundstück mit genehmigten Projekt für eine zweistöckige Villa in Sa Rapita
07639 Campos
Die vollständige Adresse der Immobilie erhalten Sie vom Anbieter.
Auf Karte anzeigen
Die vollständige Adresse der Immobilie erhalten Sie vom Anbieter.
Finanzierungszertifikat
In nur zwei Minuten zu Ihrem persönlichen Finanzierungszertifkat.
Infos
| Vermarktungsart | Kaufen |
|---|---|
| Grundstücksfläche | 756 m2 |
Kosten
| Miete pro Jahr |
480.000 € |
|---|---|
| Provision | Nein |
Finanzierungsrechner:
Kaufpreis:
600.000 €
Eigenkapital:
600.000 €
Monatliche Rate
0 €
Effektiver Jahreszins
0 %
Sollzinsbindung
10 Jahre
Beschreibung des Objekts
Lage
Das Landstädtchen Campos im Südosten der Insel liegt verkehrstechnisch günstig auf halbem Weg zwischen Llucmajor und Santanyí. Umgeben von weitläufigen, landwirtschaftlich genutzten Flächen bietet es zahlreiche Geschäfte für den täglichen Bedarf, Restaurants und Sporteinrichtungen. Von dem schon seit dem Mittelalter bestehenden Ort stehen heute nur noch einige Wehrtürme, heutzutage ist Campos eine lebendige Kleinstadt, die vor allem an den Markttagen zahlreiche Besucher anlockt.
Der berühmte, lange Sandstrand von Es Trenc mit seinen Dünen und türkisblauem Meer gehört zur Gemeinde Campos und bietet Badefreuden mit karibischem Flair.
Den Flughafen erreichen Sie in 25 Minuten, die Inselhauptstadt Palma liegt rund 35 km entfernt.