Ein Haus mit mehreren Wohn-Optionen
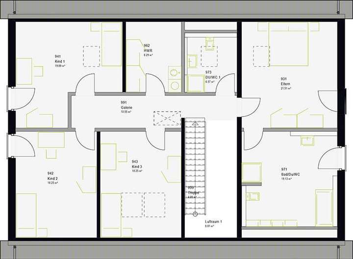
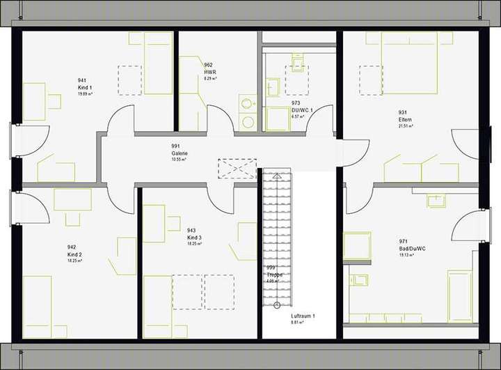
Das FamilyStyle 26.01 S bietet auf einer Nettogrundfläche von 265 m² viel Raum für unterschiedlichste Wohnideen - vom Mehrgenerationenwohnen bis zur vermieteten Einliegerwohnung als Finanzierungshilfe. Möglich macht dies die Aufteilung des Hauses in eine komplette, separate Wohnung im Erdgeschoss - und das eineinhalbgeschossige Wohnen der Bauherrenfamilie, das das Erdgeschoss ausschließlich dem Lebensmittelpunkt im offen angelegten Wohn-, Ess- und Küchenbereich vorbehält. Im Obergeschoss gestatten 127 m² großzügiges Wohnen in drei Kinderzimmern samt eigenem Kinderbad sowie im Elternzimmer mit direkt angegliederter Wellness-Oase.
modern, nachhaltig, ressourcenschonend, wie wünschen Sie sich Ihr Mehrgenerationenhaus?
88348 Bad Saulgau
Die vollständige Adresse der Immobilie erhalten Sie vom Anbieter.
Auf Karte anzeigen
Die vollständige Adresse der Immobilie erhalten Sie vom Anbieter.
Finanzierungszertifikat
In nur zwei Minuten zu Ihrem persönlichen Finanzierungszertifkat.
Infos
| Wohnfläche ca. | 264 m2 |
|---|---|
| Grundstücksfläche | 630 m2 |
| Zimmer | 8 |
| Schlafzimmer | 5 |
| Badezimmer | 3 |
Kosten
| Kaufpreis |
620.349 € |
|---|---|
| Provision | Nein |
Finanzierungsrechner:
Kaufpreis:
600.000 €
Eigenkapital:
600.000 €
Monatliche Rate
0 €
Effektiver Jahreszins
0 %
Sollzinsbindung
10 Jahre
Bausubstanz & Energieausweis
| Baujahr | unbekannt |
|---|---|
| Bauphase | Haus in Planung (projektiert) |
Beschreibung des Objekts
Ausstattung
Bauen Sie jetzt - mit dem Marktführer m a s s a h a u s
Sie bekommen BESTE QUALITÄT für einen unschlagbaren GÜNSTIGEN PREIS...das gibts nur bei massa haus
Wir bieten Ihnen Modernste Technik und optimaler Wärmeschutz.
IM ANGEBOT ENTHALTEN:
- Energiesparhaus auf Bodenplatte (Keller optional)
- inkl. Deckenhöhe 2,75m
- inkl. Grundstück
- inkl. Heizungsmontage
- inkl. kontrollierter Be-und Entlüftung mit Wärmerückgewinnung
- inkl. Sanitärmontage
- inkl. Elektromontage
- inkl. Treppenmontage
- inkl. Architektenleistung
- inkl. Baugrunduntersuchung
- inkl. Blower Door Test
- inkl. Bauleistungsversicherung
- inkl. Bauherren-Haftpflichtversicherung
- inkl. Wohngebäudeversicherung
- inkl. Feuer-Rohbauversicherung
- inkl. Einkommensschutz (ALV-plus)
Zu diesem Angebot kommt zzgl. der Restausbau und Baunebenkosten:
Restausbau:
- Materialien für den Innenausbau
Baunebenkosten:
- Baustelleneinrichtung
- Hausanschlusskosten
- Erdarbeiten
Über 100 verschiedene Hausvorschläge, die noch individuell planbar sind. Sie können aus verschiedenen Ausbaustufen wählen.
AUSSERDEM BIETEN WIR IHNEN:
- Finanzierungsservice (auch ohne Eigenkapital ist bei uns das bauen möglich)
- Grundstücksservice
- mehr als 45 Jahre Bauerfahrung mit weit über 40.000 gebauten Häusern
- made in Germany
- Sicherheit eines Großunternehmens mit Top Qualität
- Ohne Vorauszahlungen, Bezahlung nach Abnahme
- 15 Monate Festpreisgarantie
- Professionelle Bauberatung und persönliche Baubetreuung
Sonstige Angaben
Das Vertrauen unserer Kunden ist uns wichtig. Unseren Kunden auch! Denn nicht
umsonst bleiben uns unsere Kunden über Jahrzehnte hinweg treu. Dafür möchten wir uns an dieser Stelle herzlich bedanken und versichern, dass all unser Tun dem Ziel dient, unseren Kunden stets nur das Beste zu bieten. Unser stetig an die Anforderungen modernen Bauens angepasstes Ausbauhaus-Prinzip macht Ihren Hausbau zur sicheren Investition.
Unsere Fertighaus-Ausstattung umfasst jeglichen Wohnkomfort von Smart Home über Lichtgiebel bis Panoramafenster und variablen Grundrissen bis zu mehr Freiraum durch serienmäßig höhere Wände. Diese Vielfalt zum fairen Preis zeichnet unsere Ausbauhaus-Philosophie aus...
So geht Hausbau heute: gut, gesund und dabei günstig!
Grundriss
Erdgeschoss
>
>
Dachgeschoss
>
>
Adresse
88348 Bad Saulgau
Interessante Orte
Preis- und Lageinformationen
Preistrend für Bestandsimmobilien in Bad Saulgau