Auf den ersten Blick ein schlichtes Satteldachhaus, das aber mit zahlreichen gestalterischen Highlights aufwarten kann. Dazu zählen die modernen, teils liegenden Fensterformate mit anthrazitfarbenen Rahmen und die, jeweils in grau abgesetzten Anbauteile – der großzügige Querhauserker sowie der abgestützte Balkon. Im Innenraum dominieren Holz, dunkelgrau und weiß, eine Kombination, die gleichermaßen Schick und Wärme verbreitet.
Der Grundriss ist großzügig und bietet einer Familie mit zwei Kindern viel Raum zum Wohlfühlen.
Intelligente Stauraumlösungen wie die an die Küche angrenzende Speis, die als Gegenpart zur Garderobennische im Eingangsbereich geplant wurde sorgen für Komfort und Funktionalität.
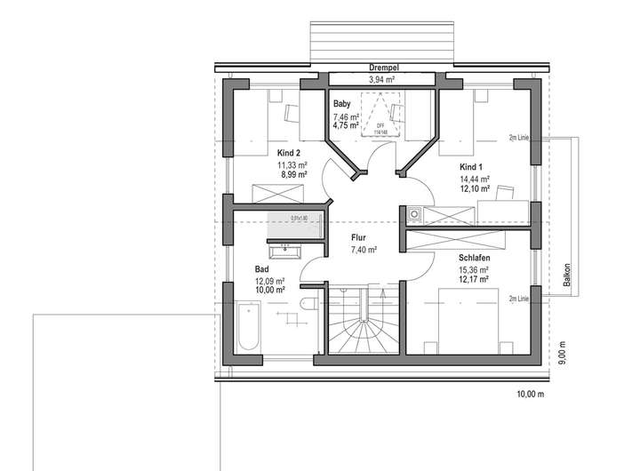
Der Ofen im Wohnraum verbreitet Behaglichkeit. Im Obergeschoss gehen vom Flur zwei Kinderzimmer, ein Elternschlafzimmer und ein großes Familienbad ab.
Eine klassische Aufteilung mit raffinierten Details, die, wenn die Kinder aus dem Haus sind, viel Raum für Freizeit, Hobbies und Selbstverwirklichung lässt.
(Abbildung zeigt Sonderausstattung)
Traumhaus inklusive Grundstück in Top-Lage – Ihr neues Zuhause wartet auf Sie!
72362 Nusplingen
Die vollständige Adresse der Immobilie erhalten Sie vom Anbieter.
Auf Karte anzeigen
Die vollständige Adresse der Immobilie erhalten Sie vom Anbieter.
Finanzierungszertifikat
In nur zwei Minuten zu Ihrem persönlichen Finanzierungszertifkat.
Infos
| Haustyp | Einfamilienhaus |
|---|---|
| Etagenzahl | 2 |
| Wohnfläche ca. | 143 m2 |
| Grundstücksfläche | 642 m2 |
| Zimmer | 5 |
| Schlafzimmer | 4 |
| Badezimmer | 1 |
Kosten
| Kaufpreis |
575.500 € |
|---|---|
| Provision | Nein |
Finanzierungsrechner:
Kaufpreis:
600.000 €
Eigenkapital:
600.000 €
Monatliche Rate
0 €
Effektiver Jahreszins
0 %
Sollzinsbindung
10 Jahre
Bausubstanz & Energieausweis
| Bauphase | Haus in Planung (projektiert) |
|---|---|
| Qualität der Austattung | Gehoben |
| Heizungsart | Wärmepumpe |
Beschreibung des Objekts
Ausstattung
Dieses schöne Satteldachhaus ist ausgestattet mit Objekten deutscher Markenhersteller. Um Ihre individuelle Note zu betonen, laden wir Sie in unsere LUXHAUS Boutique ein - dort erwarten Sie unsere LUXHAUS Innenarchitekten, um mit Ihnen gemeinsam die Ausstattung festzulegen.
In diesem Angebot enthalten sind unter anderem:
- Bodenplatte mit Frostschürze
- Fußbodenheizung
- elektrische Rollläden
- großformatige Bodenfliesen sowie
Laminatboden
- Maler- und Tapezierarbeiten
- Badezimmer: großformatige Wand- und
Bodenfliesen, eine Badewanne,
-Grundstück 642 m² in Hanglage.
(Bitte beachten Sie, dass eventuell ein Keller mitgeplant werden sollte)
zzgl. der zu erwartenden Kauf-, u. Baunebenkosten.
Für weitere Informationen und individuelle Beratung sprechen Sie mich gerne an!
Abbildungen zeigen Sonderausstattung, diese sind nicht im angegebenen Kaufpreis enthalten.
Lage
Nusplingen liegt in der Schwäbischen Alb, einer malerischen Region in Baden-Württemberg. Das Dorf ist von sanften Hügeln, Wäldern und Wiesen umgeben und bietet eine ruhige, naturnahe Atmosphäre. Die Umgebung ist ideal für Natur- und Outdoor-Aktivitäten.
Alle wichtigen Einrichtungen sind bequem zu Fuß erreichbar: Ärzte, Kindergarten, Schule, Hallenbad, Bäcker, Eisdiele, Apotheke, Metzger, Friseur und Supermarkt.
Das Grundstück liegt in einem wunderschönen Wander- und Naherholungsgebiet der schwäbischen Alb.
Dort leben wo andere Urlaub machen, umgeben von einer tollen Nachbarschaft.
Sonstige Angaben
LUXHAUS bietet Ein- und Zweifamilienhäuser in diffusionsoffener Holztafelbauweise an. Die Häuser zeichnen sich durch individuelle Planung und Fertigung ohne Rastermaße, anspruchsvolle Architektur und innovative Technik aus. Die moderne LUXHAUS Musterhaus-Architektur ist vom klassischen Bauhaus-Stil inspiriert und in individuellen Wohnkonzepten in geradlinigem Design mit liebevollen Details interpretiert.
Darüber hinaus bietet LUXHAUS ein breites Spektrum an Ideen und Erfahrungen, um Häuser für den ganz persönlichen Stil und die wirtschaftlichen Möglichkeiten der Bauherren umzusetzen. Von Anfang an stehen dem Kunden kompetente Berater zur Seite. Welche Räume braucht der Bauherr, um seine Lebensart zu verwirklichen? Welche Formen passen zum individuellen Stil? Bei welcher Deckenhöhe fühlt er sich am wohlsten und welche Haustechnologie unterstützt die individuellen Gewohnheiten am besten?
LUXHÄUSER sind nicht nur in der Architektur und in der Haustechnologie, sondern auch im Interieurdesign in jedem Detail durchdacht. Bei allen Fragen rund um Design sowie Auswahl von Farben und Materialien für den Innenausbau stehen dem Kunden Innenarchitekten zur Verfügung.
In der LUXHAUS Boutique können die Bauherren sich in der Planungsphase in aller Ruhe beraten lassen.
Grundriss
Grundriss DG
>
>
Grundriss EG
>
>
Adresse
72362 Nusplingen
Interessante Orte
Preis- und Lageinformationen
Preistrend für Bestandsimmobilien in Nusplingen