Das unbebaute schöne Baugrundstück befindet sich in einer guten Ortslage in Germerswang bei Maisach.
Die Grundstücksgröße beträgt 891 m². Flur Nr. 74.
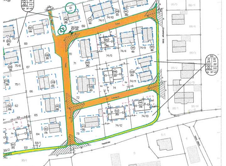
Die Bebauung des schönen Grundstücks richtet sich nach dem Bebauungsplan "Kreuzstraße / Frauenbergerstraße".
Eckdaten:
-Allgemeines Wohngebiet
-Geschoßfläche 430
-Grundfläche 257
-2 Vollgeschosse + Dachgeschoss
usw.
Der Bebauungsplan kann gerne zur Verfügung gestellt werden. Das Grundstück wird dann noch an die Bgm.-Schlatter-Straße fertig angeschlossen.
Die angrenzenden unbebauten Grundstücke Flur Nr. 74/12 zu 843 m² und Flur Nr. 74/13 zu 828 m² können eventuell auch erworben werden.
Schönes Baugrundstück in Germerswang bei Maisach
82216 Maisach
Die vollständige Adresse der Immobilie erhalten Sie vom Anbieter.
Auf Karte anzeigen
Die vollständige Adresse der Immobilie erhalten Sie vom Anbieter.
Finanzierungszertifikat
In nur zwei Minuten zu Ihrem persönlichen Finanzierungszertifkat.
Infos
| Vermarktungsart | Kaufen |
|---|---|
| Grundstücksfläche | 891 m2 |
| Bebaubar nach | Bebauungsplan |
Kosten
| Miete pro Jahr |
798.000 € |
|---|---|
| Provision |
3,57 % inkl. ges. MwSt. |
Finanzierungsrechner:
Kaufpreis:
600.000 €
Eigenkapital:
600.000 €
Monatliche Rate
0 €
Effektiver Jahreszins
0 %
Sollzinsbindung
10 Jahre
Beschreibung des Objekts
Lage
Das schöne unbebaute Grundstück befindet sich in einer guten Ortslage in Germerswang bei Maisach. Germerswang ist ein Ortsteil von Maisach (ca. 3km).
Die S-Bahnhaltestelle Malching ist innerhalb weniger Minuten zu erreichen.
Der Kindergarten ist vor Ort. Grund-, Mittel- und Realschule sind in Maisach, das Gymnasium in Fürstenfeldbruck oder Olching,
Alle Einkaufsmöglichkeiten für den täglichen Bedarf, Ärzte, Apotheken usw. sind ebenfalls in Maisach.
Naheliegende Wälder mit herrlichen Rad- und Wanderwegen, das Freibad in Maisach, ein Badeweiher in Gernlinden, der Golfplatz in Rottbach, Sportanlagen usw. gewährleisten einen sehr hohen Freizeitwert.
Über die naheliegende Bundestraße B 471 (Autobahn A8 Stuttgart-München) ist München gut zu erreichen.