In ruhiger und beliebter Lage von Reichertshausen-Langwaid präsentiert sich dieses gepflegte Mehrfamilienhaus mit drei großzügigen Wohneinheiten als attraktive Kapitalanlage mit stabiler Rendite. Das massiv gebaute Haus aus dem Jahr 1964 wurde regelmäßig modernisiert und befindet sich in einem sehr guten Zustand. Die Wohnfläche von insgesamt ca. 242 m² verteilt sich auf drei 3-Zimmer-Wohnungen mit durchdachten Grundrissen. Im DG wurde das Bad in Küche und Bad aufgeteilt, um ein vollwertiges 3. Zimmer zu erhalten.
Alle Einheiten sind langfristig vermietet und erzielen aktuell eine Jahresnettokaltmiete von rund 23.500 €. Mit einer Grundstücksgröße von 621 m², vier Außenstellplätzen und modernisierten Bauteilen wie Heizung, Fenstern und Dämmung bietet die Immobilie ein solides Fundament für Ihr Investment.
Nutzen Sie die Chance auf eine gepflegte Bestandsimmobilie in attraktiver Lage mit laufenden Mieteinnahmen. Wir freuen uns auf Ihre Anfrage – fordern Sie jetzt das ausführliche Exposé an!
Vermögenssicher mit Substanz
85293 Reichertshausen
Die vollständige Adresse der Immobilie erhalten Sie vom Anbieter.
Auf Karte anzeigen
Die vollständige Adresse der Immobilie erhalten Sie vom Anbieter.
Finanzierungszertifikat
In nur zwei Minuten zu Ihrem persönlichen Finanzierungszertifkat.
Infos
| Haustyp | Mehrfamilienhaus |
|---|---|
| Etagenzahl | 3 |
| Wohnfläche ca. | 242 m2 |
| Nutzfläche | 80 m2 |
| Grundstücksfläche | 621 m2 |
| Bezugsfrei ab | nach Vereinbarung |
| Zimmer | 9 |
| Schlafzimmer | 6 |
| Badezimmer | 3 |
| Garage/Stellplatz | Außenstellplatz |
| Anzahl Garage/Stellplatz | 4 |
Kosten
| Kaufpreis |
669.000 € |
|---|---|
| Provision |
3,57% |
Finanzierungsrechner:
Kaufpreis:
600.000 €
Eigenkapital:
600.000 €
Monatliche Rate
0 €
Effektiver Jahreszins
0 %
Sollzinsbindung
10 Jahre
Bausubstanz & Energieausweis
| Baujahr | 1964 |
|---|---|
| Objektzustand | Gepflegt |
| Qualität der Austattung | Normal |
| Heizungsart | Öl-Heizung |
| Wesentliche Energieträger | Öl |
| Energieausweis | liegt vor |
| Energieausweistyp | Verbrauchsausweis |
| Energieverbrauchskennwert | 87,0 kWh/(m²*a) |
| Energieeffizienzklasse | C |
87,0
kWh/(m²*a)
Energieeffizienzklasse C
- A+
- A
- B
- C
- D
- E
- F
- G
- H
- 0
- 25
- 50
- 75
- 100
- 125
- 150
- 175
- 200
- 225
- >250
Beschreibung des Objekts
Ausstattung
*Drei großzügige 3-Zimmer-Wohnungen mit ca. 65 m², 86 m² und 91 m² Wohnfläche
*Voll unterkellert
*Vier Kfz-Stellplätze
*Modernisierte Fenster, Heizungsanlage und Bäder
*Dämmmaßnahmen an Kellerdecke und Außenbereichen
*Gepflegte Allgemeinflächen
*Gas-Zentralheizung
*Energieverbrauchsausweis vorhanden (Endenergieverbrauch: 126,5 kWh/m²a, Öl)
*Gute Vermietbarkeit
Lage
Das Mehrfamilienhaus befindet sich im Ortsteil Langwaid der Gemeinde Reichertshausen im oberbayerischen Landkreis Pfaffenhofen a.d.Ilm. Die naturnahe Umgebung vereint ländliche Ruhe mit schneller Erreichbarkeit der B13 sowie guter Anbindung Richtung München und Ingolstadt. Einkaufsmöglichkeiten, Kindergarten, Schule und S-Bahn-Anschluss (Reichertshausen) befinden sich in wenigen Minuten Entfernung. Die Lage ist bei Mietern besonders aufgrund der ruhigen, grünen Wohnqualität und der schnellen Erreichbarkeit regionaler Zentren beliebt.
Sonstige Angaben
Alle Angaben sind ohne Gewähr und basieren ausschließlich auf Informationen, die uns von unserem Auftraggeber übermittelt wurden. Wir übernehmen keine Gewähr für die Vollständigkeit, Richtigkeit und Aktualität dieser Angaben. Irrtum und Zwischenverkauf oder Zwischenvermietung vorbehalten. Aufgrund des Geldwäschegesetzes (GwG) sind wir verpflichtet, spätestens bei Kaufinteresse Ihre Personalien zu überprüfen und dies auch nachzuweisen. Bitte haben Sie daher Verständnis, dass wir eine Kopie Ihres Personalausweises anfertigen müssen, sowie sämtliche Daten werden durch uns selbstverständlich streng vertraulich behandelt. Erfüllungsort für alle Verpflichtungen des Kunden ist der Sitz unserer Firma. Ist der Kunde Kaufmann im Sinne des HGB, ist Gerichtsstand der Sitz unserer Firma.
Dieses Exposé ist eine Vorabinformation. Als Rechtsgrundlage gilt allein der notariell abgeschlossene Kaufvertrag.
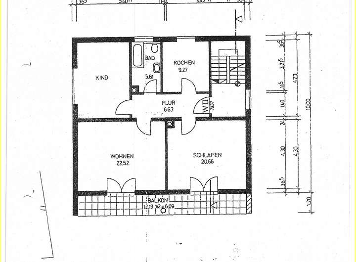
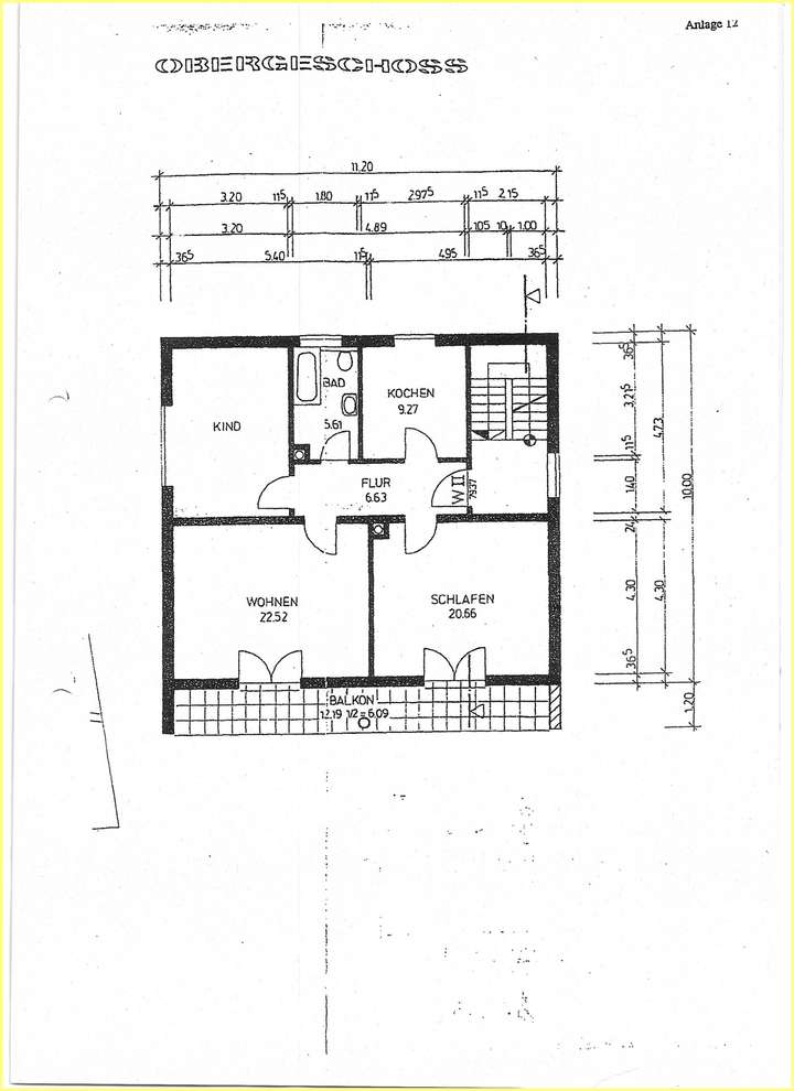
Grundriss
Grundriss EG TS9rs
>
>
Grundriss OG TS9rs
>
>
Grundriss DG TS9rs
>
>
Adresse
85293 Reichertshausen
Interessante Orte
Preis- und Lageinformationen
Preistrend für Bestandsimmobilien in Reichertshausen