Wir bieten Ihnen hier ein Baugrundstück mit 884 qm plus 3500 qm Grünland an
( im Lageplan Flur 108/1 mit direkt angrenzendem Teil von Grünland Flur 108 ).
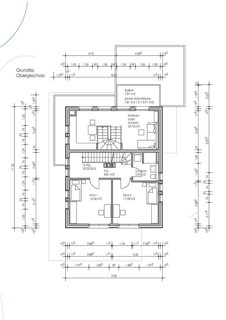
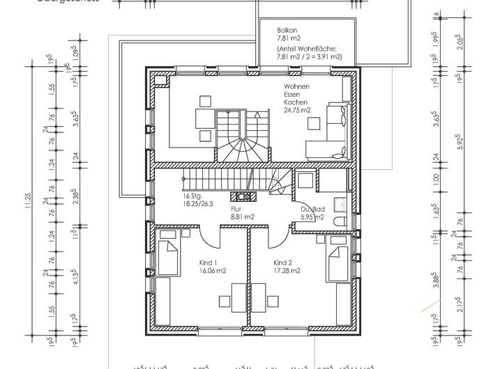
Ihr Traum vom Einfamilienhaus mit 170 qm Wohnfläche + 80 qm Nutzfläche +
53 qm Wohnfläche (Einliegerwohnung!)
könnte hier Wirklichkeit werden.
Im Lageplan sehen Sie die Lage und maximale Größe der Bebaubarkeit im sog. Innenbereich des Grundstücks.
Der angefügte Hausentwurf ist so bereits genehmigt und könnte kurzfristig umgesetzt werden.
Natürlich ist auch ein neuer Bauantrag für ein Haus, welches im genehmigungsfähigen Rahmen nach Ihren Vorstellungen gestaltet ist, möglich.
Grund und Boden sind wertvoll und eine gute Investition, Baukosten jedoch hoch.
Aber was halten Sie von der Idee, alternativ zunächst ein Tinyhaus für Wohnzwecke zu errichten und den Garten in ein Paradies zur Selbstversorgung mit Obst und Gemüse zu verwandeln?
Wir haben Ihnen diese Idee einmal visualisiert mit dem angrenzenden Grünland als Streuobstwiese und Schafweide.
Der Hausbau könnte zu einem späteren Zeitpunkt immer noch umgesetzt werden.
Ähnliches wäre auf Grundstück Flur 108/3
( s. Lageplan ) denkbar.
Es hat eine Fläche von 834 qm
bebaubar mit 213 qm Wohnfläche + 76 qm Nutzfläche. Hinzu kommen ca. 1850 qm Grünland zur Nutzung als Streuobstwiese und Weide ( im Lageplan vorderer Teil von Flur 108 ).
Preis: 590.000 €
Vereinbaren Sie gern einen Besichtigungstermin mit uns. Vor Ort können Sie sich ein Bild von der schönen Lage und Umgebung machen und alle Fragen klären.
Finanzierungszertifikat
In nur zwei Minuten zu Ihrem persönlichen Finanzierungszertifkat.
Infos
| Vermarktungsart | Kaufen |
|---|---|
| Grundstücksfläche | 4.384 m2 |
| Verfügbar ab | sofort |
Kosten
| Miete pro Jahr |
630.000 € |
|---|---|
| Provision | Nein |
Finanzierungsrechner:
Kaufpreis:
600.000 €
Eigenkapital:
600.000 €
Monatliche Rate
0 €
Effektiver Jahreszins
0 %
Sollzinsbindung
10 Jahre
Beschreibung des Objekts
Lage
Oberschweinbach ist idyllisch ländlich und dennoch verkehrsgünstig gelegen. Die nächste S-Bahn und Regionalbahn ist in 5 Autominuten in Mammendorf erreichbar.
Die schöne Stadt Fürstenfeldbruck in 14 km Entfernung bietet attraktive Einkaufsmöglichkeiten und sonstige Infrastruktur des täglichen Lebens.
In 35 Min. Entfernung wartet auch Augsburg auf Erkundungen.
Nach München werden Sie ca. 45 Min. mit dem Auto fahren, die Regionalbahn bringt Sie bis zum Hbf in nur 20 Min. !
Das Beste zum Schluss: Der Ammersee liegt nur 25 Min. Fahrzeit vom Grundstück entfernt.
Weitere Dokumente
lageplan-haus_4genehmigungsplan-haus_4
Grundriss
grundriss-eg
>
>
grundriss-og
>
>