Sofort bauen. Für immer bleiben.
Lebensqualität in ihrer schönsten Form – dieses voll erschlossene Grundstück mit Baugenehmigung liegt in einer der begehrtesten Lagen von Fischbachau: sonnig, ruhig und doch ganz zentral – am Ende einer charmanten Sackgasse.
Nur wenige Minuten vom Bahnhof entfernt eröffnet sich hier ein Ort, an dem sich Naturverbundenheit, Zukunftssicherheit und gestalterische Freiheit vereinen.
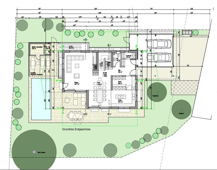
Die Planung eines erfahrenen Architekten ist bereits enthalten. Sie können sofort loslegen oder mit wenigen Anpassungen Ihr individuelles Traumhaus gestalten – ganz ohne Zeitverlust, mit klar kalkulierbarer Grundlage.
Die Nachbarschaft ist geprägt von stilvoller neuer bayerischer Architektur – ein harmonisches kleines Gefüge mit Charakter.
Fischbachau bietet eine seltene Kombination: Rückzug und Anbindung, Stille und Struktur, Geborgenheit und Weitblick.
Hier entsteht kein Projekt von der Stange – sondern ein Zuhause mit Seele, Klarheit und echter Perspektive. Ein Grundstück, das nicht auf Ideen wartet – sondern bereit ist für Ihren nächsten Schritt.
Die beiliegende Planung versteht sich als Angebot – selbstverständlich können Sie das Bauvorhaben individuell anpassen. Die ruhige und zukunftssichere Lage bietet ideale Voraussetzungen für nachhaltiges Bauen und ein Leben im Einklang mit Natur und Klima. Ein inspirierender Ort für alle, die einen Gegenpol zur Schnelllebigkeit suchen.
Sofort bauen. Für immer bleiben. Voll erschlossen mit Planungsvorsprung
83730 Fischbachau
Die vollständige Adresse der Immobilie erhalten Sie vom Anbieter.
Auf Karte anzeigen
Die vollständige Adresse der Immobilie erhalten Sie vom Anbieter.
Finanzierungszertifikat
In nur zwei Minuten zu Ihrem persönlichen Finanzierungszertifkat.
Infos
| Vermarktungsart | Kaufen |
|---|---|
| Grundstücksfläche | 873 m2 |
| Erschließung | Erschlossen |
| Empfohlene Nutzung | Einfamilienhaus |
| Bebaubar nach | wie Nachbarbebauung |
| Verfügbar ab | sofort |
Kosten
| Miete pro Jahr |
990.000 € |
|---|---|
| Provision |
3,57% inkl. 19% MwSt. vom Gesamtkaufpreis Mit Abschluss des Kaufvertrages wird eine Käufer-Provision in Höhe von 3,57% inkl. 19% MwSt. des Kaufpreises an den Makler fällig. |
Finanzierungsrechner:
Kaufpreis:
600.000 €
Eigenkapital:
600.000 €
Monatliche Rate
0 €
Effektiver Jahreszins
0 %
Sollzinsbindung
10 Jahre
Beschreibung des Objekts
Lage
Fischbachau liegt im malerischen Leitzachtal, südlich des Tegernsees, eingebettet in die Landschaft des oberbayerischen Alpenvorlands. Der Ort begeistert durch seine naturnahe Lage mit Blick auf Breitenstein, Wendelstein und umliegende Gipfel – und bietet eine hohe Lebensqualität für alle, die Ruhe, Natur und Bodenständigkeit suchen.
Der Ortskern ist charmant gewachsen, mit Geschäften des täglichen Bedarfs, Cafés, Kindergarten, Grundschule, Ärzten und traditioneller Gastronomie. Kulturelles Zentrum ist das barocke Kloster Birkenstein – ein beliebter Wallfahrtsort mit besonderer Ausstrahlung.
Der Freizeitwert ist ganzjährig hoch: Wandern, Skitouren, Langlaufen, Mountainbiken oder einfach Entspannen – direkt vor der Haustür. Der nahegelegene Wolfsee ist ein echter Geheimtipp zum Spazieren, SUP-Fahren oder Eisbaden.
Die Anbindung an München erfolgt über die Bayerische Regiobahn (BRB) mit Anschluss an die BRB-Linie sowie über die Autobahn A8 (ca. 20 Min. entfernt).
Sonstige Angaben
Wir freuen uns auf Ihre Kontaktaufnahme – bitte ausschließlich online über den nebenstehenden NACHRICHT - BUTTON.
Bitte beachten Sie, dass Ihre Anfrage im ersten Schritt aufgrund von Datenschutzbestimmungen nur in dieser Form bearbeitet werden kann.
Dieses Exposé dient nur zur Information und stellt kein vertragliches Angebot dar. Alle Angaben vom Objekt stammen vom Eigentümer und wurden von uns nicht verifiziert. Es wird keine Exposé-Haftung übernommen. Alle in diesem Exposé enthaltenen Abbildungen, Visualisierungen und Pläne dienen ausschließlich der Veranschaulichung und stellen keine verbindliche Grundlage für die Ausführung des Bauvorhabens dar. Sie sind als schematische Darstellungen bzw. Gestaltungsvorschläge zu verstehen.
Änderungen und Zwischenverkauf/- vermietung bleiben vorbehalten.
Eine Weitergabe oder Kopie dieses Exposés ist untersagt. Im Übrigen gelten unsere Allgemeinen Geschäftsbedingungen: www.alpen-immo.net
Diese Immobilie wird von der Alpen-Immo GmbH im Alleinauftrag verkauft bzw. vermietet.
Wir sind zugleich für den Verkäufer bzw. Vermieter provisionspflichtig tätig.
Alpen-Immo GmbH
KOSTENLOSE BEWERTUNGEN unter Telefon +49 8026 922 665 | info@alpen-immo.net
Rathausstraße 2 in 83727 Schliersee
HEIMAT.verbunden | Zuhause in der Alpenregion
Grundriss
Beispielplanung_Ansicht Ost
>
>
Beispielplanung_Ansicht Nord
>
>
Beispielplanung_Ansicht Süd
>
>
Beispielplanung_Grundriss Erdg
>
>
Beispielplanung_Schnitt
>
>