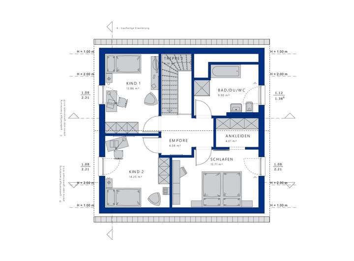
Das Bien-Zenker Haus, das wir Ihnen hier vorstellen, ist mehr als nur ein Ort zum Wohnen - es ist ein Zuhause, das sich ganz nach Ihren persönlichen Wünschen und Vorstellungen gestalten lässt. Das EVOLUTION 143 beeindruckt mit seiner durchdachten Architektur und den vielen Gestaltungsmöglichkeiten, die es seinen zukünftigen Bewohnern bietet. Auf zwei Etagen verteilt, finden Sie im Erdgeschoss eine harmonische Verbindung von Wohnen, Essen, Kochen und Arbeiten. Diese großzügige Offenheit wird im Obergeschoss fortgeführt, wo drei Schlafräume und ein luxuriöses Wellness-Bad als perfekte Rückzugsorte aus dem Alltag dienen. Die intelligente Raumaufteilung sorgt dafür, dass jede Ecke des Hauses optimal genutzt wird.
Die Ausbaustufe "Zur Ausstattung fertig" (ZAF) bietet Ihnen die Freiheit und Flexibilität, selbst Hand anzulegen und Ihrem neuen Heim Ihre persönliche Note zu verleihen. Während Bien-Zenker den Rohbau sowie den technischen Innenausbau übernimmt, haben Sie die Möglichkeit, Böden auszuwählen, Malerarbeiten nach Ihrem Geschmack durchzuführen und die Sanitärinstallationen zu gestalten. Dies nicht nur spart Kosten, sondern lässt Sie aktiv an der Entstehung Ihres Traumhauses teilhaben und gibt Ihnen die Chance, Ihre handwerklichen Fertigkeiten unter Beweis zu stellen.
Wer sich für ein Bien-Zenker Haus entscheidet, wählt einen Partner mit über 115 Jahren Erfahrung im Hausbau. Bien-Zenker steht für Qualität und Innovation im Fertighausbau - jedes Detail wird sorgfältig geplant und umgesetzt. Von der Beratung bis zur Schlüsselübergabe sind Sie in besten Händen. Mit hochwertigen Materialien und einem starken Fokus auf Nachhaltigkeit wird jedes Haus für die Zukunft gerüstet.
Grundrisse und Abbildungen können Extras zeigen. Flächenangaben nach DIN 277.
Bien Zenker baut Ihr Traumhaus
54426 Schönberg
Die vollständige Adresse der Immobilie erhalten Sie vom Anbieter.
Auf Karte anzeigen
Die vollständige Adresse der Immobilie erhalten Sie vom Anbieter.
Finanzierungszertifikat
In nur zwei Minuten zu Ihrem persönlichen Finanzierungszertifkat.
Infos
| Haustyp | Einfamilienhaus |
|---|---|
| Etagenzahl | 2 |
| Wohnfläche ca. | 144 m2 |
| Grundstücksfläche | 647 m2 |
| Zimmer | 6 |
Kosten
| Kaufpreis |
359.000 € |
|---|
Finanzierungsrechner:
Kaufpreis:
600.000 €
Eigenkapital:
600.000 €
Monatliche Rate
0 €
Effektiver Jahreszins
0 %
Sollzinsbindung
10 Jahre
Bausubstanz & Energieausweis
| Baujahr | unbekannt |
|---|---|
| Qualität der Austattung | Gehoben |
Beschreibung des Objekts
Ausstattung
Mit einer Wohnfläche von 144 Quadratmetern auf zwei Etagen bietet dieses traumhafte Haus sechs Zimmer voller Licht und Leben. Im Erdgeschoss schafft der offene Wohnbereich eine herzliche Atmosphäre - ideal für gesellige Abende mit Freunden oder entspannte Stunden mit der Familie. Der fließende Übergang zwischen Küche, Ess- und Wohnbereich ermöglicht eine nahtlose Verbindung der Räume und bildet das Herzstück des Hauses. Im Obergeschoss bieten drei großzügige Schlafzimmer viel Raum für Privatsphäre und Erholung. Das angrenzende Wellness-Bad lädt dazu ein, den Alltag hinter sich zu lassen und Momente purer Entspannung zu genießen.
Besonders hervorzuheben sind die lichtdurchfluteten Räume, die durch große Fensterflächen geschaffen werden - sie sorgen nicht nur für ein wunderbares Wohngefühl, sondern auch für eine natürliche Wärmequelle an sonnigen Tagen. Die mögliche Erweiterung um Terrassen oder Balkone bietet zusätzlichen Raum für individuelle Freizeitgestaltung im Freien. Diese Details tragen nicht nur zur optischen Attraktivität des Hauses bei, sondern erhöhen auch dessen Wertbeständigkeit.
Mit der Ausbaustufe "Zur Ausstattung fertig" (ZAF) erhalten Sie das Beste aus beiden Welten: einen von Experten errichteten Rohbau kombiniert mit der Freiheit, Ihren Innenraum nach eigenen Vorstellungen zu vollenden. Dies bedeutet weniger Stress während des Bauprozesses und gleichzeitig eine beachtliche Kostenersparnis. Es erlaubt Ihnen zudem, einen aktiven Part in der Gestaltung Ihres Zuhauses zu übernehmen - sei es bei der Auswahl edler Bodenbeläge oder kreativer Wandgestaltungen.
Lage
Schönberg bietet seinen Bewohnern eine hervorragende Infrastruktur gepaart mit naturnaher Umgebung. In unmittelbarer Nähe finden Sie alles Notwendige für den täglichen Bedarf: Supermärkte laden zum entspannten Einkauf ein; Schulen verschiedener Bildungsstufen garantieren kurze Wege für Kinder; Arztpraxen sichern die gesundheitliche Versorgung ab.
Für Freizeitaktivitäten stehen Ihnen zahlreiche Optionen zur Verfügung: Ob entspannte Spaziergänge in umliegenden Parks oder sportliche Betätigung in lokalen Vereinen - hier ist für jeden Geschmack etwas dabei. Dank einer guten Anbindung an den öffentlichen Nahverkehr sowie schnellen Autobahnanschlüssen erreichen Sie auch umliegende Städte mühelos.
Diese Lage vereint das Beste aus Stadt- und Landleben: Ruhe und Erholung treffen auf Komfort und Mobilität - ideal für Familien ebenso wie Berufspendler.
Sonstige Angaben
Angebotspreis zuzüglich Grunderwerbs- und Baunebenkosten.
Vorbehaltlich Irrtümer und Zwischenverkauf.
Abbildungen, Fotos und Grundrisse können Extras enthalten.
Bei dem dargestellten Objekt handelt es sich um eine Projektierung, die im Hinblick auf Kubatur, architektonischer Gestaltung und Energieeffizienzklasse an individuelle Anforderungen und Bedürfnisse unserer Bauherren angepasst werden kann.
Bitte geben Sie Ihre vollständigen Daten an
(Name, Vorname, Telefonnummer, E-Mail),
da wir ansonsten Ihre Anfrage nicht bearbeiten können.
Vielen Dank im Voraus!
Adresse
54426 Schönberg
Interessante Orte
Preis- und Lageinformationen
Preistrend für Bestandsimmobilien in Schönberg