Im entstehende Neubaugebiet Loebrauck in Marl Drewer-Süd an
der Langehegge werden Kaufgrundstücke angeboten zu
Kaufpreisen ab 285,00 Euro / m² zzgl. Grundstücksnebenkosten
für
- freist. Einfamilienhäuser (577 - 685 m²)
- Doppelhaushälften (244 - 327 m²)
- Reihenhäuser (196- 306m²)
Die Erschließungsarbeiten haben im Oktober 2024 begonnen
und sind bereits abgeschlossen.
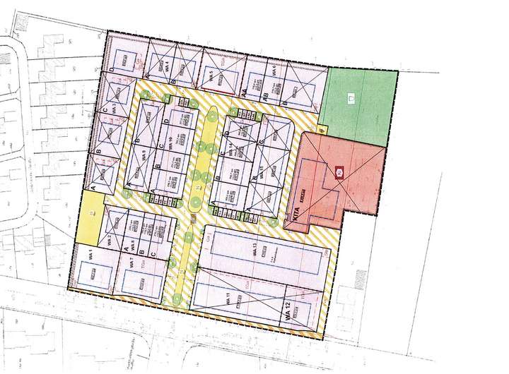
Die Grundstücksgrößen der noch verfügbaren Grundstücke
entnehmen Sie bitte der Anlage.
Haben wir Ihr Interesse geweckt?
Dann freuen wir uns über Ihre Kontaktaufnahme an folgende E-Mailadresse:
vertrieb(at)roemer-marl.de
oder telefonisch unter 0160 / 811 16 55
Wir sind bemüht, alle Anfragen zeitnah zu beantworten.
Mit freundlichem Gruß
Wolf-Christan Angott
Hermann Wübbe Baulanderschließung GmbH
(ein Unternehmen der Römer-Gruppe)
Das Loebrauck - Baugrundstücke für Ihr Eigenheim
45770 Marl
Die vollständige Adresse der Immobilie erhalten Sie vom Anbieter.
Auf Karte anzeigen
Die vollständige Adresse der Immobilie erhalten Sie vom Anbieter.
Finanzierungszertifikat
In nur zwei Minuten zu Ihrem persönlichen Finanzierungszertifkat.
Infos
| Vermarktungsart | Kaufen |
|---|---|
| Grundstücksfläche | 244 m2 |
Kosten
| Miete pro Jahr |
0 € |
|---|---|
| Provision | Nein |
Finanzierungsrechner:
Kaufpreis:
600.000 €
Eigenkapital:
600.000 €
Monatliche Rate
0 €
Effektiver Jahreszins
0 %
Sollzinsbindung
10 Jahre
Beschreibung des Objekts
Lage
Marl liegt im nördlichen Ruhrgebiet im Nordwesten in Nordrhein-
Westfalen und ist eine mittlere kreisangehörige Stadt des Kreises
Recklinghausen im Regierungsbezirk Münster. Marl grenzt an die
Städte Oer-Erkenschwick im Osten, Recklinghausen, Herten und
Gelsenkirchen im Süden, Dorsten im Westen und Haltern am See
im Norden.
Von Marl aus können die benachbarten Städte des Kreises gut
erreicht werden. Im Marler Stadtgebiet verlaufen die
Autobahnen A43 (Münster-Wuppertal) und die A52 (Marl-Essen-
Düsseldorf). Die A43 ist über die Anschlussstelle „Marl-Sinsen“
und die A52 über insgesamt vier Anschlussstellen im Stadtgebiet
zu erreichen.
Die Kreisstadt Recklinghausen, Haltern am See und
Gelsenkirchen sind in ca. 15 Autominuten zu erreichen. Die
Flughäfen Dortmund und Düsseldorf sind in ca. 45 bzw. 60
Autominuten erreichbar.
Über den Bahnhof Marl-Mitte in ca. 1,7 km fußläufiger Entfernung
steht das Netz der Deutschen Bahn AG mit den Hauptrichtungen
Haltern am See/Münster und Essen zur Verfügung.
Mit Blick auf den ÖPNV finden sich die Bushaltestellen direkt am
Baugebiet (Linie 270) mit dem Anschluß nach Marl-Mitte und
Recklinghausen.
Versorgungsbetriebe für den täglichen Bedarf sind in ca. 1 km
Entfernung zum Baugebiet vorhanden.
Kindergärten, Grund- und weiterführende Schulen finden sich
ebenfalls in der näheren Umgebung.
Die unmittelbar umliegenden Alt-Bebauungen sind entlang der
Langehegge 2-3 geschossig vorzufinden.
Die Nutzung des Neubaugebiet ist als reines Wohngebiet
ausgewiesen.