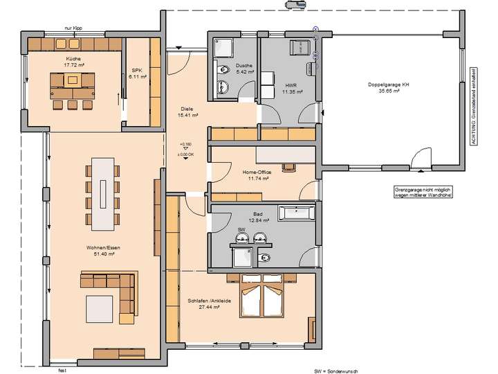
Der klar strukturierte Grundriss ermöglicht großzügiges und offenes Wohnen auf einer Ebene. Wer zur Haustür eintritt, findet sich in einer geräumigen Diele mit großer Garderobenfläche wieder. Linkerhand befindet sich ein Gäste-WC mit Dusche und der Zugang zum Hauswirtschaftsraum. Dahinter ein Home-Office, das auch als Gästezimmer genutzt werden kann. Der eigene Zugang zum Garten bietet einen besonderen Nutzen. Am Ende des Flurs befindet sich das Schlafzimmer. Seine bodentiefen Fenster ermöglichen den freien Blick ins Grüne - direkt aus dem Bett. Das Badezimmer mit Wellness-Ausstattung kann direkt aus dem Schlafzimmer betreten werden.
Der rechte Teil des Bungalows, der rund 75 Quadratmeter umfasst, beherbergt einen großzügigen Wohn-Essbereich mit offener Küche. Ganz im Stil einer modernen Küche berücksichtigt der Entwurf viel Platz für eine große Kochinsel. In der direkt angrenzenden, großen Speisekammer können die Vorräte für gemeinsame kulinarische Abende mit Freunden gelagert werden. Im lichtdurchflutete Wohn- und Essbereich findet das Leben statt: Fernsehen und Musik hören, bei Kaffee oder Tee entspannt ein Buch lesen oder einfach nur den Blick durch die großen Schiebetüren nach Draußen schweifen lassen ...
In den Hausentwurf integriert ist eine praktische Doppelgarage mit großem Sektionaltor. Die Garage ist mit zwei Tageslicht-Fenstern und einer Zugangstür zum Garten ausgestattet. So können in der Garage verstaute Gartengeräte ganz einfach verwendet werden. Als praktisch erweist sich die Verbindungstür von Doppelgarage zum Hauswirtschafsraum, was sich besonders beim Ausladen der Einkäufe als hilfreich erweist.
Dieses Haus wird nach Ihren individuellen Wünschen geplant und ausgestattet!
Schöne Baulücke im Oberdorf mit 1100 m2
01689 Weinböhla
Die vollständige Adresse der Immobilie erhalten Sie vom Anbieter.
Auf Karte anzeigen
Die vollständige Adresse der Immobilie erhalten Sie vom Anbieter.
Finanzierungszertifikat
In nur zwei Minuten zu Ihrem persönlichen Finanzierungszertifkat.
Infos
| Haustyp | Bungalow |
|---|---|
| Wohnfläche ca. | 160 m2 |
| Grundstücksfläche | 1.136 m2 |
| Zimmer | 3 |
| Schlafzimmer | 2 |
| Badezimmer | 1 |
| Anzahl Garage/Stellplatz | 2 |
Kosten
| Kaufpreis |
784.109 € |
|---|---|
| Provision | Nein |
Finanzierungsrechner:
Kaufpreis:
600.000 €
Eigenkapital:
600.000 €
Monatliche Rate
0 €
Effektiver Jahreszins
0 %
Sollzinsbindung
10 Jahre
Bausubstanz & Energieausweis
| Baujahr | 2026 |
|---|---|
| Bauphase | Haus in Planung (projektiert) |
| Objektzustand | Erstbezug |
| Qualität der Austattung | Gehoben |
| Heizungsart | Wärmepumpe |
| Wesentliche Energieträger | Strom |
| Energieausweis | liegt vor |
| Energieausweistyp | Bedarfsausweis |
| Energieverbrauchskennwert | 21,6 kWh/(m²*a) |
| Energieeffizienzklasse | A+ |
21,6
kWh/(m²*a)
Energieeffizienzklasse A+
- A+
- A
- B
- C
- D
- E
- F
- G
- H
- 0
- 25
- 50
- 75
- 100
- 125
- 150
- 175
- 200
- 225
- >250
Beschreibung des Objekts
Ausstattung
3 Zimmer, offene Küche, Diele, Bad, Dusche, Hauswirtschaftsraum, Speisekammer, Doppelgarage
Das gezeigte Traumhaus im Überblick:
+ Schlüsselfertiges Massivhaus im Sinne der Ausstattungsbeschreibung "Edition 25"
+ Zukunftsorientierte Energieausstattung in Form einer Luft-Wasser-Wärmepumpe und Fußbodenheizung sowie einer kontrollierten Wohnraumlüftung mit Wärmerückgewinnung
+ Inklusive Bodenplatte
Beste Markenausstattung in jedem Kern-Haus:
+ Hochwertiger Kunstharz-Außenputz für eine langlebige Fassade
+ Vollständige Badausstattung von Villeroy & Boch mit Badewanne und flacher Duschwanne sowie einer Echtglasduschkabine
+ Fliesen von Villeroy & Boch in Bad und WC
+ Haustür mit 5-fach-Sicherheitsverriegelung
+ Erstklassige Innentüren der Marke Herholz
+ Fenster mit 3-Scheiben-Wärmeschutzverglasung und Rollläden
+ Vollständige und überdurchschnittliche Elektroausstattung inklusive Klingelanlage und Netzwerkdosen
+ Rauchmelder für Ihre Sicherheit
+ Alle Leistungen aus einer Hand
+ Alle Planungs- und Architektenleistungen
+ Einsatz regionaler Handwerksbetriebe
+ Baubegleitende 5-Phasen-TÜV-Prüfung und Blower-Door-Test
+ Individuelle Anpassung auf Ihre Bedürfnisse
+ Auf Wunsch mit Keller erhältlich
+ Auf Wunsch mit weiteren Energietechniken erhältlich
Lage
Das Grundstück befindet sich mitten im schönen Weinböhla und
genießt durch die Nähe zur ansässigen Schnellstraße eine
verkehrsgünstige Lage. So ist die innere Altstadt der sächsischen
Landeshauptstadt in ca. 20 Autominuten erreichbar.
Einkaufsmöglichkeit wie z.B. Supermarkt befinden sich in
unmittelbarer Nähe.
Die nächste Apotheke, sowie verschiedene Arztpraxen, Schulen
und Kindertagesstätten lassen sich mit dem Auto schnell
erreichen.
Sonstige Angaben
Kern-Haus
Kern-Haus baut individuelle und massive Architektenhäuser zu einem attraktiven Preis-Leistungs-Verhältnis – und das bereits mit einer Erfahrung seit 1980. Bei Kern-Haus erhalten Sie unter anderem 10 Jahre Gewährleistung auf die wesentlichen Bauleistungen, bis zu 24 Monate Preissicherheit sowie eine dokumentierte 5-Phasen-TÜV-Prüfung während der Bauphase. Jedes Kern-Haus als Effizienzhaus 40 ist bereits QNG-zertifiziert durch die Deutsche Gesellschaft für nachhaltiges Bauen (DGNB).
40 Jahre Expertise für das massive, energieeffiziente Bauen: Kern-Haus realisiert Massivhäuser in Ziegel, Bims, Porenbeton oder Stahlbeton (DuoTherm).
Kern-Haus setzt auf eine hohe Bauqualität der Handwerker und auf eine große Auswahl starker Marken. So verwendet Kern-Haus beim Bau Ihres Hauses nur hochwertige Markenprodukte renommierter Hersteller – wie etwa Produkte von Villeroy & Boch.
Preise und Auszeichnungen von Kern-Haus:
- German Brand Award in den Jahren 2018 und 2021
- Hausbau Design Award: Sieger in den Jahren 2017, 2018, 2019, 2020, 2021, 2022 und 2023
- Deutscher Traumhauspreis: Sieger in den Jahren 2014, 2015, 2016 und 2018 und Silber 2017, 2020 und 2021
- Mittelstandspreis "Top 100" in den Jahren 2014, 2016, 2018, 2020 und 2022
- German Design Award im Jahr 2018
Weitere Informationen
Der gezeigte Preis versteht sich inklusive Grundstück und exklusive der Baunebenkosten.
Ihre Ansprechpartnerin Nicole Ulbricht vom Kern-Haus-Team in Dresden freut sich darauf Ihre Fragen zu beantworten. Jetzt anrufen: 0351 / 8391319
Grundriss
Grundriss Erdgeschoss
>
>
Adresse
01689 Weinböhla
Interessante Orte
Preis- und Lageinformationen
Preistrend für Bestandsimmobilien in Weinböhla