Ehemaliger Dorfkrug von Rethwisch mit reichlich Potenzial...z.B. für die große Familie! Wandeln Sie die ehemalige gewerbliche Nutzfläche über eine Nutzungsänderung in Wohnfläche um und schaffen sich somit mehr als 180 m² Wohn- und Nutzfläche.
Dieses schön gelegene Wohn- und Geschäftshaus im Herzen von Rethwisch bietet reichlich Potenzial für eine individuelle Gestaltung. Das Haus wurde 1978 in massiver Bauweise erbaut. Im Jahr 1982 wurde das Haus durch einen Anbau um weitere 31,63 m² Nutzfläche erweitert. Das Haus hat 115,78 m² Wohnfläche und 69,88 m² Nutzfläche, verteilt auf Erdgeschoss und Dachgeschoss. Das 752 m² große Grundstück bietet reichlich Fläche für Gestaltungsmöglichkeiten. Das Haus liegt neben dem schönen Spielplatz von Rethwisch. Hier kommen Kinder voll auf ihre Kosten. Ein großer Rodelberg, Fußball- und Basketballplatz sowie weitere Spielgeräte befinden sich auf dem Spielplatz.
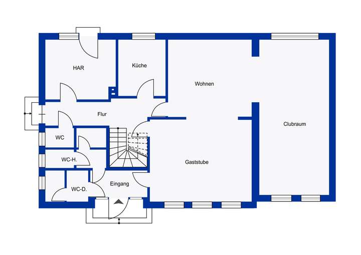
Der Innenbereich im Erdgeschoss:
Von dem Hauseingang zum ehemaligen Gewerbe gelangt man in den Gastraum, Clubraum und zu den Herren- und Damen-WC's. Das ehemalige Wohnzimmer befindet sich ebenfalls im Erdgeschoss. Von dort gelangt man über den Flur zur Küche, zum Heizungsraum und zum Gäste-WC. Vom Heizungsraum gelangt man über die Terrasse in den Garten.
Der Innenbereich im Dachgeschoss:
Im Dachgeschoss befinden sich 3 Kinderzimmer und 1 Schlafzimmer. Weiterhin befinden sich ein Badezimmer mit Dusche und Badewanne sowie ein Abstellraum im Dachgeschoss. Vom Dachgeschoss gelangt man über eine Treppe zum Spitzboden. Dort befinden sich 2 beheizte Hobbyräume.
Der Außenbereich:
Eine Garage und ein Schuppen bieten reichlich Platz für Abstellmöglichkeiten. Vor dem Haus befindet sich eine Gartenfläche und 4 PKW Stellplätze. Hinter dem Haus befindet sich eine Terrasse und eine Rasenfläche. Hier können Gartenliebhaber sich frei entfalten.
Das Haus ist in einem renovierungs- bzw. sanierungsbedürftigen Zustand.
RESERVIERT! Wohn- und Geschäftshaus mit Potenzial im Herzen von Rethwisch
25566 Rethwisch
Die vollständige Adresse der Immobilie erhalten Sie vom Anbieter.
Auf Karte anzeigen
Die vollständige Adresse der Immobilie erhalten Sie vom Anbieter.
Finanzierungszertifikat
In nur zwei Minuten zu Ihrem persönlichen Finanzierungszertifkat.
Infos
| Haustyp | Sonstige |
|---|---|
| Wohnfläche ca. | 115 m2 |
| Nutzfläche | 69,88 m2 |
| Grundstücksfläche | 752 m2 |
| Zimmer | 4,5 |
| Garage/Stellplatz | Außenstellplatz |
| Anzahl Garage/Stellplatz | 5 |
Kosten
| Kaufpreis |
235.000 € |
|---|---|
| Provision |
3,57 inkl. MwSt. |
Finanzierungsrechner:
Kaufpreis:
600.000 €
Eigenkapital:
600.000 €
Monatliche Rate
0 €
Effektiver Jahreszins
0 %
Sollzinsbindung
10 Jahre
Bausubstanz & Energieausweis
| Baujahr | 1978 |
|---|---|
| Objektzustand | Renovierungsbedürftig |
| Qualität der Austattung | Einfach |
| Heizungsart | Öl-Heizung |
| Wesentliche Energieträger | Öl |
| Energieausweis | liegt vor |
| Energieausweistyp | Bedarfsausweis |
| Energieverbrauchskennwert | 191,1 kWh/(m²*a) |
| Energieeffizienzklasse | F |
191,1
kWh/(m²*a)
Energieeffizienzklasse F
- A+
- A
- B
- C
- D
- E
- F
- G
- H
- 0
- 25
- 50
- 75
- 100
- 125
- 150
- 175
- 200
- 225
- >250
Beschreibung des Objekts
Ausstattung
- Außenrollos im Dachgeschoss
- Badezimmer mit Dusche und Badewanne
- Gäste-WC
- Terrasse
- 4 PKW-Stellplätze
- großer Garten
- Garage
- Schuppen
Lage
Diese Immobilie befindet sich im Herzen von Rethwisch. Rethwisch hat etwa 600 Einwohner und befindet sich im Kreis Steinburg ca. 10 Kilometer südlich von der Stadt Itzehoe entfernt. Die Autobahnanbindung A23 Richtung Hamburg/Heide ist in wenigen Minuten erreicht. Eine Busverbindung (HVV-Anbindung) Richtung Itzehoe oder Elmshorn ist im Ort vorhanden. In Rethwisch befindet sich eine Feuerwehr und eine Jugendfeuerwehr, Fußballplatz, Sportverein sowie eine Grundschule und Kindergarten mit einer Krippe. Weiterhin befindet sich ein großer Spielplatz mit einem Rodelberg im Ort. Im Nachbarort Lägerdorf gibt es Einkaufsmöglichkeiten, Ärzte, Apotheke, Tankstelle, Bäcker.
Sonstige Angaben
Bitte geben Sie bei Ihrer Anfrage Ihre Kontaktdaten (Name, Anschrift, Telefonnummer und E-Mail) an. So können wir Ihr Anliegen schnellstens bearbeiten. Ihre Daten benötigen wir auch als Nachweis für den Auftraggeber. Bitte beachten Sie, dass nur ein vollständig ausgefülltes Kontaktformular von uns bearbeitet werden kann. Selbstverständlich werden Ihre Daten vertraulich behandelt und nicht an Dritte weitergeleitet.
Alle Information haben wir nach den uns vorliegenden Unterlagen und nach besten Gewissen aufgearbeitet. Sämtliche Maße sind vor Ort zu prüfen. Wir übernehmen keine Haftung für die Richtigkeit
Käuferprovision 3,57% inkl., gesetzlicher MwSt. verdient und fällig bei notarieller Beurkundung. Gemäß provisionspflichtigen Maklervertrag mit dem Verkäufer zahlt der Verkäufer in gleicher Höhe (3,57%) eine Maklerprovision an uns.
Grundriss
Grundriss EG
>
>
Grundriss DG
>
>
Adresse
25566 Rethwisch
Interessante Orte
Preis- und Lageinformationen
Preistrend für Bestandsimmobilien in Rethwisch