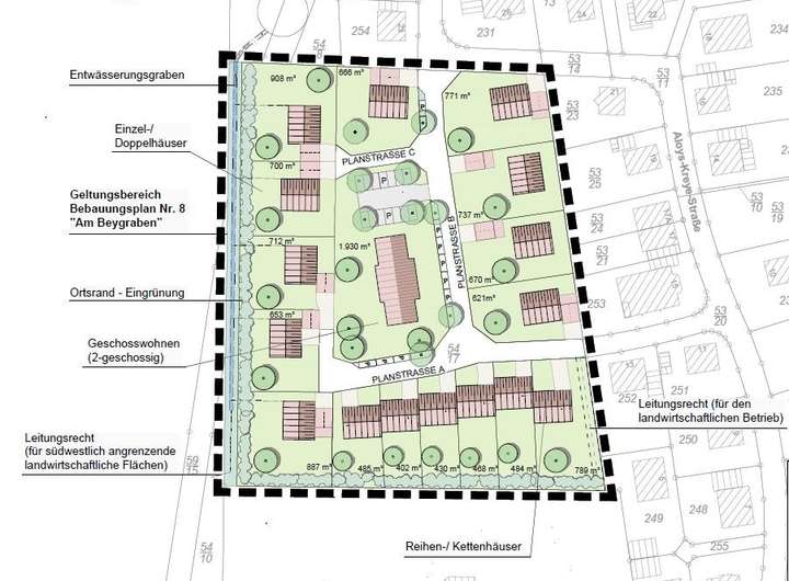
Im idyllisch gelegenen Ortsteil Hönnersum der Gemeinde Harsum entsteht mit dem Baugebiet „Am Beygraben“ ein neues, attraktives Wohnquartier für Familien, Paare und Ruhesuchende. Das Baugebiet verbindet modernen Wohnkomfort mit ländlicher Ruhe und liegt am westlichen Ortsrand – umgeben von Grünflächen und durchdacht strukturiert für verschiedenste Wohnformen.
Das Quartier umfasst eine Vielzahl unterschiedlich großer Baugrundstücke – das hier angebotene Grundstück steht zur Bebauung mit Reihenhäusern zur Verfügung.
Wohnen am Beygraben – Ihr neues Zuhause
31177 Harsum
Die vollständige Adresse der Immobilie erhalten Sie vom Anbieter.
Auf Karte anzeigen
Die vollständige Adresse der Immobilie erhalten Sie vom Anbieter.
Finanzierungszertifikat
In nur zwei Minuten zu Ihrem persönlichen Finanzierungszertifkat.
Infos
| Vermarktungsart | Kaufen |
|---|---|
| Grundstücksfläche | 3.059 m2 |
| Erschließung | Erschlossen |
| Bebaubar nach | Bebauungsplan |
Kosten
| Miete pro Jahr |
817.230 € |
|---|---|
| Provision |
2,38 % inkl. ges. MwSt. |
Finanzierungsrechner:
Kaufpreis:
600.000 €
Eigenkapital:
600.000 €
Monatliche Rate
0 €
Effektiver Jahreszins
0 %
Sollzinsbindung
10 Jahre
Beschreibung des Objekts
Lage
Hönnersum ist ein charmanter Ortsteil der Gemeinde Harsum im Landkreis Hildesheim, gelegen inmitten der sanften Hügellandschaft Südostniedersachsens. Mit seiner ländlichen Prägung und gleichzeitig günstigen Lage zur Stadt Hildesheim (ca. 10 Minuten Fahrzeit) vereint Hönnersum ruhiges Wohnen im Grünen mit den Vorteilen einer hervorragenden Anbindung.
Die nächstgelegenen Städte – Hildesheim und Hannover – sind sowohl über die Bundesstraße B6 als auch die Autobahn A7 schnell erreichbar. Der Bahnhof Harsum bietet zusätzlich eine bequeme Bahnverbindung in Richtung Hildesheim und Hannover.
Im Ort selbst finden sich gepflegte Wohngebiete, eine gute Dorfgemeinschaft und naturnahe Freizeitmöglichkeiten. Hönnersum verfügt über einen Kindergarten, während weiterführende Schulen, Einkaufsmöglichkeiten, medizinische Versorgung und kulturelle Angebote in Harsum oder Hildesheim bereitstehen.
Die Umgebung ist geprägt von Feldern, kleinen Wäldern und Spazierwegen – ideal für Familien, Naturliebhaber und Ruhesuchende. Gleichzeitig sorgt die Nähe zu bedeutenden Wirtschaftsstandorten für gute Perspektiven für Berufspendler.
Sonstige Angaben
Vielen Dank für Ihr Interesse an unserem Immobilienangebot.
Wir stehen jederzeit für Fragen rund um die Immobilie zur Verfügung und vereinbaren gern einen unverbindlichen Besichtigungstermin mit Ihnen.
Darüber hinaus beraten wir Sie gern über unsere günstigen Finanzierungsmöglichkeiten, umfassenden Vorsorgepakete sowie unseren Mietservice.
Wir freuen uns auf Ihre Kontaktaufnahme!
VERBRAUCHERINFO
1. Maklerleistung ist der Nachweis der Gelegenheit zum Abschluss eines Vertrages bzw. Vermittlung eines Vertrages über eine Immobilie gegen die Courtagezahlungspflicht des Kunden
2. Unternehmer, Anschrift, Beschwerdeadressat
LBSi NordWest, Himmelreichallee 40, 48149 Münster, Tel:0251/973233-997, eMail:info@lbsi-nw.de
GF:Martin Englert, Volker Goldbeck
3. Es besteht ein Widerrufsrecht
4. Weitere Infos: verbraucherinfo.lbsi-nordwest.de
Weitere Dokumente
Bebauungsentwurf Hönnersum -BKarte BG Hönnersum mit Fläch
Preisliste
B-Plan Nr 8 Am Beygraben
B-Plan Nr 8 Am Beygraben Begr�
Koordinierter Leitungsplan
Lageplan Straßenbau mit Lampen
Lageplan Trinkwasser
Lageplan Entwässerung
BodenschutzBeimBauenPrivaterHa
Baugrundgutachten_Geotechnisch
Sanierungsbericht
Lageplan Baufeld-Randhöhen
Orientierende Untersuchung der