Sie suchen ein Baugrundstück im Dresdner Umland?
Dann laden wir Sie herzlich zu unserer Informationsveranstaltung im Kern-Haus Dresden ein:
Datum: Mittwoch, 12. November 2025
Uhrzeit: 16:00 Uhr bi 18:00 Uhr
Ort: Kern-Haus Dresden, Am Sandberg 2 in 01468 Friedewald
Lernen Sie ausgewählte Grundstücke in attraktiven Lagen kennen und nutzen Sie die Gelegenheit, direkt mit unseren Experten ins Gespräch zu kommen.
Die Teilnahme ist kostenlos, Anmeldung erforderlich: nicole.ulbricht@kern-haus.de oder 0351 839 13 19
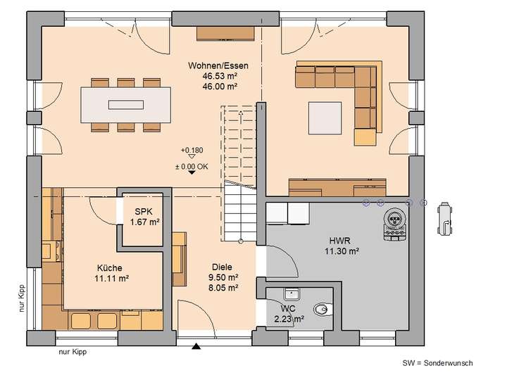
Willkommen im persönlichen Wohntraum! Das Familienhaus Melia verspricht offenes Wohnen mit viel Platz für jedes Familienmitglied.
Das Erdgeschoss gestaltet sich sehr einladend, denn die Diele geht direkt in den großzügigen Wohnbereich über. Auf über 55 m² sind hier eine Couchecke, ein Essplatz und eine Küche perfekt angeordnet. Die Küche wird von einer kleinen Speisekammer ergänzt.
Auf der Etage befindet sich ebenfalls der Hauswirtschaftsraum und ein Gäste-WC.
Über eine gerade Treppe gelangen Sie in den großen Flur im Dachgeschoss. Durch die Flachdachgaube ist hier Platz für eine gemütliche Sitzecke vor dem Fenster. Hier befinden sich ebenfalls zwei gleichgroße Kinderzimmer und ein Familienbad. Abgerundet wird diese Etage durch ein Elternschlafzimmer mit Ankleide.
Dieses Haus wird nach Ihren individuellen Wünschen geplant und ausgestattet!
1100 m2 mit Süd-West Ausrichtung und freiem Blick
01662 Meißen
Die vollständige Adresse der Immobilie erhalten Sie vom Anbieter.
Auf Karte anzeigen
Die vollständige Adresse der Immobilie erhalten Sie vom Anbieter.
Finanzierungszertifikat
In nur zwei Minuten zu Ihrem persönlichen Finanzierungszertifkat.
Infos
| Haustyp | Einfamilienhaus |
|---|---|
| Wohnfläche ca. | 154 m2 |
| Grundstücksfläche | 1.100 m2 |
| Zimmer | 4 |
| Schlafzimmer | 3 |
| Badezimmer | 1 |
| Anzahl Garage/Stellplatz | 2 |
Kosten
| Kaufpreis |
605.900 € |
|---|---|
| Provision | Nein |
Finanzierungsrechner:
Kaufpreis:
600.000 €
Eigenkapital:
600.000 €
Monatliche Rate
0 €
Effektiver Jahreszins
0 %
Sollzinsbindung
10 Jahre
Bausubstanz & Energieausweis
| Baujahr | 2026 |
|---|---|
| Bauphase | Haus in Planung (projektiert) |
| Objektzustand | Erstbezug |
| Qualität der Austattung | Gehoben |
| Heizungsart | Wärmepumpe |
| Wesentliche Energieträger | Strom |
| Energieausweis | liegt vor |
| Energieausweistyp | Bedarfsausweis |
| Energieverbrauchskennwert | 20,7 kWh/(m²*a) |
| Energieeffizienzklasse | A+ |
20,7
kWh/(m²*a)
Energieeffizienzklasse A+
- A+
- A
- B
- C
- D
- E
- F
- G
- H
- 0
- 25
- 50
- 75
- 100
- 125
- 150
- 175
- 200
- 225
- >250
Beschreibung des Objekts
Ausstattung
4 Zimmer, offene Küche, Diele, Gäste-WC, Speisekammer, Bad, Flur, Ankleide, Hauswirtschaftsraum
Das gezeigte Traumhaus im Überblick:
+ Schlüsselfertiges Massivhaus im Sinne der Ausstattungsbeschreibung "Edition 25"
+ Zukunftsorientierte Energieausstattung in Form einer Luft-Wasser-Wärmepumpe und Fußbodenheizung sowie einer kontrollierten Wohnraumlüftung mit Wärmerückgewinnung
+ Inklusive Bodenplatte
Beste Markenausstattung in jedem Kern-Haus:
+ Zimmermannsmäßiger Dachstuhl aus Konstruktionsvollholz
+ Dacheindeckung mit Betondachsteinen von Braas
+ Hochwertiger Kunstharz-Außenputz für eine langlebige Fassade
+ Vollständige Badausstattung von Villeroy & Boch mit Badewanne und flacher Duschwanne sowie einer Echtglasduschkabine
+ Fliesen von Villeroy & Boch in Bad und WC
+ Haustür mit 5-fach-Sicherheitsverriegelung
+ Erstklassige Innentüren der Marke Herholz
+ Fenster mit 3-Scheiben-Wärmeschutzverglasung und Rollläden
+ Stahl-Holz-Treppe mit individueller Farbgestaltungsmöglichkeit
+ Vollständige und überdurchschnittliche Elektroausstattung inklusive Klingelanlage und Netzwerkdosen
+ Rauchmelder für Ihre Sicherheit
+ Alle Leistungen aus einer Hand
+ Alle Planungs- und Architektenleistungen
+ Einsatz regionaler Handwerksbetriebe
+ Baubegleitende 5-Phasen-TÜV-Prüfung und Blower-Door-Test
+ Individuelle Anpassung auf Ihre Bedürfnisse
+ Auf Wunsch mit Keller erhältlich
+ Auf Wunsch mit weiteren Energietechniken erhältlich
Lage
In der gefragten Meißner Gemarkung Bohnitzsch steht ein attraktives Baugrundstück mit einer Größe von ca. 1.100 m² zum Verkauf. Das Grundstück überzeugt durch seine sonnige Süd-West-Ausrichtung und den freien Blick über angrenzende Felder, was eine besonders ruhige und naturnahe Wohnatmosphäre schafft. Trotz der idyllischen Lage profitieren künftige Eigentümer von einer sehr guten Anbindung an die Stadt Meißen und das Umland, wodurch Einkaufsmöglichkeiten, Schulen und Kindergärten schnell erreichbar sind.
Die Bebaubarkeit ermöglicht ein bis zwei Vollgeschosse und eröffnet damit flexible Gestaltungsmöglichkeiten für ein Einfamilienhaus oder auch eine Doppelhauslösung. Alle relevanten Medien wie Strom, Wasser, Abwasser, Gas und Telekommunikation liegen bereits am Grundstück an, sodass einer zeitnahen Bebauung nichts im Wege steht.
Das Grundstück bietet ideale Voraussetzungen für Wohnen im Grünen mit gleichzeitig guter Stadtnähe. Besonders die Kombination aus großzügiger Grundstücksfläche, sonnigem Garten mit Süd-West-Ausrichtung und unverbaubarem Feldblick macht dieses Angebot zu einer seltenen Gelegenheit in Meißen-Bohnitzsch.
Sonstige Angaben
Kern-Haus
Kern-Haus baut individuelle und massive Architektenhäuser zu einem attraktiven Preis-Leistungs-Verhältnis – und das bereits mit einer Erfahrung seit 1980. Bei Kern-Haus erhalten Sie unter anderem 10 Jahre Gewährleistung auf die wesentlichen Bauleistungen, bis zu 24 Monate Preissicherheit sowie eine dokumentierte 5-Phasen-TÜV-Prüfung während der Bauphase. Jedes Kern-Haus als Effizienzhaus 40 ist bereits QNG-zertifiziert durch die Deutsche Gesellschaft für nachhaltiges Bauen (DGNB).
40 Jahre Expertise für das massive, energieeffiziente Bauen: Kern-Haus realisiert Massivhäuser in Ziegel, Bims, Porenbeton oder Stahlbeton (DuoTherm).
Kern-Haus setzt auf eine hohe Bauqualität der Handwerker und auf eine große Auswahl starker Marken. So verwendet Kern-Haus beim Bau Ihres Hauses nur hochwertige Markenprodukte renommierter Hersteller – wie etwa Produkte von Villeroy & Boch.
Preise und Auszeichnungen von Kern-Haus:
- German Brand Award in den Jahren 2018 und 2021
- Hausbau Design Award: Sieger in den Jahren 2017, 2018, 2019, 2020, 2021, 2022 und 2023
- Deutscher Traumhauspreis: Sieger in den Jahren 2014, 2015, 2016 und 2018 und Silber 2017, 2020 und 2021
- Mittelstandspreis "Top 100" in den Jahren 2014, 2016, 2018, 2020 und 2022
- German Design Award im Jahr 2018
Weitere Informationen
Der gezeigte Preis versteht sich inklusive Grundstück und exklusive der Baunebenkosten.
Ihre Ansprechpartnerin Nicole Ulbricht vom Kern-Haus-Team in Dresden freut sich darauf Ihre Fragen zu beantworten. Jetzt anrufen: 0351 / 8391319
Grundriss
Grundriss Erdgeschoss
>
>
Grundriss Dachgeschoss
>
>
Adresse
01662 Meißen
Interessante Orte
Preis- und Lageinformationen
Preistrend für Bestandsimmobilien in Meißen