Der lichtdurchflutete Wohntraum 'Signus' lässt keine Wünsche offen. Auf zwei Vollgeschossen findet die ganze Familie Platz, um sich zu entspannen und frei zu entfalten. Die bodentiefen Fensterelemente machen das Haus zu einem Wohnerlebnis und zeigen die Großzügigkeit dieser zeitlosen Stadtvilla.
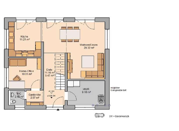
Gleich im Eingangsbereich zeigt die Stadtvilla Signus durch ihre Offenheit was sie zu bieten hat. Eine große Garderobe verstaut die Jacken und Mäntel der Bewohner sowie Besucher. Über einen langen Flur, vorbei an der geradläufigen Treppe, gelangen Sie in den Wohn-/Essbereich des Hauses, an den auch die offene Küche Anschluss findet. Von hier bieten die bodentiefen Fenster einen herrlichen Blick in den Garten. Des Weiteren befindet sich im Erdgeschoss ein Home-Office, das auch als Gäste-Zimmer genutzt werden kann, als auch ein Hauswirtschaftsraum und ein Gäste-WC.
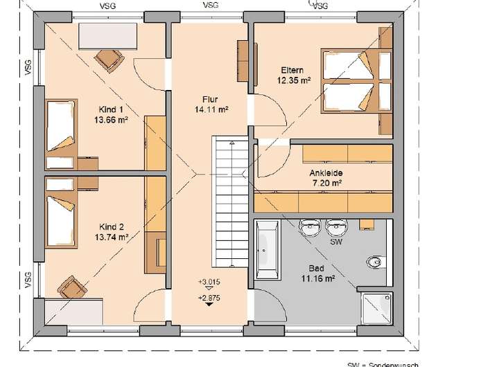
Im Obergeschoss steht das Wohlbefinden jedes einzelnen Familienmitglieds im Vordergrund. Die Räume der Kinder sind großzügig gestaltet und sind ein angenehmer Rückzugsort. Das Elternschlafzimmer verfügt über ein angrenzendes Ankleidezimmer. Im Wellness-Bad kann die ganze Familie nach Herzenslust die Seele baumeln lassen.
Dieses Haus wird nach Ihren individuellen Wünschen geplant und ausgestattet!
500m2 - Erholung direkt vor der Haustür
01458 Ottendorf-Okrilla
Die vollständige Adresse der Immobilie erhalten Sie vom Anbieter.
Auf Karte anzeigen
Die vollständige Adresse der Immobilie erhalten Sie vom Anbieter.
Finanzierungszertifikat
In nur zwei Minuten zu Ihrem persönlichen Finanzierungszertifkat.
Infos
| Haustyp | Einfamilienhaus |
|---|---|
| Wohnfläche ca. | 147 m2 |
| Grundstücksfläche | 482 m2 |
| Zimmer | 5 |
| Schlafzimmer | 4 |
| Badezimmer | 1 |
| Anzahl Garage/Stellplatz | 2 |
Kosten
| Kaufpreis |
525.760 € |
|---|---|
| Provision | Nein |
Finanzierungsrechner:
Kaufpreis:
600.000 €
Eigenkapital:
600.000 €
Monatliche Rate
0 €
Effektiver Jahreszins
0 %
Sollzinsbindung
10 Jahre
Bausubstanz & Energieausweis
| Baujahr | 2026 |
|---|---|
| Bauphase | Haus in Planung (projektiert) |
| Objektzustand | Erstbezug |
| Qualität der Austattung | Gehoben |
| Heizungsart | Wärmepumpe |
| Wesentliche Energieträger | Strom |
| Energieausweis | liegt vor |
| Energieausweistyp | Bedarfsausweis |
| Energieverbrauchskennwert | 18,8 kWh/(m²*a) |
| Energieeffizienzklasse | A+ |
18,8
kWh/(m²*a)
Energieeffizienzklasse A+
- A+
- A
- B
- C
- D
- E
- F
- G
- H
- 0
- 25
- 50
- 75
- 100
- 125
- 150
- 175
- 200
- 225
- >250
Beschreibung des Objekts
Ausstattung
5 Zimmer, Küche, Diele, WC, Flur, Bad, Ankleide, Hauswirtschaftsraum, Garderobe
Das gezeigte Traumhaus im Überblick:
+ Schlüsselfertiges Massivhaus im Sinne der Ausstattungsbeschreibung "Edition 25"
+ Zukunftsorientierte Energieausstattung in Form einer Luft-Wasser-Wärmepumpe und Fußbodenheizung sowie einer kontrollierten Wohnraumlüftung mit Wärmerückgewinnung
+ Inklusive Bodenplatte
Beste Markenausstattung in jedem Kern-Haus:
+ Zimmermannsmäßiger Dachstuhl aus Konstruktionsvollholz
+ Dacheindeckung mit Betondachsteinen von Braas
+ Hochwertiger Kunstharz-Außenputz für eine langlebige Fassade
+ Vollständige Badausstattung von Villeroy & Boch mit Badewanne und flacher Duschwanne sowie einer Echtglasduschkabine
+ Fliesen von Villeroy & Boch in Bad und WC
+ Haustür mit 5-fach-Sicherheitsverriegelung
+ Erstklassige Innentüren der Marke Herholz
+ Fenster mit 3-Scheiben-Wärmeschutzverglasung und Rollläden
+ Stahl-Holz-Treppe mit individueller Farbgestaltungsmöglichkeit
+ Vollständige und überdurchschnittliche Elektroausstattung inklusive Klingelanlage und Netzwerkdosen
+ Rauchmelder für Ihre Sicherheit
+ Alle Leistungen aus einer Hand
+ Alle Planungs- und Architektenleistungen
+ Einsatz regionaler Handwerksbetriebe
+ Baubegleitende 5-Phasen-TÜV-Prüfung und Blower-Door-Test
+ Individuelle Anpassung auf Ihre Bedürfnisse
+ Auf Wunsch mit Keller erhältlich
+ Auf Wunsch mit weiteren Energietechniken erhältlich
Lage
Medingen ist besonders für seine hohe Lebensqualität bekannt. Hier wohnen Sie ruhig und naturnah, und dennoch gut angebunden. Die Nähe zur Landeshauptstadt Dresden sowie zur charmanten Stadt Radebeul macht Medingen zu einem beliebten Wohnort für Pendler und Familien. Schulen, Einkaufsmöglichkeiten und alle wichtigen Einrichtungen des täglichen Bedarfs sind gut erreichbar. Die Umgebung lädt zu Spaziergängen und Outdoor-Aktivitäten ein, und das Landschaftsschutzgebiet bietet Erholung direkt vor der Haustür. Eine Bushaltestelle mit 2 Buslinien ist ebenfalls in der Nähe des Wohngebiets zu finden, die Verbindungen nach Dresden Weixdorf und Klotzsche sowie nach Radeburg, Radeberg und Ottendorf-Okrilla bietet. Zusätzlich gibt es eine Nachtlinie, die Sie abends und nachts von Klotzsche nach Hause bringt.
Sonstige Angaben
Kern-Haus
Kern-Haus baut individuelle und massive Architektenhäuser zu einem attraktiven Preis-Leistungs-Verhältnis – und das bereits mit einer Erfahrung seit 1980. Bei Kern-Haus erhalten Sie unter anderem 10 Jahre Gewährleistung auf die wesentlichen Bauleistungen, bis zu 24 Monate Preissicherheit sowie eine dokumentierte 5-Phasen-TÜV-Prüfung während der Bauphase. Jedes Kern-Haus als Effizienzhaus 40 ist bereits QNG-zertifiziert durch die Deutsche Gesellschaft für nachhaltiges Bauen (DGNB).
40 Jahre Expertise für das massive, energieeffiziente Bauen: Kern-Haus realisiert Massivhäuser in Ziegel, Bims, Porenbeton oder Stahlbeton (DuoTherm).
Kern-Haus setzt auf eine hohe Bauqualität der Handwerker und auf eine große Auswahl starker Marken. So verwendet Kern-Haus beim Bau Ihres Hauses nur hochwertige Markenprodukte renommierter Hersteller – wie etwa Produkte von Villeroy & Boch.
Preise und Auszeichnungen von Kern-Haus:
- German Brand Award in den Jahren 2018 und 2021
- Hausbau Design Award: Sieger in den Jahren 2017, 2018, 2019, 2020, 2021, 2022 und 2023
- Deutscher Traumhauspreis: Sieger in den Jahren 2014, 2015, 2016 und 2018 und Silber 2017, 2020 und 2021
- Mittelstandspreis "Top 100" in den Jahren 2014, 2016, 2018, 2020 und 2022
- German Design Award im Jahr 2018
Weitere Informationen
Der gezeigte Preis versteht sich inklusive Grundstück und exklusive der Baunebenkosten.
Ihre Ansprechpartnerin Nicole Ulbricht vom Kern-Haus-Team in Dresden freut sich darauf Ihre Fragen zu beantworten. Jetzt anrufen: 0351 / 8391319
Grundriss
Grundriss Erdgeschoss
>
>
Grundriss Obergeschoss
>
>
Adresse
01458 Ottendorf-Okrilla
Interessante Orte
Preis- und Lageinformationen
Preistrend für Bestandsimmobilien in Ottendorf-Okrilla