Dieses attraktive Baugrundstück in ruhiger und begehrter Lage bei Altdorf bietet auf ca. 690 m² ideale Voraussetzungen für die Verwirklichung Ihres individuellen Bauvorhabens. Ob Einfamilienhaus oder Doppelhaushälfte – hier lassen sich Wohnträume in einer naturnahen Umgebung mit gleichzeitig hervorragender Anbindung realisieren.
Das Grundstück liegt in einem Dorfgebiet, eine Ortsabrundungssatzung ist vorhanden. Im Grundbuch sind keine Lasten, Beschränkungen oder Erbbaurechte eingetragen. Das Grundstück ist teilerschlossen und unterliegt keinem Bauzwang – Sie entscheiden also selbst, wann und wie Sie Ihr Projekt umsetzen möchten.
Das Grundstück steht ab sofort für den Käufer zur Verfügung und kann kurzfristig bebaut werden.
Optionales Hauskonzept:
Auf Wunsch können wir Ihnen auf diesem Grundstück bereits zwei moderne Doppelhaushälften mit jeweils ca. 127 m² Wohnfläche anbieten. Diese werden in hochwertiger Bauweise mit moderner Technik und gehobener Ausstattung realisiert – inklusive Wärmepumpe, Echtholztreppe, 3-fach isolierten Fenstern, Wohnraumbelüftung mit Wärmerückgewinnung und vielen weiteren Ausstattungshighlights.
Ein Grundstück mit Zukunft – perfekt für Bauherren, die Freiraum, Lage und Qualität verbinden möchten.
Wir freuen uns, Ihnen dieses attraktive Baugrundstück sowie die passenden Hauskonzepte in einem persönlichen Gespräch näher vorstellen zu dürfen.
Ausstattung:
- sofort verfügbar
- Grundstücksfläche: 690 m²
- teilerschlossen
* Optional mit Doppelhaushälfte mit folgender Ausstattung:
ab 350.000 € * je nach Ausstattung inkl. Einzelgarage
- Inklusiv-Leistungen:
- Wohnfläche ca. 127 m²
- 4 Zimmer
- Außenmasse: 6.59 m x 11.84 m
- Architektenleistung
- Bau-Sicherheitspaket
- Heizungsanlage- und Elektropaket
- Dreifach verglaste Fenster inkl. Aluminiumrollläden
- Luft-Wasser-Wärmepumpe
- Echtholztreppe
- Bodenbeläge und Tapeten
- Luftdichtigkeitsmessung
- Lichte Raumhöhe von 2,75 m
- Dämm- und Beplankungspaket
- Haustechnik inklusive Rohrleitungen
- Kontrollierte Be- und Entlüftungsanlage mit Wärmerückgewinnung
- Sanitärobjekte
- Innentüren, Zargen und Fliesen
- Steckdosen
Baugrundstück, ohne Bauszwang in hervorragender Lage bei Altdorf, Landkreis Landshut - zu verkaufen
84032 Altdorf
Die vollständige Adresse der Immobilie erhalten Sie vom Anbieter.
Auf Karte anzeigen
Die vollständige Adresse der Immobilie erhalten Sie vom Anbieter.
Finanzierungszertifikat
In nur zwei Minuten zu Ihrem persönlichen Finanzierungszertifkat.
Infos
| Vermarktungsart | Kaufen |
|---|---|
| Grundstücksfläche | 690 m2 |
| Erschließung | Teilerschlossen |
| Empfohlene Nutzung | Doppelhaus, Einfamilienhaus, Keine Bebauung |
| Bebaubar nach | wie Nachbarbebauung |
| Verfügbar ab | sofort |
Kosten
| Miete pro Jahr |
0 € |
|---|---|
| Provision |
3,57 |
Finanzierungsrechner:
Kaufpreis:
600.000 €
Eigenkapital:
600.000 €
Monatliche Rate
0 €
Effektiver Jahreszins
0 %
Sollzinsbindung
10 Jahre
Beschreibung des Objekts
Lage
Willkommen in Altdorf bei Landshut, einer idyllischen Gemeinde in Bayern, die durch ihre ausgezeichnete Lage und charmante Atmosphäre besticht. Hier präsentieren wir Ihnen eine Immobilie in einer der begehrtesten Lagen der Region (Ganslberg).
Lage:
Die Immobilie befindet sich in Altdorf bei Landshut, einer Gemeinde, die für ihre erstklassige Lebensqualität und ihre günstige Lage bekannt ist. Strategisch zwischen den Städten Landshut und Moosburg gelegen, bietet Altdorf eine ideale Kombination aus ländlichem Charme und urbaner Anbindung. Die Nähe zur Autobahn A92 ermöglicht eine bequeme Anreise nach München, Regensburg und darüber hinaus, während die malerische Umgebung mit grünen Wiesen und sanften Hügeln ein ruhiges und entspanntes Lebensumfeld bietet.
Infrastruktur und Annehmlichkeiten:
Altdorf bei Landshut verfügt über eine hervorragende Infrastruktur, die den Bewohnern ein komfortables und bequemes Leben ermöglicht. Die Gemeinde bietet eine Vielzahl von Einkaufsmöglichkeiten, Restaurants, Schulen und medizinischen Einrichtungen, die alle innerhalb kurzer Fahrstrecken erreichbar sind. Die Nähe zu Landshut, einer historischen Stadt mit reichem kulturellem Erbe, bietet zudem zahlreiche Freizeitmöglichkeiten und kulturelle Veranstaltungen für die ganze Familie.
Natur und Erholung:
Die Umgebung von Altdorf bei Landshut lädt zu Outdoor-Aktivitäten und Erholung ein. Umgeben von malerischer Natur und weitläufigen Landschaften bietet die Region zahlreiche Wander- und Radwege, die erkundet werden können. Die nahegelegenen Isarauen und die Isar bieten außerdem Möglichkeiten zum Angeln, Picknicken und Entspannen in unberührter Natur.
Fazit:
Diese exklusive Immobilie in Altdorf bei Landshut bietet nicht nur ein traumhaftes Zuhause, sondern auch die Möglichkeit, das Beste aus dem bayerischen Lebensstil zu erleben. Mit einer erstklassigen Lage, einer ausgezeichneten Infrastruktur und einer Fülle von Freizeitmöglichkeiten ist Altdorf bei Landshut zweifellos eine der begehrtesten Wohnadressen in der Region.
Kommen Sie und entdecken Sie Ihr neues Zuhause in Altdorf - ein Ort, wo Lebensqualität und Lebensfreude Hand in Hand gehen.
Sonstige Angaben
Gerne sind wir für weitere Fragen und Informationen unter Tel.: 09441 - 2089160 erreichbar.
Bei Kauf verpflichtet sich der Käufer an die Aurentum Niederbayern Oberpfalz GmbH, eine Maklerprovision in der angegebenen Höhe nach notariellem Kaufvertrag zu leisten. Durch Ihre Objektanfrage bestätigen Sie die Vereinbarung und Anerkennung dieser Maklercourtage. Alle Angaben stammen vom Eigentümer, der Makler übernimmt hierfür keine Haftung.
Anfragen über die Immobilienportale werden nur mit vollständiger Adresse und Telefonnummer bearbeitet. Aufsichtsbehörde: IHK für München und Oberbayern, Max-Joseph-Str. 2, 80333 München.
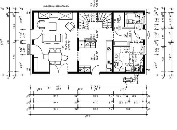
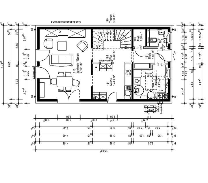
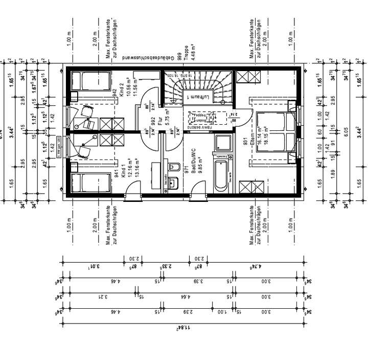
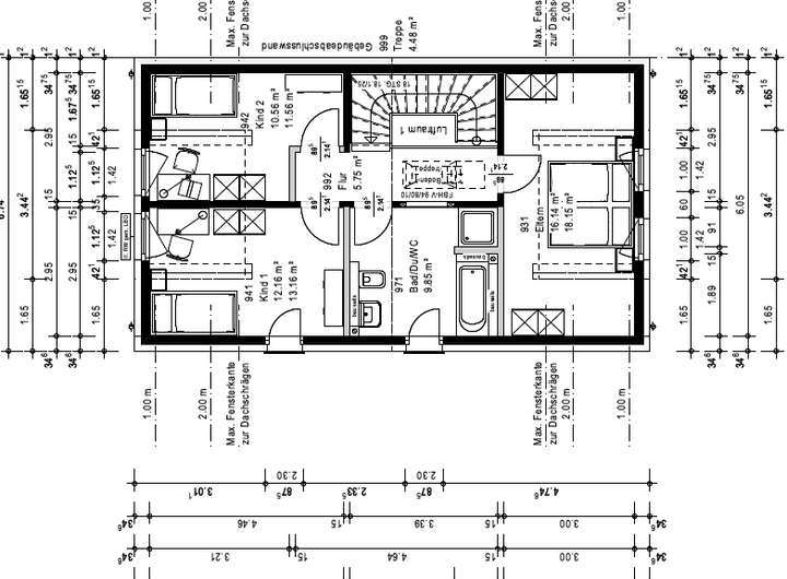
Grundriss
Grundriss Erdgeschoss
>
>
Grundriss Obergeschoss
>
>