Sie möchten naturnah wohnen, Tiere halten, gesundes Obst und Gemüse selber anbauen und ernten?
Zusätzlich wollen Sie genügend Platz zum Einlagern von unterschiedlichen Dingen haben?
Sie suchen eine Immobilie in der Sie Ihre eigenen Vorstellungen umsetzen können?
Dann sind Sie hier genau richtig!
Die großzügigen und hellen Räume der angebotenen Doppelhaushälfte warten darauf neu zum Leben erweckt zu werden. Ergänzen Sie vorhandene Vorteile wie z.B. die hellen Räume, die beiden Wintergärten und das Ausbaupotential im Dachgeschoss (Daten hierzu unter dem Punkt sonstiges) durch z.B. eine neue Heizung, zusätzliche Fenster, neue Bodenbeläge, Ihre Farben und Möbel.
Nach erfolgter Renovierung können Sie hier problemlos mit einer Großfamilie wohnen (3 Bäder/3 WC's) oder sich ihr eigenes Mehrgenerationenhaus erschaffen. Wohnen & Arbeiten unter einem Dach ist eine weitere Option.
Auch der Außenbereich bietet viele Vorteile.
Neben einer geräumigen Doppelgarage gibt es auch noch einen großen Anbau mit rund 31 qm Abstell-/Lagerfläche. Im hinteren Bereich des Grundstücks finden Sie neben dem eigenen Bachlauf eine herrliche Streuobstwiese mit einer Vielzahl an unterschiedlichen Obstbäumen. Unter anderem 8 Apfelbäume, 3 Walnussbäume, Pflaumenbäume ...
Aktuell ist der Gartenbereich noch in mehrere Teilstücke unterteilt, da die Eigentümer hier unter anderem Hühner und Ziegen gehalten haben. Aber egal ob Hunde, Katzen, Hasen, Ziegen oder Hühner oder eventuell auch "nur" Obst und Gemüse, hier haben Sie viele, viele, Möglichkeiten Ihrem Hobby nach zu gehen.
Vorgehen bei Interesse:
- komplett ausgefüllte Kontaktanfrage an uns senden
- Adressabruf über das Ihnen dann zugesandte Exposé vornehmen
- Erste Lageprüfung (vor Ort oder in den Medien) vornehmen
- Rückmeldung für Fragen bzw. zur Terminvereinbarung
Gerne vermitteln wir Ihnen auch einen unabhängigen Finanzierer.
Sollten Sie eine eigene Immobilie zu verkaufen haben übernehmen wir den Verkauf gerne für Sie.
Sprechen Sie uns an.
Freie, naturnahe Doppelhaushälfte mit viel (Ausbau-) Potential ! Streuobstwiese, eigener Bachlauf...
91126 Schwabach
Die vollständige Adresse der Immobilie erhalten Sie vom Anbieter.
Auf Karte anzeigen
Die vollständige Adresse der Immobilie erhalten Sie vom Anbieter.
Finanzierungszertifikat
In nur zwei Minuten zu Ihrem persönlichen Finanzierungszertifkat.
Infos
| Haustyp | Doppelhaushaelfte |
|---|---|
| Wohnfläche ca. | 184 m2 |
| Nutzfläche | 70 m2 |
| Grundstücksfläche | 1.227 m2 |
| Bezugsfrei ab | nach Vereinbarung |
| Zimmer | 6 |
| Schlafzimmer | 4 |
| Badezimmer | 3 |
| Garage/Stellplatz | Garage |
| Anzahl Garage/Stellplatz | 2 |
Kosten
| Kaufpreis |
409.000 € |
|---|---|
| Provision |
3,57 % inkl. ges. MwSt. Die Maklercourtage für den Käufer beträgt 3 % aus dem Kaufpreis zuzüglich der gesetzlichen MwSt., somit gesamt 3,57 %. |
Finanzierungsrechner:
Kaufpreis:
600.000 €
Eigenkapital:
600.000 €
Monatliche Rate
0 €
Effektiver Jahreszins
0 %
Sollzinsbindung
10 Jahre
Bausubstanz & Energieausweis
| Baujahr | 1908 |
|---|---|
| Letzte Sanierung | 1970 |
| Bauphase | Haus fertig gestellt |
| Objektzustand | Renovierungsbedürftig |
| Qualität der Austattung | Normal |
| Heizungsart | Nachtspeicherofen |
| Wesentliche Energieträger | Strom |
| Energieausweis | liegt vor |
| Energieausweistyp | Bedarfsausweis |
| Energieverbrauchskennwert | 159,2 kWh/(m²*a) |
| Energieeffizienzklasse | E |
159,2
kWh/(m²*a)
Energieeffizienzklasse E
- A+
- A
- B
- C
- D
- E
- F
- G
- H
- 0
- 25
- 50
- 75
- 100
- 125
- 150
- 175
- 200
- 225
- >250
Beschreibung des Objekts
Ausstattung
* Windfang am Hauseingang
* kleiner Wintergarten mit elektrischer Fußbodenheizung
über dem Hauseingang (1998)
* überdachter Außenbereich mit Schiebetüren im Erdgeschoss
* Wintergarten mit elektrischer Fußbodenheizung im
Obergeschoss (Ostseite)
* helle, sonnige Räume
* insgesamt 3 Bäder und 3 WC's
* Doppelgarage in Form von Einzelgarage mit doppelter
Länge + Stellplatz
* großer Garagenanbau 2001
* elektrisches Tor bei der Hofeinfahrt
* Stromleitungen ca. 1970 erneuert und danach immer wieder
Ergänzungen und Änderungen
* Wasserleitungen ca. 1970 erneuert und danach immer wieder
Ergänzungen und Änderungen im Zuge von Umbauten
und Renovierungen
* Nachtspeicheröfen von ca. 1980
* Kunststofffenster überwiegend Ende der 1980er,
einzelne Fenster jünger
Lage
Gut gelegen in der Nähe der Städte Schwabach und Nürnberg, bietet dieses Haus sowohl für Familien als auch für Berufspendler eine attraktive naturnahe Wohnlage.
Zahlreiche Einrichtungen des täglichen Bedarfs, wie Supermärkte, Drogerien und Apotheken, sind sowohl im Schwabacher Stadtzentrum als auch im nahegelegenen Stadtteil Wolkersdorf vorhanden. Dies gewährleistet eine bequeme Nahversorgung, ohne weite Wege zurücklegen zu müssen. Für Kinder sind verschiedene Bildungseinrichtungen wie Kindergärten, Grundschulen und Gymnasien sowohl im Zentrum von Schwabach als auch in Wolkersdorf gut erreichbar.
Die Nähe zu Nürnberg (ca. 12 km entfernt) sowie die nahegelegenen S-Bahn-Anschlüsse in Nürnberg-Katzwang (ca. 4 km), Nürnberg Röthenbach (ca. 7 km) sowie in Eibach und Schwabach bieten eine schnelle Verbindung nach Nürnberg und Umgebung.
Umgeben von Feldern, Wäldern und Wiesen, bietet die unmittelbare Umgebung zahlreiche Möglichkeiten für entspannende Spaziergänge und Ausflüge in die Natur.
Für Naturliebhaber und Sportbegeisterte bieten sich zudem vielfältige Freizeitmöglichkeiten.
Sonstige Angaben
Energiebedarfsausweis Energiekennwert: 159,20 kWh/(qm*a) Energieeffizienz: Klasse E (kl.160) Heizung: Nachtspeicheröfen mit Strom Baujahr laut Energieausweis: 1908
+++ Mit wenigen Maßnahmen könnten ca. 54 qm Nutzfläche im Dachgeschoss in "offizielle Wohnfläche" umgewandelt werden.
Hierzu müsste die aktuelle Heizsituation verändert werden und auch die Belichtungsfläche müsste um knapp 4 qm dann etwas über 9 qm gesteigert werden.
Zuletzt wurde das Dachgeschoss bereits als Wohnraum verwendet und verfügt unter anderem über eine Küche sowie ein separates Bad mit Eckbadewanne inkl. Duschaufsatz.
Bilder vom Dachgeschoss sind dem Exposé beigefügt.
Es gibt auch noch einen Kellerraum mit ca. 16,53 qm.+++
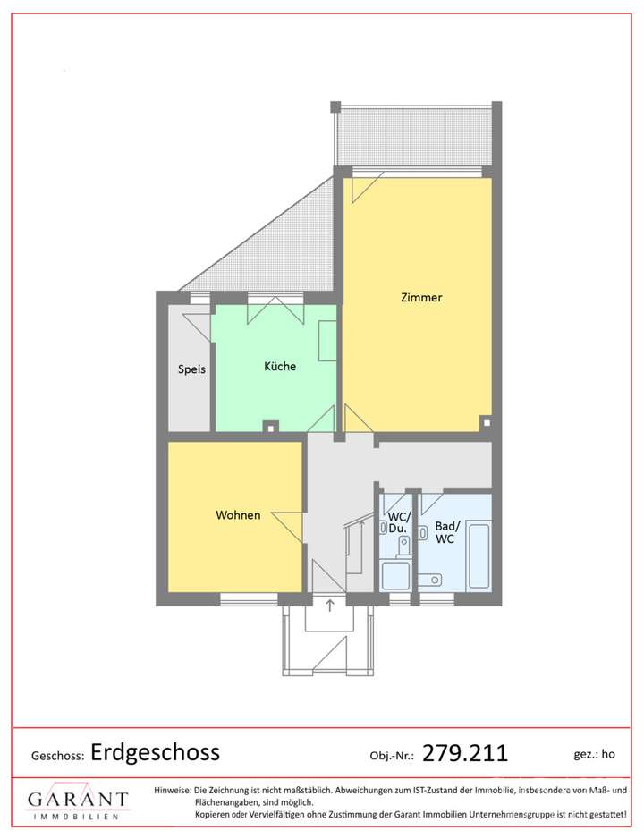
Grundriss
Grundriss Erdgeschoss
>
>
Grundriss Obergeschoss
>
>
Grundriss
>
>
Adresse
91126 Schwabach
Interessante Orte
Preis- und Lageinformationen
Preistrend für Bestandsimmobilien in Dietersdorf