Diese projektierte Doppelhaushälfte vereint modernes Wohnen mit einem traumhaften Ausblick ins Grüne – bis hinunter zum Rhein. In ruhiger Lage und mit unverbaubarem Fernblick erwartet Sie ein Zuhause, das jeden Tag zu etwas Besonderem macht.
Die durchdachte, familienfreundliche Raumaufteilung überzeugt auf ganzer Linie. Im Erdgeschoss lädt ein großzügiger Wohn- und Essbereich mit großen Fensterflächen zum Verweilen ein. Der direkte Zugang zur Terrasse und zum Garten schafft ein angenehmes Wohngefühl mit nahtlosem Übergang ins Freie – ideal für entspannte Stunden mit der Familie oder Freunden. Eine offene Küche, ein praktisches Gäste-WC sowie ein Hauswirtschaftsraum ergänzen das Raumangebot auf dieser Ebene.
Im Obergeschoss erwarten Sie drei helle Schlafzimmer – ein Elternschlafzimmer sowie zwei Kinderzimmer – und ein geräumiges Familienbad, das keine Wünsche offenlässt. Die moderne Eckverglasung sorgt in allen Wohnbereichen für viel Licht und ein offenes, freundliches Ambiente.
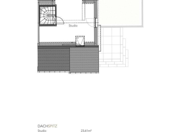
Ein besonderes Highlight bietet der Dachspitz: Mit einem Ausbaupotenzial von ca. 26 m² eröffnet sich zusätzlicher Wohnraum – ideal als Studio, Homeoffice oder weiterer Schlafbereich. Eine Loggia in dieser Etage schafft zusätzlichen Freiraum mit Ausblick und macht den Dachspitz zu einem gemütlichen Rückzugsort.
Abgerundet wird das Angebot durch einen direkt am Haus gelegenen Carport mit Platz für zwei Fahrzeuge – komfortabel und alltagstauglich.
Ein Zuhause, das Raum für Familie, Entspannung und Lebensqualität bietet – und das mit einem Ausblick, der begeistert.
Wohnen, wo andere Urlaub machen
65375 Oestrich-Winkel
Die vollständige Adresse der Immobilie erhalten Sie vom Anbieter.
Auf Karte anzeigen
Die vollständige Adresse der Immobilie erhalten Sie vom Anbieter.
Finanzierungszertifikat
In nur zwei Minuten zu Ihrem persönlichen Finanzierungszertifkat.
Infos
| Haustyp | Doppelhaushaelfte |
|---|---|
| Wohnfläche ca. | 151 m2 |
| Grundstücksfläche | 220,13 m2 |
| Zimmer | 5 |
| Schlafzimmer | 3 |
| Badezimmer | 1 |
| Garage/Stellplatz | Carport |
| Anzahl Garage/Stellplatz | 1 |
Kosten
| Kaufpreis |
950.000 € |
|---|---|
| Preis für Garage/Stellplatz | 30.000 € |
| Provision |
2,38% |
Finanzierungsrechner:
Kaufpreis:
600.000 €
Eigenkapital:
600.000 €
Monatliche Rate
0 €
Effektiver Jahreszins
0 %
Sollzinsbindung
10 Jahre
Bausubstanz & Energieausweis
| Baujahr | 2026 |
|---|---|
| Heizungsart | Fußbodenheizung |
Beschreibung des Objekts
Ausstattung
Das Projekt auf einen Blick – Wohnen mit Konzept und Charakter:
Dieses durchdachte Bauprojekt umfasst fünf hochwertige Wohneinheiten: Drei Reihenhäuser und ein Doppelhaus, harmonisch gruppiert um einen zentral gelegenen Platz. Die Anordnung schafft eine angenehme, private Nachbarschaftsatmosphäre mit kurzen Wegen und einem stimmigen Gesamtbild.
Das architektonische Konzept stammt von erfahrenen Architekten und Ingenieuren, die besonderen Wert auf Details, Funktionalität und eine klare, ästhetische Formensprache gelegt haben. Entstanden ist ein Ensemble, das modernes Wohnen mit zeitloser Architektur verbindet.
Besonders reizvoll ist die Lage: Eingebettet in gewachsenen Altbestand entsteht hier keine anonyme Neubausiedlung, sondern ein Ort mit Charakter und Geschichte. Private Gärten grenzen direkt an den idyllischen Schwemmbach und sorgen für ein naturnahes Wohngefühl.
Die Verwendung natürlicher Materialien sowie eine warme, harmonische Farbgestaltung schaffen ein angenehmes und stilvolles Ambiente. Jede Wohneinheit verfügt über eine eigene Terrasse und einen privaten Gartenbereich – ideal für entspannte Stunden im Freien oder geselliges Beisammensein.
Auch in puncto Nachhaltigkeit überzeugt das Projekt: Die energieeffiziente Bauweise entspricht modernen Standards und bildet die Grundlage für dauerhaft niedrige Betriebskosten sowie ein zukunftsfähiges Wohnkonzept.
www.rheinleben.net
Lage
Der Stadtteil Winkel, als Teil der beliebten Rheingaugemeinde Oestrich-Winkel, bietet die perfekte Mischung aus naturnahem Wohnen und städtischer Infrastruktur. Inmitten von Weinbergen und mit direkter Nähe zum Rhein genießen Sie hier eine hohe Lebensqualität, die sowohl Familien als auch Paare begeistert.
Die Lage ist besonders familienfreundlich: In Oestrich-Winkel selbst befinden sich mehrere Kindergärten sowie eine Grundschule – weiterführende Schulen sind in den benachbarten Ortsteilen oder Städten schnell und unkompliziert erreichbar. Auch Betreuungs- und Freizeitangebote für Kinder sind vielfältig vorhanden.
Die medizinische Versorgung ist durch eine gute Auswahl an Haus- und Fachärzten sowie Apotheken im Ort gesichert. Für den täglichen Bedarf stehen Supermärkte, Bäcker und weitere Geschäfte des täglichen Lebens fußläufig zur Verfügung. Regionale Produkte gibt es frisch auf dem Wochenmarkt oder direkt in den zahlreichen Hofläden.
Freizeit und Kultur kommen in Oestrich nicht zu kurz: Ob Spaziergänge entlang des Rheins, Radtouren durch die Weinberge, Besuche in traditionellen Weingütern mit Gutsausschank oder gemütliche Abende in der Gastronomie vor Ort – hier lässt sich das Leben genießen. Kino, Sportvereine und kulturelle Veranstaltungen sorgen für zusätzliche Abwechslung.
Dank der zentralen Lage ist Oestrich hervorragend angebunden: Mit dem Bahnhof und mehreren Busverbindungen sind Städte wie Wiesbaden, Mainz oder Frankfurt schnell erreicht. Auch die A66 ist in wenigen Minuten mit dem Auto erreichbar – ideal für Pendler.
Oestrich bietet Ihnen ein Zuhause mit Charakter, Ruhe, guter Infrastruktur und einem hohen Maß an Lebensqualität – mitten im Rheingau.
Sonstige Angaben
Alle in diesem Angebot enthaltenen Angaben, Abmessungen und Preisangaben beruhen auf Angaben des Verkäufers (oder eines Dritten). Heske Volz & Cie GbR kann für die Richtigkeit und Vollständigkeit keine Gewähr übernehmen.
Adresse
65375 Oestrich-Winkel
Interessante Orte
Preis- und Lageinformationen
Preistrend für Bestandsimmobilien in Oestrich-Winkel