Willkommen in Ihrem neuen Zuhause!
Dieses wunderschöne Einfamilienhaus befindet sich auf einem großzügigen, sehr gepflegten Grundstück von ca. 901 m² in der begehrten Lage von Bad Kreuznach.
Mit einer Wohnfläche von ca. 172,35 m² und einer Nutzfläche von ca. 83,13 m² bietet dieses Haus ausreichend Platz für die ganze Familie und überzeugt durch eine harmonische Raumaufteilung.
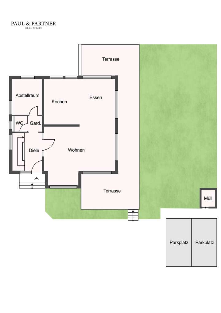
Im Erdgeschoss gelangen Sie in einen großzügigen Eingangsbereich, der Sie in die hellen und freundlichen Wohnräume führt. Der offene Wohn- und Essbereich ist der perfekte Ort für gesellige Abende mit Familie und Freunden. Große Fensterfronten sorgen für viel Tageslicht und einen herrlichen Blick in den Garten. Die moderne Küche ist ideal ausgestattet und lässt keine Wünsche offen.
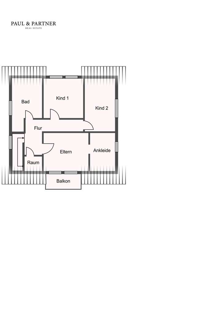
Im Obergeschoss befinden sich die Schlafzimmer, die durch ihre ruhige Lage und den Zugang zu einem Balkon bestechen. Hier können Sie entspannte Stunden genießen und den Blick über die Nachbarschaft schweifen lassen. Ein geschmackvoll gestaltetes Badezimmer rundet das Angebot im Obergeschoss ab.
Der traumhaft angelegte Garten ist ein echtes Highlight dieser Immobilie. Er bietet viel Platz zum Entspannen und Spielen. Der Pavillon lädt zu geselligen Grillabenden im Freien ein, während die große Terrasse der perfekte Ort ist, um die Sonne zu genießen. Hier können Sie die Natur in vollen Zügen erleben und schöne Momente mit Freunden und Familie verbringen.
NEU *Paul & Partner* STILVOLLES EINFAMILIENHAUS MIT TRAUMGARTEN!
55545 Bad Kreuznach
Die vollständige Adresse der Immobilie erhalten Sie vom Anbieter.
Auf Karte anzeigen
Die vollständige Adresse der Immobilie erhalten Sie vom Anbieter.
Finanzierungszertifikat
In nur zwei Minuten zu Ihrem persönlichen Finanzierungszertifkat.
Infos
| Haustyp | Einfamilienhaus |
|---|---|
| Wohnfläche ca. | 172 m2 |
| Nutzfläche | 83,13 m2 |
| Grundstücksfläche | 901 m2 |
| Zimmer | 8 |
| Schlafzimmer | 3 |
| Badezimmer | 2 |
| Garage/Stellplatz | Außenstellplatz |
| Anzahl Garage/Stellplatz | 2 |
Kosten
| Kaufpreis |
890.000 € |
|---|---|
| Provision |
3,57 % inkl. MwSt. vom notariellen Kaufpreis Das Objekt wird Ihnen mit einer Provision von 3,57 % inkl. MwSt. des notariellen Kaufpreises angeboten. Der Makler-Vertrag mit uns und/oder unserem Beauftragten kommt durch schriftliche Vereinbarung oder durch die Inanspruchnahme unserer Maklertätigkeit auf der Basis des Objekt-Exposés und seiner Bedingungen zustande. Paul & Partner Real Estate und ggf. deren Beauftragte erhalten einen unmittelbaren Zahlungsanspruch gegenüber dem Käufer. |
Finanzierungsrechner:
Kaufpreis:
600.000 €
Eigenkapital:
600.000 €
Monatliche Rate
0 €
Effektiver Jahreszins
0 %
Sollzinsbindung
10 Jahre
Bausubstanz & Energieausweis
| Objektzustand | Neuwertig |
|---|---|
| Qualität der Austattung | Luxus |
| Wesentliche Energieträger | Gas |
| Energieausweis | liegt zur Besichtigung vor |
Beschreibung des Objekts
Ausstattung
✓ gepflegte Liegenschaft
✓ variantenreicher Grundriss
✓ sehr gepflegter Garten
✓ gute Raumaufteilung
✓ Balkon
✓ Terrasse
✓ Pavillon im Garten
✓ zwei Außenstellplätze
✓ gefragte Lage
✓ Abstellraum
✓ Hobbyraum
✓ unterkellert
✓ gute Anbindungen
✓ und, und, und…
Lage
BAD KREUZNACH - WINZENHEIM
Über die Entstehung von Winzenheim liegen keine genauen Angaben vor. Es wird vermutet, dass es wie viele „-heim“-Dörfer der Umgebung im 7. oder 8. Jahrhundert als fränkische Siedlung entstand. Erstmals urkundlich erwähnt wurde Winzenheim im Jahre 1056.
Das Ortswappen der ehemals Selbstständigen Gemeinde Winzenheim, das heute noch bei feierlichen Anlässen eingesetzt wird, zeigt auf blauem Grund den heiligen St. Petrus mit goldenem Schlüssel.
Winzenheim war zunächst die einzige Gebietskörperschaft, die der Eingemeindung aus eigenem Antrieb zugestimmt hat. Seither hat sich der Stadtteil enorm weiterentwickelt. Um den alten Ortskern hat sich das Weindorf Winzenheim zu einem attraktiven Wohnstadtteil entwickelt. Mit rd. 4.300 Einwohner/‑innen ist Winzenheim der zweitgrößte der fünf eingemeindeten Stadtteile von Bad Kreuznach.
Die bedeutendsten Investitionen der Vergangenheit waren der Ausbau der gesamten Kanalisation, die kontinuierliche Verbesserung des Verkehrsnetzes (u. a. Ortsumgehung "Hungriger Wolf"), die Erweiterung der Grundschule, die Errichtung einer Mehrzweckhalle, der Neubau eines Kindergartens, der Neubau des Feuerwehrgerätehauses im Büttenweg (Löschzug Nord) sowie der Erhalt bzw. Umbau einer ehemaligen Scheune und des angrenzenden Festplatzes zum Dorfgemeinschaftszentrum. Nach Jahren zähen Ringens konnte schließlich auch ein neuer Kunstrasenplatz mit angrenzendem Bolzplatz eingeweiht werden.
Sonstige Angaben
Widerrufsbelehrung
Widerrufsrecht:
Sie können Ihre Vertragserklärung innerhalb von 14 Tagen ohne Angabe von Gründen in Textform (Brief, Mail, Fax etc.) widerrufen. Die Frist beginnt nach Erhalt dieser Belehrung in Textform, jedoch nicht vor Vertragsschluss und auch nicht vor Erfüllung unserer Informationspflichten gem. Art. 246 § 2 i.V.m. § 1 Abs. 1 und 2 EGBGB. Zur Wahrung der Widerrufsfrist genügt die rechtzeitige Absendung des Widerrufs. Den Widerruf richten Sie bitte an:
Paul & Partner Real Estate -
PPRE GMBH & CO. KG
Parkstraße 44 B
D - 65191 Wiesbaden
Telefon: +49 611 50 40 50 2
Telefax: +49 611 50 40 50 3
mailto: info@paul-partner.com
Widerrufsfolgen:
Im Falle eines wirksamen Widerrufs sind die beiderseits empfangenen Leistungen zurück zu gewähren und ggf. bezogene Nutzungen (z.B. Zinsen) herauszugeben. Können Sie uns die empfangene Leistung sowie Nutzung (z.B. Gebrauchsvorteile) nicht oder teilweise oder nur in verschlechtertem Zustand zurückgewähren bzw. herausgeben, müssen Sie uns insoweit Wertersatz leisten. Dies kann dazu führen, dass Sie die vertraglichen Zahlungsverpflichtungen für den Zeitraum bis zum Widerruf gleichwohl erfüllen müssen. Verpflichtungen zur Erstattung von Zahlungen müssen innerhalb von 30 Tagen erfüllt werden. Die Frist beginnt für Sie mit der Absendung Ihrer Widerrufserklärung, für uns mit deren Empfang.
Besondere Hinweise:
Das Widerrufsrecht erlischt vorzeitig, wenn der Vertrag von beiden Seiten auf Ihren ausdrücklichen Wunsch vollständig erfüllt ist, bevor Sie Ihr Widerrufsrecht ausgeübt haben.
Grundriss
www.paul-partner.com
>
>
www.paul-partner.com
>
>
www.paul-partner.com
>
>
www.paul-partner.com
>
>
Adresse
55545 Bad Kreuznach
Interessante Orte
Preis- und Lageinformationen
Preistrend für Bestandsimmobilien in Bad Kreuznach