Inmitten der rheinhessischen Kulturlandschaft erwartet Sie in Aspisheim ein vielseitiges Wohnensemble aus zwei Häusern mit insgesamt drei Wohneinheiten. Auf rund 230 m² Wohnfläche vereint diese Immobilie zwei vollwertige Wohnungen, eine zusätzliche Einliegerwohnung, eine große Garage, mehrere Nebenräume, zwei sonnige Terrassen sowie einen kleinen, separaten Gewölbekeller. Damit eröffnet sich ein breites Spektrum an Nutzungsmöglichkeiten – vom Mehrgenerationenwohnen über teilweise oder vollständige Vermietung bis hin zur soliden Kapitalanlage.
Die ruhige Lage, die solide Bausubstanz und die flexible Raumstruktur machen dieses Angebot zu einer attraktiven Option für Familien und Investoren.
Haus 1
Im Erdgeschoss befindet sich eine abgeschlossene Einliegerwohnung mit ca. 40 m² Wohnfläche. Sie umfasst einen Raum, der sowohl als Schlafzimmer wie auch als Wohnzimmer genutzt werden kann, dazu eine Küche und ein Bad. Damit eignet sich diese Einheit hervorragend für Gäste, Familienmitglieder oder zur Vermietung.
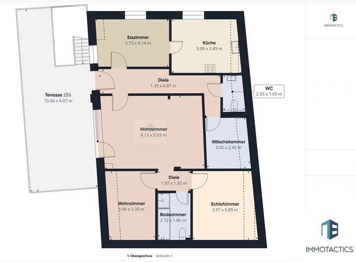
Im 1. Obergeschoss liegt die großzügige Hauptebene mit ca. 70 m²: Ein weitläufiger Wohnbereich mit Kaminofen, Essplatz und Zugang zur überdachten Terrasse prägt diesen Bereich. Ergänzt wird die Etage durch eine separate Küche und ein helles Tageslichtbad.
Im 2. Obergeschoss stehen ca. 32 m² Wohnfläche zur Verfügung. Hier gibt es drei Schlafzimmer, ein weiteres Tageslichtbad sowie zwei zusätzliche Räume. Einer dient klassisch als Abstellraum, der andere ist direkt mit einem Kinderzimmer verbunden und wird derzeit als Ankleide genutzt.
Das Kellergeschoss umfasst einen kleinen, von außen begehbaren Raum mit ca. 10 m² – praktisch für Vorräte, Hauswirtschaft oder eine Werkbank.
Haus 2
Im Erdgeschoss befindet sich eine großzügige Garage mit ca. 100 m² Nutzfläche. Sie bietet ausreichend Platz für mehrere Fahrzeuge und eignet sich zugleich hervorragend als Werkstatt. Ergänzt wird dieser Bereich durch drei weitere Nebenräume mit zusammen rund 40 m², die zusätzliche Abstell- und Lagermöglichkeiten schaffen.
Im 1. Obergeschoss erstreckt sich die rund 100 m² große Einliegerwohnung über die gesamte Etage. Sie umfasst ein helles Wohnzimmer mit Zugang zur großen Terrasse, eine geräumige Küche mit einem angrenzenden Esszimmer, zwei Schlafzimmer sowie ein Badezimmer. Zusätzlich stehen ein Gäste-WC und ein praktischer Abstellraum zur Verfügung.
Lage – Aspisheim
Aspisheim überzeugt durch seine ruhige, familienfreundliche Wohnlage inmitten der rheinhessischen Weinlandschaft. Die Anbindung an Mainz, Wiesbaden und Frankfurt ist schnell und unkompliziert. Einkaufsmöglichkeiten, Schulen und Freizeitangebote befinden sich in direkter Umgebung.
Fazit
Dieses Ensemble aus zwei Häusern und drei eigenständigen Wohneinheiten verbindet großzügiges Wohnen mit flexibler Nutzung und attraktiver Investitionsperspektive. Ob Mehrgenerationenhaushalt, Kombination aus Eigenbedarf und Vermietung oder reine Kapitalanlage – hier eröffnen sich zahlreiche Optionen.
Viel Raum in Aspisheim: 2 Häuser, 3 Einheiten –ideal zum Wohnen, Vermieten oder für Mehrgenerationen
55459 Aspisheim
Die vollständige Adresse der Immobilie erhalten Sie vom Anbieter.
Auf Karte anzeigen
Die vollständige Adresse der Immobilie erhalten Sie vom Anbieter.
Finanzierungszertifikat
In nur zwei Minuten zu Ihrem persönlichen Finanzierungszertifkat.
Infos
| Haustyp | Sonstige |
|---|---|
| Etagenzahl | 3 |
| Wohnfläche ca. | 230 m2 |
| Grundstücksfläche | 320 m2 |
| Bezugsfrei ab | nach Absprache |
| Zimmer | 11 |
| Schlafzimmer | 6 |
| Badezimmer | 3 |
| Anzahl Garage/Stellplatz | 5 |
Kosten
| Kaufpreis |
629.000 € |
|---|---|
| Provision |
3,57 % inkl. gesetzlicher Umsatzsteuer |
Finanzierungsrechner:
Kaufpreis:
600.000 €
Eigenkapital:
600.000 €
Monatliche Rate
0 €
Effektiver Jahreszins
0 %
Sollzinsbindung
10 Jahre
Bausubstanz & Energieausweis
| Baujahr | 1998 |
|---|---|
| Bauphase | Haus fertig gestellt |
| Objektzustand | Gepflegt |
| Qualität der Austattung | Normal |
| Heizungsart | Fußbodenheizung |
| Wesentliche Energieträger | Gas |
| Energieausweis | liegt vor |
| Energieausweistyp | Verbrauchsausweis |
| Energieverbrauchskennwert | 108,8 kWh/(m²*a) |
| Energieeffizienzklasse | D |
108,8
kWh/(m²*a)
Energieeffizienzklasse D
- A+
- A
- B
- C
- D
- E
- F
- G
- H
- 0
- 25
- 50
- 75
- 100
- 125
- 150
- 175
- 200
- 225
- >250
Beschreibung des Objekts
Ausstattung
-Zwei separate Wohneinheiten mit eigenem Zugang
-Ca. 230 m² Wohnfläche auf mehreren Ebenen
- Haus 1: EG: Einliegerwohnung mit 40m² (1 Zimmer, Küche, Bad )
Haus 1: Hauptebene 1 & 2. OG ca. 102m² ( 6 Zimmer, Küche & zwei Bäder)
Haus 2: 1. OG Einliegerwohnung ca. 100m² (5 Zimmer, Küche & zwei Bäder)
-Kamin im Wohnbereich (Haus 1, 1. OG)
-Garage mit Lagerflächen
-Keller mit Außenzugang (Haus 1)
-Zwei große Terrassen mit Teilüberdachung
-6 Schlafzimmer, 3 Badezimmer, Gäste-WC
-2 moderne Einbauküchen inklusive
-Fußbodenheizung
-Glasfaser vorbereitet, SAT-TV verfügbar
-Solide Bausubstanz, gepflegter Gesamtzustand
-Ideal für Familien, Investoren & Selbstnutzer
Lage
Aspisheim liegt inmitten der rheinhessischen Kulturlandschaft und gehört zum Landkreis Mainz-Bingen. Die Gemeinde bietet ein angenehmes Wohnumfeld für Familien, die Wert auf Ruhe, Sicherheit und eine naturnahe Umgebung legen – ohne auf eine gute Anbindung verzichten zu wollen.
Der Ort ist hervorragend in das regionale Verkehrsnetz eingebunden: Die Bundesstraßen B41 und B50 sowie die Autobahnen A60 und A61 sind in wenigen Minuten erreichbar. So gelangen Berufspendler schnell in Richtung Mainz, Wiesbaden, Frankfurt oder Kaiserslautern. Auch der Bahnhof in Gensingen bietet eine gute Zuganbindung für den öffentlichen Nahverkehr.
In der näheren Umgebung finden Familien alles, was sie für den Alltag benötigen: Kindergärten, Grundschulen und weiterführende Schulen sind schnell erreichbar, ebenso wie Einkaufsmöglichkeiten, ärztliche Versorgung, Sportvereine und Freizeitangebote. Die ländliche Umgebung mit ihren Weinbergen, Feldern und Radwegen schafft zusätzlichen Raum für Bewegung und Erholung.
Aspisheim ist somit ein attraktiver Wohnort für alle, die ein ruhiges Umfeld mit funktionierender Infrastruktur und guter Verkehrsanbindung suchen – insbesondere für Familien, die Wert auf Lebensqualität und kurze Wege legen.
Sonstige Angaben
Die in unserem Exposé enthaltenen Aussagen basieren ausschließlich auf Informationen, die uns vom Verkäufer und von Handwerkern zur Verfügung gestellt wurden.
Wir übernehmen daher keine Gewähr für die Vollständigkeit und Richtigkeit der Angaben.
Das Immobilienangebot ist freibleibend.
Irrtum und Zwischenverkauf bleiben vorbehalten.
Weitere Details zum Objekt erläutern wir Ihnen gerne bei einem Besichtigungstermin.
Wir bitten um Ihr Verständnis dafür, dass wir nur Anfragen mit vollständigen Adressdaten inklusive Vor- und Zuname, Anschrift, Telefon-/Mobilnummer und Email Adresse bearbeiten können.
Sie suchen nach der passenden Finanzierung? Wir finden sie!
Als ungebundene Finanzierungsvermittler vergleichen wir über 900 Banken und finden einen optimalen Kredit für Sie.
Sparen Sie Geld und Zeit! Mit Sicherheit günstiger als Ihre Hausbank.
Informieren Sie sich jetzt hier, kostenfrei und unverbindlich über Finanzierungsmöglichkeiten zu dieser Immobilie. Fördermittelberatung inklusive.
Wir freuen uns auf den Kontakt zu Ihnen.
Immotactics GmbH
0671 – 20272030
info@immotactics.de
Grundriss
Grundriss Haus 1, 2. OG
>
>
Grundriss, Haus 2, Garage
>
>
Adresse
55459 Aspisheim
Interessante Orte
Preis- und Lageinformationen
Preistrend für Bestandsimmobilien in Aspisheim