Dieses große, freistehende Haus liegt in einer ruhigen Seitenstraße und wurde 1960 auf einem 317 m² großen Grundstück erbaut. Die Wohnfläche beträgt ca. 184 m², wobei die Bauphasen von 1969 bis 1976 zu einer sinnvollen Erweiterung führten, die heute vielfältige Nutzungsmöglichkeiten ermöglicht. Im Hof befinden sich mehrere Nebengebäude, die später zu Wohnungen umgebaut oder derzeit als Lager- bzw. Werkstattflächen genutzt werden können. Das Grundstück bietet dadurch flexible Optionen für Wohnen, Arbeiten oder Hobbys.
Im Erdgeschoß befindet sich eine großzügige Küche sowie ein einladendes, großes Wohnzimmerbereich, der sich hervorragend für gemeinsame Familienzeiten eignet. Im Wohnzimmer befindet sich ein offener Kamin, der gemütliche Wärme und Atmosphäre spendet. Große Fensterfronten sorgen zudem für helles Tageslicht und eine wohnliche Atmosphäre.
Im Obergeschoss befinden sich Sechs Zimmer, die vielseitige Nutzungsmöglichkeiten bieten – Schlafzimmer, Arbeitszimmer, Gästezimmer oder Kinder-/ Jugendzimmer. Zusätzlich gibt es ein Badezimmer und ein Gäste-WC, was insbesondere bei Mehrgenerationen- oder Mehrparteien-Belegung von Vorteil ist. Zwei der Balkone laden zu entspannenden Außenflächen im Jahresverlauf ein.
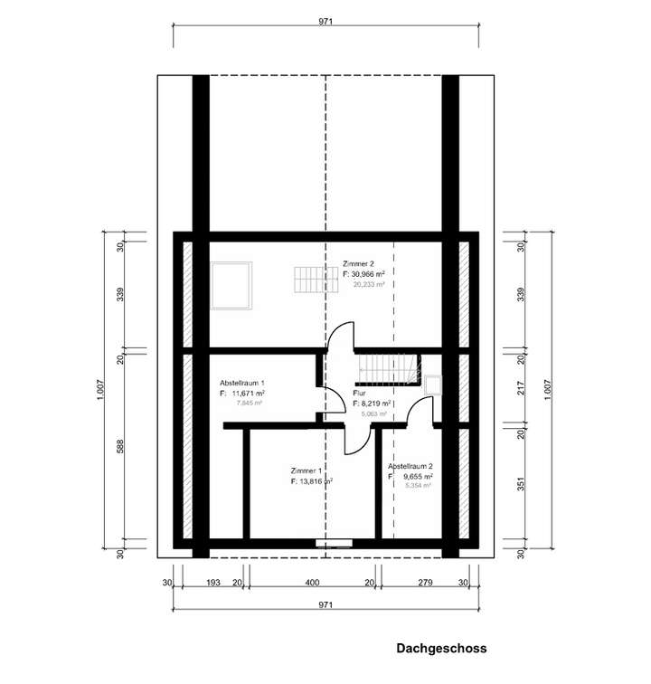
Im Dachgeschoss sind zwei weitere große Zimmer und zwei Abstellkammern schaffen zusätzlichen Stauraum oder flexible Nutzflächen, beispielsweise für Home-Office, Atelier oder Gästeunterbringung.
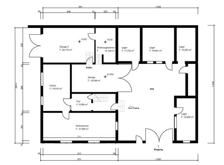
Das Haus ist vollunterkellert mit zusätzlicher Garage, bietet ausreichend Stauraum, Technikräume und Platz für Vorratshaltung. Der Keller lässt sich gut als Abstell- oder Hobbyräume nutzen.
Der großzügige Hofbereich eignet sich ideal für Parkmöglichkeiten, oder als Freifläche für Feiern, Gartenpartys, Events oder Kinderaktivitäten.
Die Nebengebäuden im Hof ermöglichen optionale Nutzungen als Lager, Werkstatt, zusätzliche Wohneinheiten oder Hobbyräume. Flexibilität besteht hier je nach Bedarf, Nutzungsrechten und möglichen Sanierungsmaßnahmen.
Das Haus eignet sich hervorragend für generationsübergreifendes Wohnen, Home-Office, Kleinstbüros oder Handwerksbetriebe, dank der kombinierbaren Innenaufteilung und der vorhandenen Nebengebäude.
Freistehendes Generationenhaus mit großer Hof und Nebengebäude
67582 Mettenheim
Die vollständige Adresse der Immobilie erhalten Sie vom Anbieter.
Auf Karte anzeigen
Die vollständige Adresse der Immobilie erhalten Sie vom Anbieter.
Finanzierungszertifikat
In nur zwei Minuten zu Ihrem persönlichen Finanzierungszertifkat.
Infos
| Haustyp | Einfamilienhaus |
|---|---|
| Etagenzahl | 3 |
| Wohnfläche ca. | 184 m2 |
| Nutzfläche | 144 m2 |
| Grundstücksfläche | 317 m2 |
| Zimmer | 9 |
| Schlafzimmer | 8 |
| Badezimmer | 1 |
| Garage/Stellplatz | Garage |
| Anzahl Garage/Stellplatz | 2 |
Kosten
| Kaufpreis |
269.000 € |
|---|---|
| Provision |
3,57% Der Maklervertrag mit uns und/oder unserem Beauftragten kommt zustande, wenn du unsere Maklertätigkeit in Textform bestätigst. Das kann zum Beispiel durch deine Unterschrift auf dem Suchkundenvertrag oder dem Objekt-Exposé geschehen. Die Courtage beträgt 3,57 % des Kaufpreises inklusive Umsatzsteuer. Sie ist bei notariellem Vertragsabschluss verdient und fällig. |
Finanzierungsrechner:
Kaufpreis:
600.000 €
Eigenkapital:
600.000 €
Monatliche Rate
0 €
Effektiver Jahreszins
0 %
Sollzinsbindung
10 Jahre
Bausubstanz & Energieausweis
| Baujahr | 1960 |
|---|---|
| Letzte Sanierung | 1989 |
| Qualität der Austattung | Einfach |
| Heizungsart | Öl-Heizung |
| Wesentliche Energieträger | Öl |
| Energieausweis | liegt vor |
| Energieausweistyp | Bedarfsausweis |
| Energieverbrauchskennwert | 298,2 kWh/(m²*a) |
| Energieeffizienzklasse | H |
298,2
kWh/(m²*a)
Energieeffizienzklasse H
- A+
- A
- B
- C
- D
- E
- F
- G
- H
- 0
- 25
- 50
- 75
- 100
- 125
- 150
- 175
- 200
- 225
- >250
Beschreibung des Objekts
Lage
Mettenheim liegt im Südwesten von Deutschland, in der Verbandsgemeinde Eich, im Bundesland Rheinland-Pfalz. Es befindet sich im Landkreis Alzey-Worms und ist etwa 10 Kilometer nördlich von Worms entfernt. Die Stadt liegt am Rhein, was die Lage besonders attraktiv macht. Die Umgebung ist geprägt von Weinbergen, Feldern und Wäldern, was Alsheim zu einem schönen Ort für Natur- und Weinliebhaber macht. Die Anbindung an größere Städte ist gut. Über die Autobahn A61 und B9 ist man schnell in Worms, Mainz oder Ludwigshafen. Außerdem gibt es eine Bahnverbindung, die Mettenheim mit anderen Städten verbindet. In Mettenheim gibt es ein Kindergarten. Bäckereien, Apotheken, Ärzte und andere Geschäfte des täglichen Bedarfs befinden sich in nahegelegenen Ortschaften wie Alsheim und Osthofen.
Grundriss
Erdgeschoss
>
>
1.OG
>
>
Dachgeschoss
>
>
Adresse
67582 Mettenheim
Interessante Orte
Preis- und Lageinformationen
Preistrend für Bestandsimmobilien in Mettenheim