Dieses Reihenhaus befindet sich in Kirchheim bei München und liegt in einer schönen, ruhigen Wohngegend.
Das Haus bietet viel Platz, dank guter und sinnvoller Raumaufteilung mit Hobbyraum, überdachter Terrasse, eingewachsenem, uneinsehbarem Garten.
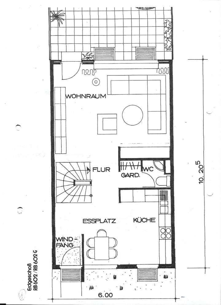
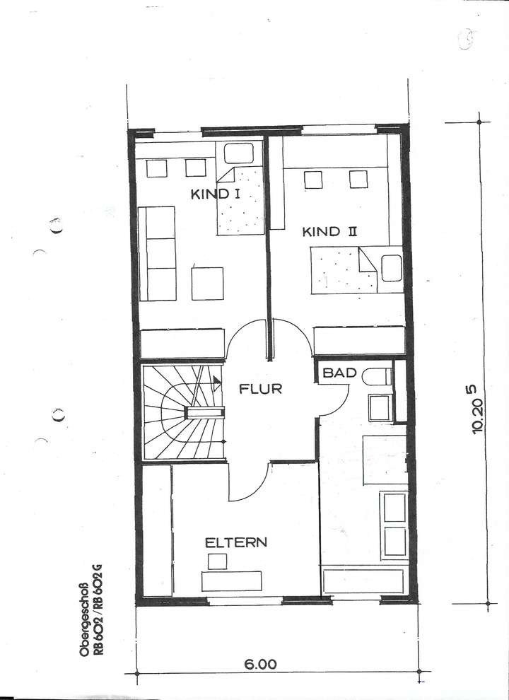
Wie der Originalgrundriss zeigt, teilt sich das Reihenhaus in Keller mit Hobbyraum, Erdgeschoss, Obergeschoss und Dachgeschoss (Studio) auf.
Ausstattung:
- 5 Zimmer (ein großes Wohnzimmer, vier Schlafzimmer)
- Keller mit Hobbyraum
- 1 Gäste WC im EG
- 2 Bäder (Tageslichtbad im OG mit Dusche und Badewanne und Duschbad im DG, jeweils mit Granitböden)
- Große Terrasse mit Überdachung
- Massivholzparkett im Wohnzimmer
- Ausgebautes großzügiges Dachgeschoss mit hoher Decke
Folgende Sanierungsarbeiten wurden durchgeführt:
- Neue Heizungsanlage 2023 (Gasheizung)
- Neue Fenster, 3-fach-Verglasung 2025
- Neue Rollläden in allen Stockwerken, im EG sind die Rollläden elektrisch steuerbar 2025
- Wärmedämmung außen 2025
- Massivholzparkett im Wohnzimmer wurde 2025 neu abgeschliffen und eingelassen
Zu diesem Reihenhaus gehört ein absperrbarer Tiefgaragen-Stellplatz ( 70 Euro monatlich).
Ein zusätzliches Holzhäuschen bietet Stellfläche für die Mülltonnen sowie für Gartengeräte, Fahrräder und sonstigem.
Die Verbrauchskosten (Wasser, Strom, Gas) sind nicht in den Nebenkosten enthalten und werden separat vom Mieter beim jeweilig gewählten Anbieter entrichtet.
Top renoviertes helles Reihenhaus in ruhiger Lage
85551 Kirchheim bei München
Die vollständige Adresse der Immobilie erhalten Sie vom Anbieter.
Auf Karte anzeigen
Die vollständige Adresse der Immobilie erhalten Sie vom Anbieter.
Infos
| Haustyp | Reihenmittelhaus |
|---|---|
| Etagenzahl | 3 |
| Wohnfläche ca. | 134 m2 |
| Nutzfläche | 68 m2 |
| Grundstücksfläche | 141 m2 |
| Bezugsfrei ab | 12.9.2025 |
| Zimmer | 5 |
| Schlafzimmer | 4 |
| Badezimmer | 2 |
| Haustiere | Nein |
| Garage/Stellplatz | Tiefgarage |
| Anzahl Garage/Stellplatz | 1 |
Kosten
| Kaltmiete |
2.550 € |
|---|---|
| Nebenkosten | + 120 € |
| Heizkosten | keine Angabe |
| Gesamtmiete | 2.670 € (zzgl. Heizkosten) |
| Miete für Garage/Stellplatz | 70 € |
| Kaution o. Genossenschaftsanteile | 7.950,00 |
Weiter mieten oder doch kaufen?
Wer in Miete wohnt, überweist dem Vermieter im Laufe der Jahre hohe Summen, die sich
auch in die eigenen vier Wände investieren lassen könnten.
Bausubstanz & Energieausweis
| Baujahr | 1974 |
|---|---|
| Letzte Sanierung | 2025 |
| Objektzustand | Neuwertig |
| Qualität der Austattung | Gehoben |
| Heizungsart | Gas-Heizung |
| Wesentliche Energieträger | Gas |
| Energieausweis | liegt zur Besichtigung vor |
Beschreibung des Objekts
Lage
Die Gemeinde Kirchheim liegt im Osten von München im „Speckgürtel“ und die Anbindung an das Verkehrsnetz ist vielfältig und gut ausgebaut.
Die Umgehungsstraße von München, Autobahn A99 hat für Kirchheim eine eigene Ein- und Ausfahrt und bietet mit dem Autobahnkreuz München-Ost eine schnelle Anbindung in alle Richtungen (Nürnberg, Flughafen, Salzburg).Über die Schnellstraße (St2082) gelangt man direkt auf die A94, vorbei am Messegelände München und ist in 10-15 Minuten auf der Prinzregentenstraße und beim Mittleren Ring. Über die Östliche Umgehungsstraße wird der Norden von München direkt erschlossen (Euro-Industriepark, Olympiazentrum).
Öffentliche Verkehrsmittel:
Die Bushaltestelle befindet sich fußläufig in 300m Entfernung und bedient
1. Bus zur S-Bahn S2 Heimstetten (ca. 20 Minuten zum Marienplatz)
2. Bus in andere Richtungen:
a. zur S-Bahn S2 Riem
b. zur U-Bahn U2 Messestadt West
c. zum Messegelände und Riem Arkaden (großes Einkaufszentrum)
Kirchheim darf als idealer Wohnort auch für Berufspendler bezeichnet werden.
Vorhanden sind:
- Alle Geschäfte des täglichen Bedarfs (fußläufig)
- Größeres Einkaufszentrum in Heimstetten (Räter-Einkaufszentrum)
- Viele Kinderspielplätze
- Mehrere Kindergärten (fußläufig)
- Grundschulen und Horte (fußläufig)
- Mittelschule
- Realschule in der Nachbargemeinde Aschheim
- Gymnasium, neu gebaut
- Gute ärztliche Versorgung
- Diverse Restaurants und Cafés
- Neugebautes Bürgerhaus mit vielfältigem hochwertigem Kulturangebot
- Sport- und diverse Vereine
- Golfanlage im Nachbarort Aschheim
- Heimstettner Badesee „Fidschi“ mit grünen Liegewiesen, Spielplätzen und Biergarten
(Rad 10 Min.)
- Wasserski-Park „Roberto-Beach“ in Aschheim
- Ferner kann fußläufig (ca. 10 Minuten) das Gelände der Landesgartenschau 2024 erreicht werden, welches zum Spaziergang und Erholung einlädt und die Ortsteile Kirchheim und Heimstetten verbindet.
Sonstige Angaben
Alles in allem ein lebens- und liebenswerter Ort mit vielseitigem Angebot für Familien. In Bezug auf Freizeitaktivitäten für Groß und Klein, sehr gute Infrastruktur und Fahrten zum Arbeitsort und einem schönen Haus, das viel Platz bietet.Wenn Sie das Haus in dieser attraktiven Umgebung kennenlernen möchten, schreiben Sie gerne eine Mail. Makleranfragen sind ausdrücklich nicht erwünscht!
Grundriss
1 Grundriss EG
>
>
2 Grundriss 1 OG
>
>
3 Grundriss DG
>
>
4 Grundriss Keller
>
>
Adresse
85551 Kirchheim bei München
Interessante Orte
Preis- und Lageinformationen
Preistrend für Bestandsimmobilien in Kirchheim bei München