Wir freuen uns, Ihnen eine wunderschöne Doppelhaushälfte in Stein-Bockenheim präsentieren zu dürfen, die ganz nach Ihren Wünschen und Vorstellungen projektiert wird. Mit einer großzügigen Wohnfläche von 169 m², verteilt auf 3 Etagen, bietet dieses Haus ausreichend Platz für die gesamte Familie. Die 4 Zimmer, darunter 4 Schlafzimmer, laden zur individuellen Gestaltung ein und bieten Raum für Ihre kreativen Ideen. Das moderne Badezimmer ist sowohl mit einer Dusche als auch mit einer Wanne ausgestattet, zusätzlich steht Ihnen ein Gäste-WC zur Verfügung. Diese durchdachte Raumaufteilung gewährleistet nicht nur Funktionalität, sondern auch ein hohes Maß an Lebensqualität.
Das Baukonzept basiert auf Nachhaltigkeit und Energieeffizienz: Die Doppelhaushälfte entspricht dem KFW55 Standard und wird mit einer umweltfreundlichen Luft-Wasser-Wärmepumpe beheizt. Diese Art der Heizung sorgt nicht nur für ein gutes Raumklima, sondern schont auch Ihren Geldbeutel durch niedrige Energiekosten.
Ihr Traumhaus in Stein-Bockenheim: Individuell geplante Doppelhaushälfte mit viel Platz
55599 Stein-Bockenheim
Die vollständige Adresse der Immobilie erhalten Sie vom Anbieter.
Auf Karte anzeigen
Die vollständige Adresse der Immobilie erhalten Sie vom Anbieter.
Finanzierungszertifikat
In nur zwei Minuten zu Ihrem persönlichen Finanzierungszertifkat.
Infos
| Haustyp | Doppelhaushaelfte |
|---|---|
| Etagenzahl | 3 |
| Wohnfläche ca. | 169 m2 |
| Grundstücksfläche | 420 m2 |
| Zimmer | 4 |
| Schlafzimmer | 4 |
| Badezimmer | 1 |
| Garage/Stellplatz | Garage |
| Anzahl Garage/Stellplatz | 1 |
Kosten
| Kaufpreis |
444.882 € |
|---|---|
| Preis für Garage/Stellplatz | 8.000 € |
Finanzierungsrechner:
Kaufpreis:
600.000 €
Eigenkapital:
600.000 €
Monatliche Rate
0 €
Effektiver Jahreszins
0 %
Sollzinsbindung
10 Jahre
Bausubstanz & Energieausweis
| Baujahr | unbekannt |
|---|---|
| Bauphase | Haus in Planung (projektiert) |
| Heizungsart | Wärmepumpe |
Beschreibung des Objekts
Ausstattung
Zu den Highlights zählen die hochwertigen Bodenbeläge aus Fliesen und Laminat. Diese Materialien sind nicht nur pflegeleicht, sondern sorgen auch für ein angenehmes Wohngefühl. Fliesen sind ideal für feuchte Räume wie das Badezimmer, während Laminat in Wohnräumen eine warme Atmosphäre schafft.
Ein weiterer Vorteil der Ausstattung sind die 3-fach verglasten Fenster mit Aluminiumlamellen, die neben einer optimalen Wärmedämmung auch einen hervorragenden Schallschutz bieten.
Zusätzlich gehören zu diesem Haus eine energieeffiziente Wand, eine Fußbodenheizung, eine Be- und Entlüftungsanlage sowie eine Echtholztreppe.
Lage
Das Grundstück von 420 m² befindet sich in einer ruhigen Wohngegend in Stein-Bockenheim, die Ihnen eine angenehme Nachbarschaft und eine hohe Lebensqualität bietet. Die Infrastruktur ist hervorragend: Diverse Einkaufsmöglichkeiten, Schulen und Kindergärten sind in unmittelbarer Nähe.
Für Ihre Freizeitgestaltung stehen Ihnen zahlreiche Möglichkeiten zur Verfügung, sei es im Grünen, in den umliegenden Parks oder bei Aktivitäten in der Umgebung.
Sonstige Angaben
allkauf heißt: Maximale Sicherheit, kurze Lieferzeiten, garantierte Fertigstellung.
Zu allen Häusern gehört:
- Energieeffizienzwand
- Echtholztreppe
- Luft-Wasser-Wärmepumpe
- Fußbodenheizung
- Be- und Entlüftungsanlage
- 3-fach verglaste Fenster inklusive Rollläden mit Aluminiumlamellen
- Lichte Raumhöhe 2,75 m
+ inkl. erhöhten Fenstern und Türen
- TOXPROOF Gütesiegel - schadstoffgeprüfter Materialien
- Just-in-Time-Lieferungen
- Bemustern im eigenen Bemusterungszentrum mit Markenprodukten
Ob Einfamilienhaus, Doppelhaus oder Bungalow - bei allkauf finden Sie Ihr Traumhaus!
Vereinbaren Sie noch heute Ihren Termin zur Planung Ihres allkauf Traumhauses.
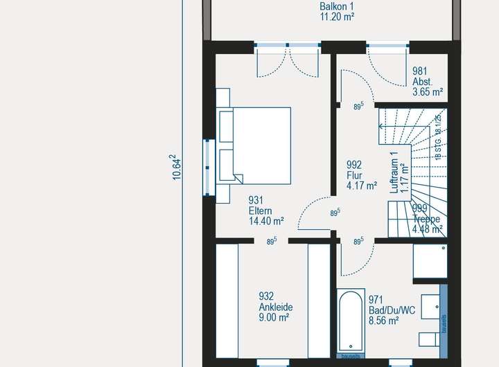
Grundriss
Grundriss
>
>
Grundriss
>
>
Grundriss
>
>
Adresse
55599 Stein-Bockenheim
Interessante Orte
Preis- und Lageinformationen
Preistrend für Bestandsimmobilien in Stein-Bockenheim