Das Grundstück zur Neubebauung mit 2 Einfamilienhäusern liegt im Ortskern des gut 8.000 Einwohner zählenden Marktes Reichertshofen, zum Landkreis Pfaffenhofen an der Ilm gehörend. Reichertshofen bietet seinen Einwohnern so ziemlich alles, was man von einer modernen großen Gemeinde erwarten darf: gute Einkaufsmöglichkeiten und Bildungseinrichtungen, gute ärztliche Versorgung, eine ausgezeichnete Verkehrsanbindung, sowohl öffentlich als auch individual, und nicht zuletzt ein umfangreiches Angebot an Sporteinrichtungen und Möglichkeiten zur Freizeitgestaltung.
Die Lage im Ort ist schlicht genial: mittendrin, und dabei erstaunlich ruhig. Durch den Längscharakter des 665 m² großen Grundstücks bietet sich die Möglichkeit, das Grundstück über 2 Straßen zu erreichen: im Osten führt die Herrnstraße entlang, und im Westen befindet sich die Gartenstraße.
Aktuell ist das Grundstück mit zwei Altgebäuden bebaut, die gemäß genehmigtem Vorbescheid abgebrochen werden dürfen. Die Ersatzbauten dürfen gleiches Ausmaß haben, bzw. darf das westliche Haus etwas höher werden, im Angleich an das auf dem südlich anschließenden Grundstück befindliche Haus. Unser Exposé enthält die wesentlichen Teile der genehmigungsfähigen Planung.
Das Anwesen ist vermietet. Nachdem 2 Häuser gebaut werden dürfen, kann den Mietern u.U. das Weiterwohnen in einem der beiden Häuser angeboten werden, mit Nutzung eines Teils des großen Westgartens.
Grundstück im Ortszentrum von Reichertshofen, für 2 Einfamilienhäuser plus Kfz-Stellplätze
85084 Reichertshofen
Die vollständige Adresse der Immobilie erhalten Sie vom Anbieter.
Auf Karte anzeigen
Die vollständige Adresse der Immobilie erhalten Sie vom Anbieter.
Finanzierungszertifikat
In nur zwei Minuten zu Ihrem persönlichen Finanzierungszertifkat.
Infos
| Vermarktungsart | Kaufen |
|---|---|
| Grundstücksfläche | 665 m2 |
| Erschließung | Erschlossen |
| Empfohlene Nutzung | Einfamilienhaus |
| Bebaubar nach | wie Nachbarbebauung |
| Verfügbar ab | nach Vereinbarung |
Kosten
| Miete pro Jahr |
425.000 € |
|---|---|
| Provision |
2,38 % inkl. MwSt. Käuferprovision 2,38 % Käuferprovision inkl. MwSt., verdient und fällig mit Beurkundung des notariellen Kaufvertrages. Der Makler hat einen provisionspflichtigen Maklervertrag mit dem Verkäufer in gleicher Höhe abgeschlossen. |
Finanzierungsrechner:
Kaufpreis:
600.000 €
Eigenkapital:
600.000 €
Monatliche Rate
0 €
Effektiver Jahreszins
0 %
Sollzinsbindung
10 Jahre
Beschreibung des Objekts
Lage
Die Lage des Anwesens kann als Toplage bezeichnet werden, gleichermaßen ruhig und dabei im Ortskern liegend. Zudem sehr verkehrsgünstig: die Bundesstraßen B13 und B300 sind jeweils in wenigen Minuten zu erreichen. Über die B13 ist Ingolstadt nur wenige Autominuten entfernt, und über die B300 sind es nur rund 4,5 Kilometer zur A9, Anschlussstelle 'Langenbruck', mit allen Fernver-bindungen, oder, in der anderen Richtung, in Kürze nach Schrobenhausen, Aichach und Augsburg.
Sollten Sie öffentliche Verkehrsmittel bevorzugen, so bietet sich die Bahn an, da der Bahnhof der großen Linie München-Nürnberg sich in Baar-Ebenhausen in nur rund 3 km Entfernung befindet.
Für einen rundweg bequemen Alltag sorgen unter anderem mehrere Supermärkte, eine Bäckerei, diverse Cafés und Restaurants, 2 Bankfilialen sowie im engen Radius weitere Annehmlichkeiten.
Familien schätzen die Nähe von Kindergarten, Grund- und Mittelschule, sowie mehreren Spielplätzen.
Auch die Freizeitmöglichkeiten kommen in Reichertshofen nicht zu kurz, seien es Sportplätze, Skaterbahn, Basketballplatz oder Badeseen. Und mit den Kindern zur nur 150 Meter entfernten Eisdiele schlendern, dürfte immer 'ein Ausweg' sein.
Sonstige Angaben
Der Kaufpreis beträgt EUR 425.000,-.
Beim Abschluss des notariellen Kaufvertrages stellen wir dem Käufer eine Nachweis- und/oder Vermittlungsprovision in Höhe von 2,38 % inkl. ges. MwSt. in Rechnung.
Wir haben einen provisionspflichtigen Maklervertrag mit dem Verkäufer in gleicher Höhe geschlossen.
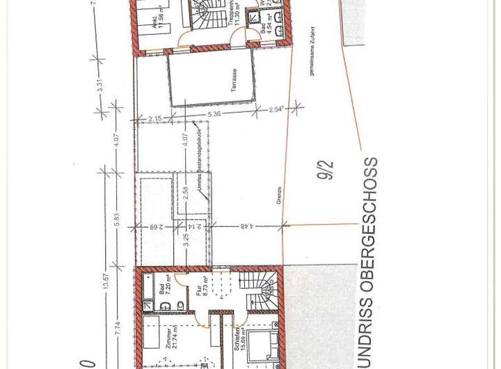
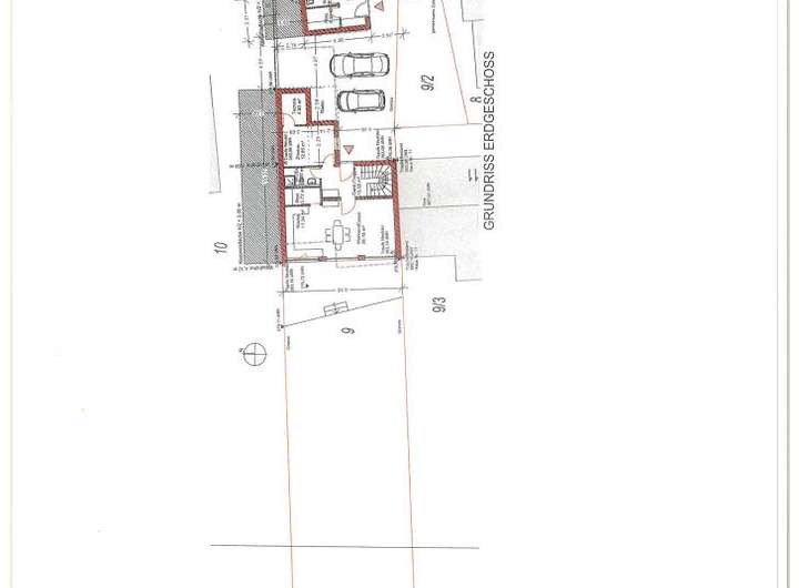
Grundriss
Grundstück im Ganzen
>
>
Planung EG
>
>
Planung OG
>
>
Planung DG
>
>
Planung Schnitt
>
>