Willkommen in einer der sonnigsten Lagen von Scheyern! Dieses charmante Einfamilienhaus aus den 1930er Jahren begeistert mit stilvollem Flair, großzügiger Wohnfläche von ca. 150 m² und einem unvergleichlichen Grundstück von ca. 1.200 m² in traumhafter Südhanglage mit Blick über ganz Scheyern.
Das Haus wurde liebevoll gepflegt und bietet zahlreiche Highlights: Ein neues Dach mit Außendämmung, Holzdecken, eine mögliche Einliegerwohnung mit separatem Eingang im Untergeschoss sowie ein weitläufiger Garten, der seinesgleichen sucht. Hier erwarten Sie ein Teich, ein Gartenhaus mit Gewächshaus, ein Grillplatz mit Ausblick, ein Brunnen (Anschluss ans öffentliche Wassernetz) zur Bewässerung und viel Platz zur Entfaltung.
Ob als Rückzugsort für die Familie oder zur Kombination von Wohnen und Arbeiten – dieses Zuhause lässt Ihnen viele Optionen offen. Auch ein Neubau gemäß Bebauungsplan ist möglich. Oder in Absprache mit dem Bauamt wäre eine Grundstücksteilung denkbar.
Lassen Sie sich vom besonderen Charakter dieses Anwesens verzaubern. Vereinbaren Sie jetzt Ihren Besichtigungstermin oder fordern Sie das ausführliche Exposé an – wir freuen uns auf Ihre Anfrage!
Sonnenlage in Scheyern
85298 Scheyern
Die vollständige Adresse der Immobilie erhalten Sie vom Anbieter.
Auf Karte anzeigen
Die vollständige Adresse der Immobilie erhalten Sie vom Anbieter.
Finanzierungszertifikat
In nur zwei Minuten zu Ihrem persönlichen Finanzierungszertifkat.
Infos
| Haustyp | Einfamilienhaus |
|---|---|
| Etagenzahl | 3 |
| Wohnfläche ca. | 150 m2 |
| Nutzfläche | 50 m2 |
| Grundstücksfläche | 1.200 m2 |
| Zimmer | 6 |
| Schlafzimmer | 5 |
| Badezimmer | 2 |
| Garage/Stellplatz | Garage |
| Anzahl Garage/Stellplatz | 2 |
Kosten
| Kaufpreis |
629.000 € |
|---|---|
| Provision |
3,57% |
Finanzierungsrechner:
Kaufpreis:
600.000 €
Eigenkapital:
600.000 €
Monatliche Rate
0 €
Effektiver Jahreszins
0 %
Sollzinsbindung
10 Jahre
Bausubstanz & Energieausweis
| Baujahr | 1936 |
|---|---|
| Objektzustand | Gepflegt |
| Qualität der Austattung | Einfach |
| Heizungsart | Ofenheizung |
| Wesentliche Energieträger | Öl |
Beschreibung des Objekts
Ausstattung
*ca. 150 m² Wohnfläche
*Baujahr ca. 1936
*Neues Dach mit Außendämmung
*Holzecken, stilvolle Einrichtung
*Einliegerwohnung im UG mit eigenem Zugang möglich
*Riesiger Garten mit Teich, Brunnen, Gartenhaus und Platz zum Grillen
*Doppelgarage und Werkstatt
*Einzelöfen mit zentralem Öltank
*Grundstück ca. 1.200 m²
*Grundstücksteilung denkbar
*Südhanglage mit Panoramablick
Lage
Das Haus befindet sich in bevorzugter, sonniger Höhenlage von Scheyern – versteckt gelegen am Ende einer Sackgasse und nahezu uneinsehbar. Die Südhanglage bietet nicht nur Privatsphäre, sondern auch einen atemberaubenden Ausblick über das grüne Umland. Trotz der ruhigen Umgebung ist die Anbindung an das Zentrum sowie an die umliegenden Städte ideal. Einkaufsmöglichkeiten, Schulen, Ärzte und öffentliche Verkehrsmittel befinden sich in der Nähe.
Sonstige Angaben
Alle Angaben sind ohne Gewähr und basieren ausschließlich auf Informationen, die uns von unserem Auftraggeber übermittelt wurden. Wir übernehmen keine Gewähr für die Vollständigkeit, Richtigkeit und Aktualität dieser Angaben. Irrtum und Zwischenverkauf oder Zwischenvermietung vorbehalten. Aufgrund des Geldwäschegesetzes (GwG) sind wir verpflichtet, spätestens bei Kaufinteresse Ihre Personalien zu überprüfen und dies auch nachzuweisen. Bitte haben Sie daher Verständnis, dass wir eine Kopie Ihres Personalausweises anfertigen müssen, sowie sämtliche Daten werden durch uns selbstverständlich streng vertraulich behandelt. Erfüllungsort für alle Verpflichtungen des Kunden ist der Sitz unserer Firma. Ist der Kunde Kaufmann im Sinne des HGB, ist Gerichtsstand der Sitz unserer Firma.
Dieses Exposé ist eine Vorabinformation und wurde mit Unterstützung durch KI erstellt. Als Rechtsgrundlage gilt allein der notariell abgeschlossene Kaufvertrag.
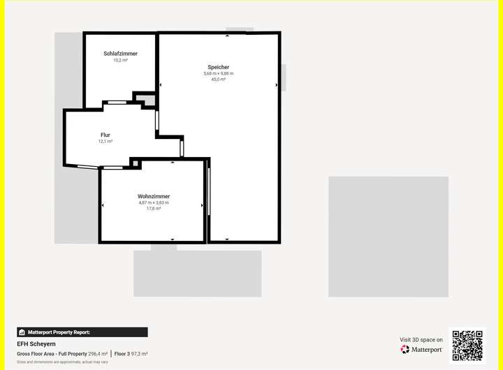
Grundriss
UG
>
>
EG
>
>
DG
>
>
Adresse
85298 Scheyern
Interessante Orte
Preis- und Lageinformationen
Preistrend für Bestandsimmobilien in Scheyern