Durch den jetzigen Eigentümer wurde 2015 mit der behutsamen und original getreuen Sanierung, unter Berücksichtigung auch sensibler Denkmalschutz-Auflagen, begonnen. Welche nunmehr vor Kurzem abgeschlossen wurde. Hierbei wurden viele Bauteile, wie zum Beispiel die ca. 550 Jahre alten Deckenbalken, ebenso die teilweise vorhandenen Dielen im ersten Obergeschoss, welche von unten auch als Decke zu sehen sind, erhalten. Das Besondere an diesem Objekt ist die ruhige Lage am Ende eines Ganges, mit einem öffentlichen Teil, welcher durchaus von den Bewohnern als Platz zum Verweilen mit Bänken und Tischen genutzt werden kann. Sie betreten das Erdgeschoss durch die restaurierte Trense, welche sich durch eine großzügige Deckenhöhe auszeichnet. Im linken hinteren Bereich der ehemaligen Feuerstelle wurde jetzt das Gäste-WC untergebracht. Gleich links daneben befindet sich das gemütliche Wohnzimmer. In der Dornse selbst befindet sich die Einbauküche, rechts daneben das gemütliche Esszimmer mit tollem Blick in den Gang entlang bis zur Obertrave. Über die liebevoll restaurierte hunderte Jahre alte Treppe gelangen Sie in das erste Obergeschoss, wobei immer darauf hinzuweisen ist, dass der Kopf eingezogen werden sollte, da teilweise die Deckenhöhen nicht den heutigen Normen entsprechen. Im ersten Obergeschoss finden Sie ein modernes Vollbad mit großzügiger Dusche, Badewanne, Doppelwaschbecken und Fußbodenheizung. Am kleinen Einbauschrank vorbei gelangen Sie in das Schlafzimmer, von welchem aus noch ein kleiner Spitzboden über eine Leiter zu erreichen ist, welcher als Not-Schlafplatz oder zum Abstellen genutzt werden kann. Dieses Ganghaus zeichnet sich außerordentlich durch die gute Belichtung (Ausrichtung nach Süden) und durch die vielen kleinen Fenster und den damit verbundenen Lichtachsen aus. Über den Gang finden Sie in dem zum Objekt gehörenden Abstellschuppen. Hier eine moderne Waschmaschine und einen Trockner vorhanden.
Möbliertes Wohnen auf Zeit im Domviertel
23552 Lübeck
Die vollständige Adresse der Immobilie erhalten Sie vom Anbieter.
Auf Karte anzeigen
Die vollständige Adresse der Immobilie erhalten Sie vom Anbieter.
Infos
Haustyp | Reihenmittelhaus |
---|---|
Etagenzahl | 2 |
Wohnfläche ca. | 70 m2 |
Nutzfläche | 8 m2 |
Grundstücksfläche | 60 m2 |
Bezugsfrei ab | 01.11.2025 |
Zimmer | 3 |
Schlafzimmer | 1 |
Badezimmer | 1 |
Haustiere | Nein |
Kosten
Kaltmiete |
1.400 € |
---|---|
Nebenkosten | + 150 € |
Heizkosten | + 120 € |
Gesamtmiete | 1.670 € |
Weiter mieten oder doch kaufen?
Wer in Miete wohnt, überweist dem Vermieter im Laufe der Jahre hohe Summen, die sich
auch in die eigenen vier Wände investieren lassen könnten.
Bausubstanz & Energieausweis
Baujahr | 1450 |
---|---|
Letzte Sanierung | 2015 |
Objektzustand | Saniert |
Qualität der Austattung | Gehoben |
Heizungsart | Fußbodenheizung |
Wesentliche Energieträger | Gas |
Energieausweis | laut Gesetz nicht erforderlich |
Beschreibung des Objekts
Ausstattung
Die exklusive Ausstattung des Ganghauses auf der Lübecker Altstadtinsel lässt kaum Wünsche offen. Bei der Einrichtung wurde besonderen Wert auf gehobenes Ambiente und die Verwendung hochwertiger Materialien gelegt. - 3 Zi., 2 Etagen zzgl. Spitzboden, Gäste-WC, Vollbad, Schuppen, ca. 65m² Wfl./70m²Nfl. - zwei Schlafplätze im Wohnzimmer auf der Schlafcouch 1,6 × 2 Meter - Esstisch mit Platz für 4 Personen - Einbauküche mit Geschirrspüler, Herd, Kühlschrank, Mircowelle - Geschirr für sechs Personen - Obergeschoss mit Vollbad mit Dusche und Wanne - Einbau – Kleiderschrank - Schlafzimmer im Obergeschoß für zwei Personen im geräumigen Boxspring Bett 2 × 1,8 m - begehbarer Kleiderschrank - Reisekinderbett - Föhn, Bügeleisen - Waschmaschine und Trockner - Satellitenfernsehen international - DVD-Abspielgerät - Internet Highspeed, WLAN - Telefon Anschluss - im gesamten Erdgeschoss Fußbodenheizung mit Eichenparkett - historische Treppe - Parkbank vor dem Haus mit zusätzlich einem Bistrotisch und zwei Stühlen - öffentliches Parkhaus 400Meter entfernt - „Nespresso“ Kaffee-Maschine vorhanden (bitte bei Bedarf Kapseln selbst mitbringen) Die Kosten für Strom sind direkt mit dem Versorger abzurechnen. Die Kaution beträgt 3 Nettomieten.
Lage
Am Rande der Lübecker Altstadt gelegen, ist der Malerwinkel ein beschauliches und verträumtes Plätzchen. Wenn man nicht genau wüßte, dass man sich in der Stadt befände, könnte man annehmen in einem kleinen norddeutschen Dorf am entspannten Alltagsleben teilzunehmen. Unterbrochen wird dieser Rhythmus nur durch die in Lübeck gern gesehenen Touristen aus aller Welt. Zwischen der eindrucksvollen Wallanlage und der Trave sieht man oft Künstler aus aller Herren Länder, die den einmaligen und unverstellten Blick auf die Lübecker Altstadt auf Leinwand bannen wollen. Aber auch für alle Anderen ist der Lübecker Malerwinkel ein herrliches Stückchen Erde, auf dem es sich gut entspannen lässt. Immer mehr, vor allem jungen Bewohner, nutzen das Ufer besonders in den sonnigen Monaten zum Sonnen, Grillen und Baden. Vom kleinen Park an der Trave kann man auf das gegenüberliegende Ufer und die Altstadt mit der engen mittelalterlichen Bebauung schauen. Der Blick schweift immer höher, bis zu den Türmen, dem DOM zu Lübeck und den anderen beeindruckenden Stadtkirchen. Die hohen Türme von St. Marien, St. Petri und des Doms bilden einen beeindruckenden Kontrast zu den alten Speicheranlagen und den kleinen, bescheidenen Häusern am Ufer der Trave. Flaniert man an der kleinen Straße entlang der Trave weiter, kommt man an liebevoll restaurierten alten Bürgerhäusern vorbei, die wie frisch gestrichen aussehen. Viele Restaurants laden zum Verweilen bei einer traumhaften Aussicht ein. Von diesem möbliertem Ganghaus gelangen Sie in relativ kurzer Fahrzeit an den Ostseestrand in Timmendorf, Travemünde und Scharbeutz, aber auch die Naturstrände in Mecklenburg Vorpommern sind in nur 30min Fahrzeit zu erreichen. Die öffentliche Verkehrsanbindung über den Lübecker Hauptbahnhof nach Hamburg ist im Stundentakt gewährleistet und in nur 45min können Sie in der City von Hamburg einkaufen oder Sehenswürdigkeiten besichtigen. Das Objekt liegt im Herzen der Lübecker Innenstadt. Lübeck ist Oberzentrum, kreisfreie, zweitgrößte Stadt des nördlichsten Bundeslandes mit ca. 215.000 Einwohnern. Die überörtliche Erreichbarkeit ist durch die Anbindung an den regionalen Wirtschaftsraum und die überregionalen Wirtschaftszentren sehr gut und durch den Anschluss an die Ostseeautobahn A 20 optimiert worden. Für den Individualverkehr sind der direkte Anschluss an die BAB1 (Oldenburg-Lübeck-Hamburg-Rhein/Ruhr) sowie die BAB 20 (Anbindung an die Ostsee) von Bedeutung. Ergänzt wird dies durch sechs Bundesstraßen (u.a. Richtung Kiel, Schwerin). Der Innenstadtbereich mit seinen attraktiven Fußgängerzonen in historischem Umfeld sowie das Wahrzeichen Lübecks – das Holstentor – bieten eine hohe Aufenthaltsqualität für Besucher und Bewohner, und sind in wenigen Gehminuten zu erreichen. Das Ganghaus liegt in einer ruhigen Seitenstraße im Wohngebiet des Domviertels `An der Obertrave` in einer sehr guten und bevorzugten Wohnlage (Malerwinkel). Viele Freiberufler und Selbstständige haben in unmittelbarer Umgebung Fuß gefasst und die idyllische Lage schätzen und lieben gelernt.
Sonstige Angaben
Wichtig !! Bei diesem besonders schönen Ganghaus handelt es sich um ein möbliertes Haus. Die Mietvertragslaufzeit ist auf max. 24 Monate begrenzt !
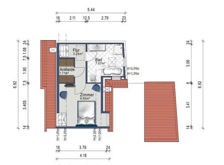
Grundriss
Erdgeschoss
>

Dachgeschoss
>

Adresse
23552 Lübeck
Interessante Orte
Preis- und Lageinformationen
Preistrend für Bestandsimmobilien in Innenstadt