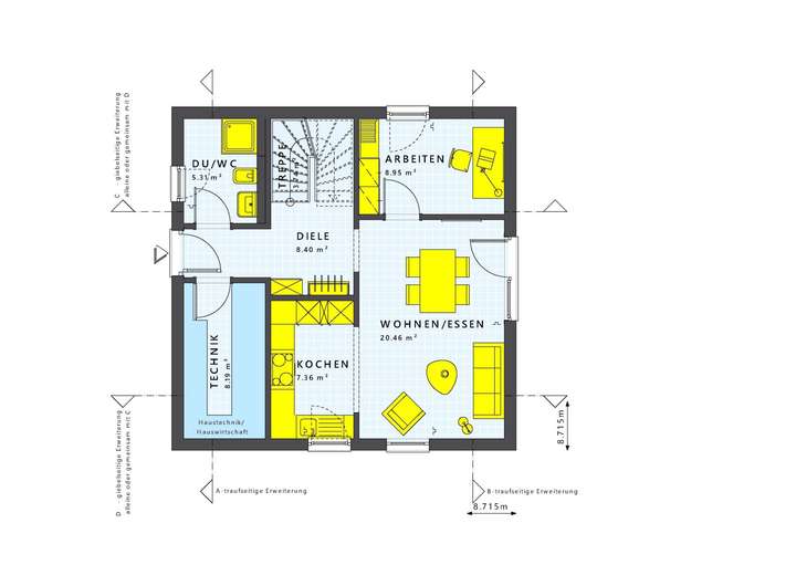
Herzlich willkommen in deinem zukünftigen Zuhause in Algermissen, einem Ort, der nicht nur durch seine ruhige Lage besticht, sondern auch durch die Flexibilität, die dir LivingHaus bietet. Dieses großzügige Einfamilienhaus mit 124 m² Wohnfläche und 5 Zimmern, darunter 3 gemütliche Schlafzimmer und ein modernes Badezimmer, wird ganz nach deinen Wünschen projektiert. Die Architektur besticht durch ein klassisches Satteldach mit einer Neigung von 38 Grad, das nicht nur optisch ansprechend ist, sondern auch genug Platz für einen geräumigen Dachboden bietet. Der einladende Erker oder Giebel erweitert deinen Wohnbereich und lässt viel Tageslicht in die Räume strömen. Die bodentiefen Fenster sorgen für eine helle, freundliche Atmosphäre und verbinden deine Innenräume harmonisch mit dem großzügigen Garten auf einem 640 m² großen Grundstück. LivingHaus bietet dir nicht nur ein modernes Zuhause, sondern auch zahlreiche zusätzliche Leistungen, die dein Bauprojekt zu einem stressfreien Erlebnis machen. Beginnen wir mit der Traumküche von LivingHaus, die individuell auf deinen Grundriss abgestimmt wird. Sie überzeugt durch modernste Technik, praktische Stauraumlösungen und ein ästhetisches Design. So kannst du direkt nach dem Einzug mit dem Kochen beginnen. Mit dem Living Haus Bau-Cockpit hast du stets den Überblick über dein Bauvorhaben. Alle wichtigen Dokumente und der Zeitplan sind digital und einfach zugänglich, sodass du jederzeit informiert bist. Das I-KON-System für intelligentes Bauen kombiniert Nachhaltigkeit mit modernster Technik. Dein neues Zuhause wird energieeffizient und umweltfreundlich gestaltet, sodass du nicht nur einen hohen Wohnkomfort, sondern auch einen geringen Energieverbrauch genießen kannst. Die Finanzierung deines Traumhauses wird durch das Zuhause-Darlehen erleichtert, das dir bis zu 250.000 EUR zu besonders günstigen Konditionen bietet. Zudem erhältst du mit dem Zuhause-Paket eine hochwertige Grundausstattung, die alle notwendigen Materialien und Ausstattungen umfasst. Und wenn du gerne selbst Hand anlegen möchtest, steht dir unser DIY-Ausbau-Coaching zur Verfügung, bei dem dir Experten in nur drei Tagen zeigen, wie du den Innenausbau selbst durchführen kannst - ganz ohne Stress und mit wertvollen Tipps. All diese Leistungen machen dein Bauvorhaben zu einem durchdachten Gesamtkonzept, das auf deine individuellen Bedürfnisse zugeschnitten ist. Mit LivingHaus hast du die Möglichkeit, dein Traumhaus genau so zu gestalten, wie du es dir immer gewünscht hast.
Dein individuelles Traumhaus in Algermissen - Wohnen nach deinen Wünschen mit LivingHaus
31191 Algermissen
Die vollständige Adresse der Immobilie erhalten Sie vom Anbieter.
Auf Karte anzeigen
Die vollständige Adresse der Immobilie erhalten Sie vom Anbieter.

Finanzierungszertifikat
In nur zwei Minuten zu Ihrem persönlichen Finanzierungszertifkat.
Infos
Haustyp | Einfamilienhaus |
---|---|
Etagenzahl | 2 |
Wohnfläche ca. | 124 m2 |
Nutzfläche | 124 m2 |
Grundstücksfläche | 640 m2 |
Zimmer | 5 |
Schlafzimmer | 3 |
Badezimmer | 1 |
Kosten
Kaufpreis |
466.468 € |
---|
Finanzierungsrechner:
Kaufpreis:
600.000 €
Eigenkapital:
600.000 €
Monatliche Rate
0 €
Effektiver Jahreszins
0 %
Sollzinsbindung
10 Jahre
Bausubstanz & Energieausweis
Baujahr | 2026 |
---|---|
Bauphase | Haus in Planung (projektiert) |
Qualität der Austattung | Gehoben |
Energieausweis | liegt vor |
Energieausweistyp | Bedarfsausweis |
Energieverbrauchskennwert | 18,0 kWh/(m²*a) |
Energieeffizienzklasse | A+ |
18,0
kWh/(m²*a)
Energieeffizienzklasse A+
- A+
- A
- B
- C
- D
- E
- F
- G
- H
- 0
- 25
- 50
- 75
- 100
- 125
- 150
- 175
- 200
- 225
- >250
Beschreibung des Objekts
Ausstattung
Dein zukünftiges Zuhause enthält eine hochwertige Grundausstattung, die moderne Böden, edle Türen und stilvolle Sanitäranlagen umfasst. Die Innenausbaumaterialien sind optimal aufeinander abgestimmt und werden fix und fertig geliefert, sodass du sofort einziehen kannst. Die hochwertige Traumküche von Living Haus wird genau auf deinen Grundriss angepasst und überzeugt durch modernste Technik und clevere Stauraumlösungen. Die innovative I-KON-Lösung sorgt für ein nachhaltiges und energieeffizientes Wohnen, während das Zuhause-Paket alle wichtigen Materialien für den Innenausbau bereitstellt. Zusätzlich erhältst du Unterstützung durch das DIY-Ausbau-Coaching, sodass du zum Profi in deinem eigenen Zuhause werden kannst. Dein individuelles Traumhaus - genau wie du es willst!
Lage
Algermissen ist ein idealer Wohnort für Familien, Naturliebhaber und Pendler. In der Umgebung findest du zahlreiche Bildungseinrichtungen, darunter Kindergärten, die von Eltern sehr geschätzt werden und eine hervorragende Betreuung bieten. Die Grundschule Algermissen hat eine sehr gute Bewertung von 4,5 Sternen und bietet eine hervorragende Lernumgebung für die Kleinen. Für die größeren Schüler gibt es weiterführende Schulen in den benachbarten Orten, die bequem mit dem Fahrrad oder dem Auto erreichbar sind. Supermärkte wie der EDEKA-Markt und ALDI sind nur wenige Minuten entfernt und bieten alles, was du für den täglichen Bedarf benötigst. Auch verschiedene Einzelhändler und Boutiquen sorgen dafür, dass du stets bestens versorgt bist. Die medizinische Versorgung ist durch mehrere Arztpraxen und Apotheken in der Nähe sichergestellt. Die gute Anbindung des öffentlichen Personennahverkehrs sorgt dafür, dass du schnell und unkompliziert in die umliegenden Städte gelangst. Die Autobahn A7 ist ebenfalls in kurzer Zeit erreichbar, was Pendlern eine komfortable Anreise zu ihrem Arbeitsplatz ermöglicht. Freizeitangebote sind in Algermissen und der Umgebung reichlich vorhanden. Du kannst die Natur bei ausgedehnten Spaziergängen oder Radtouren erkunden, während verschiedene Sporteinrichtungen dir die Möglichkeit bieten, aktiv zu bleiben. Einheimische Vereine und regelmäßige Veranstaltungen schaffen eine lebendige Gemeinschaft, die das Leben in Algermissen besonders macht. Hier findest du alles, was du für ein erfülltes Leben benötigst.
Adresse
31191 Algermissen
Interessante Orte
Preis- und Lageinformationen
Preistrend für Bestandsimmobilien in Algermissen