Nachhaltig wohnen, sicher ankommen: Ihr Weg ins Eigenheim beginnt hier!
In ruhiger, familienfreundlicher Lage erwartet Sie ein liebevoll gepflegtes Zuhause mit viel Raum für Ihre persönlichen Wünsche.
Ihr Zuhause mit Herz und Verstand - Jetzt im Mietkaufmodell
63916 Amorbach
Die vollständige Adresse der Immobilie erhalten Sie vom Anbieter.
Auf Karte anzeigen
Die vollständige Adresse der Immobilie erhalten Sie vom Anbieter.
Infos
| Haustyp | Einfamilienhaus |
|---|---|
| Wohnfläche ca. | 139 m2 |
| Nutzfläche | 0 m2 |
| Grundstücksfläche | 545 m2 |
| Zimmer | 4 |
| Schlafzimmer | 3 |
| Badezimmer | 1 |
| Anzahl Garage/Stellplatz | 0 |
Kosten
| Kaltmiete |
1.290 € |
|---|---|
| Nebenkosten | keine Angabe |
| Heizkosten | keine Angabe |
| Gesamtmiete | 1.290 € |
Weiter mieten oder doch kaufen?
Wer in Miete wohnt, überweist dem Vermieter im Laufe der Jahre hohe Summen, die sich
auch in die eigenen vier Wände investieren lassen könnten.
Bausubstanz & Energieausweis
| Baujahr | 2025 |
|---|---|
| Qualität der Austattung | Gehoben |
| Heizungsart | Wärmepumpe |
Beschreibung des Objekts
Ausstattung
3 Schlafzimmer
großzügiges Wohn-/Esszimmer mit Zugang zur sonnigen Terrasse
Grüner Garten zur eigenen Nutzung - perfekt für Kinder oder naturnahes Gärtnern
Gute Anbindung an den öffentlichen Nahverkehr, Schulen und Einkaufsmöglichkeiten in der Nähe
Lage
Die Immobilie befindet sich in Amorbach, einer charmanten Kleinstadt im mittleren Odenwald. Amorbach zeichnet sich durch eine malerische Altstadt mit historischer Bausubstanz, gut erhaltenen Fachwerkhäusern und einer ruhigen, familienfreundlichen Atmosphäre aus. Der Ort verbindet ländlichen Charme mit einer überschaubaren Infrastruktur.
In der näheren Umgebung finden Sie Einkaufsmöglichkeiten, Bäcker, Apotheken und diverse gastronomische Angebote. Schulen, Kindergärten und soziale Einrichtungen sind bequem erreichbar, sodass Familien hier eine komfortable Infrastruktur vorfinden. Rund um Amorbach laden Wald- und Flusslandschaften zu Spaziergängen, Radtouren und Erholungsaktivitäten im Freien ein.
Die Verkehrsanbindung ist angenehm: Amorbach ist gut an den regionalen Bahn- und Busverkehr angebunden. Die umliegenden Autobahnen sind durch kurze Wege erreichbar, wodurch Ausflüge in umliegende Städte wie Miltenberg, Erbach, Würzburg oder Heidelberg unkompliziert möglich sind. Die zentrale Lage im Herzen des Odenwaldes bietet zudem kulturelle und Naturlandschaften in direkter Nähe.
Sonstige Angaben
Vereinbare einen persönlichen Beratungstermin, um über unser Miet-Kauf Modell zu sprechen.
Bitte beachte, dass die dargestellten Bilder und Grundrisse nur beispielhaft sind und unter Umständen Sonderbauteile enthalten, die nicht im angegebenen Preis enthalten sind.
Hab außerdem bitte Verständnis dafür, dass weitere Details zum angebotenen Grundstück erst nach einem persönlichen Gespräch bekanntgegeben werden und nur vollständige Anfragen bearbeitet werden können.
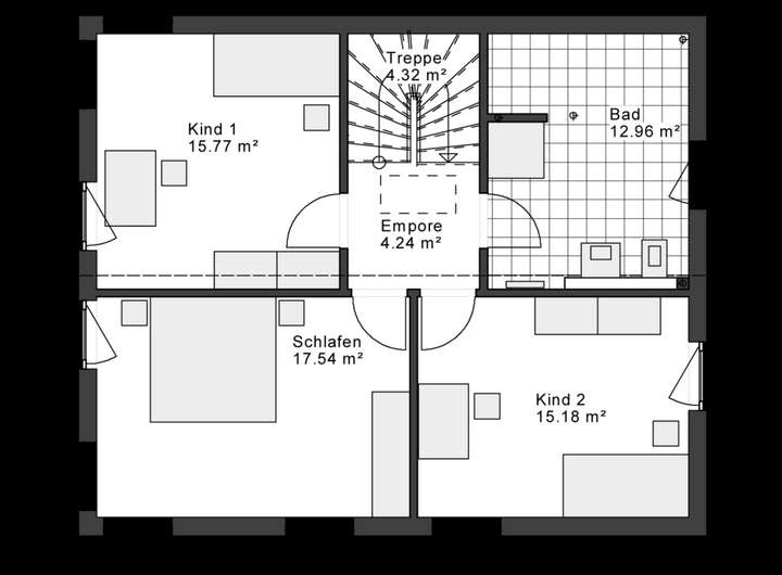
Grundriss
Grundriss EG
>
>
Grundriss OG
>
>
Adresse
63916 Amorbach
Interessante Orte
Preis- und Lageinformationen
Preistrend für Bestandsimmobilien in Amorbach