Wir freuen uns, Ihnen exklusiv dieses Grundstück mit einem gültigen Projekt und Baugenehmigung vorstellen zu dürfen, das sich in einer der Gebiete mit den paradiesischsten Stränden Mallorcas, Sa Rápita, befindet. Es ist eine ausgezeichnete Gelegenheit für alle, die ihr Zuhause sofort bauen möchten.
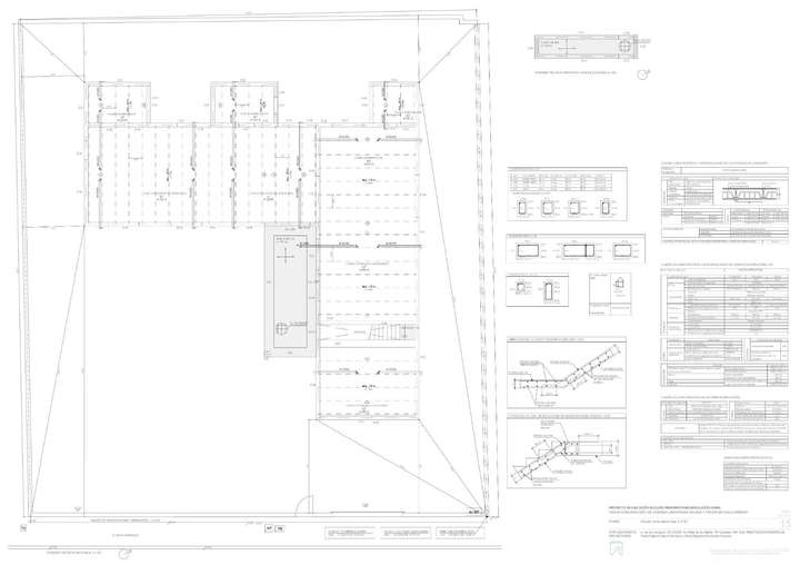
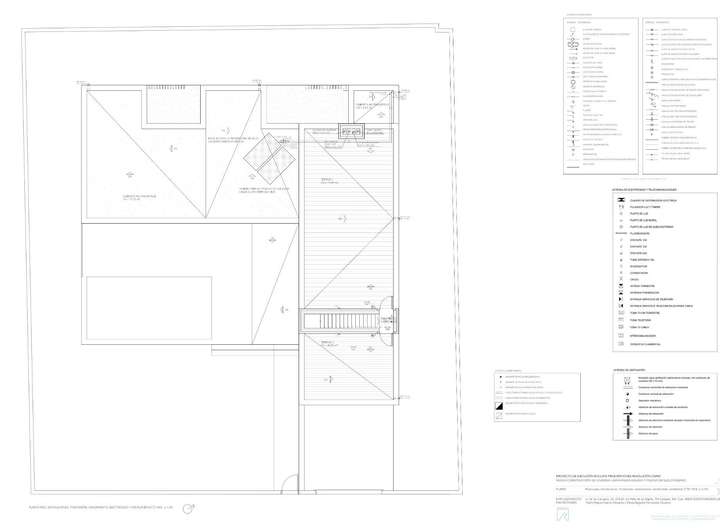
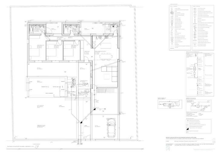
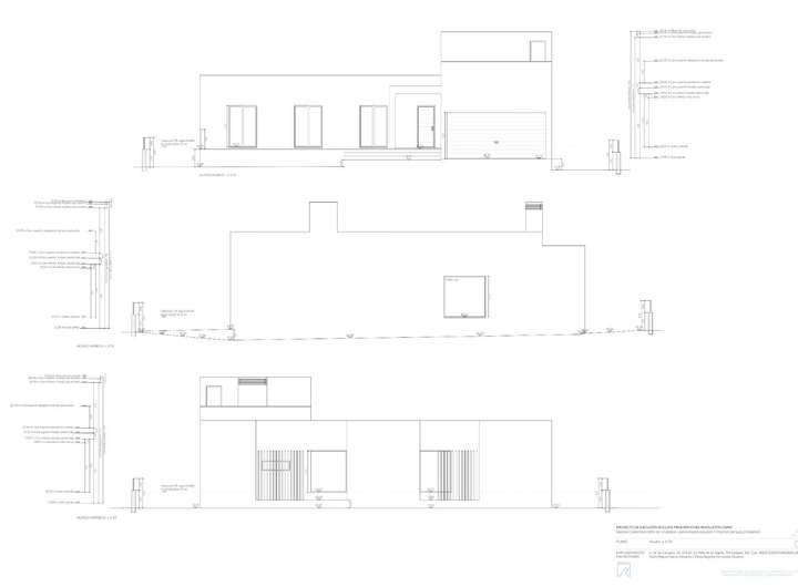
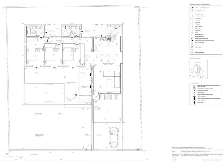
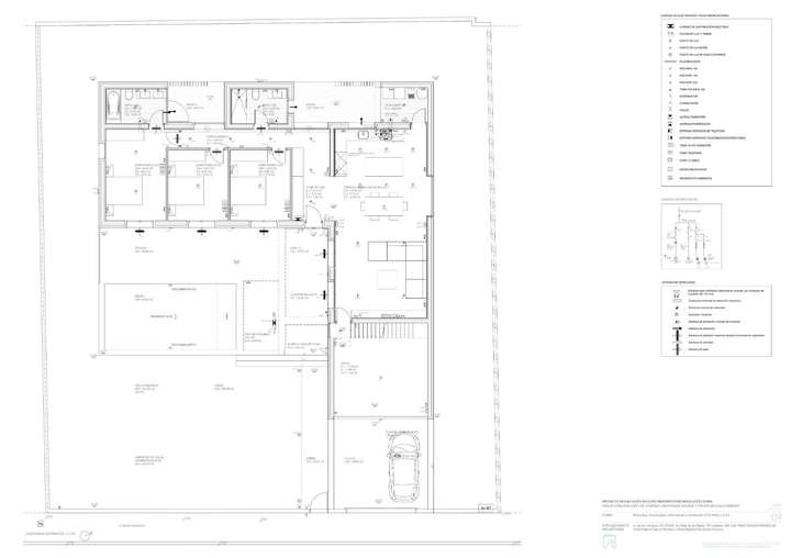
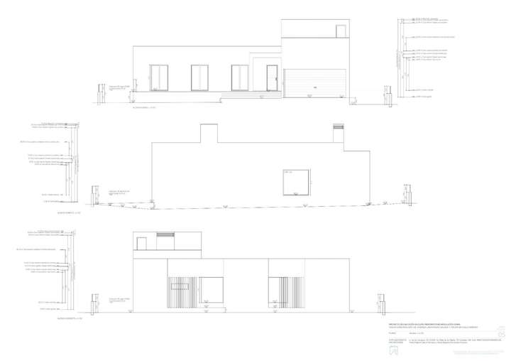
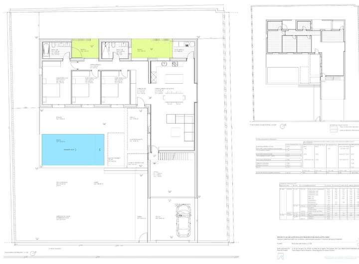
Mit einer Fläche von 613 Quadratmetern umfasst das genehmigte Projekt den Bau eines 250 m² großen Hauses, das folgende Merkmale beinhaltet:
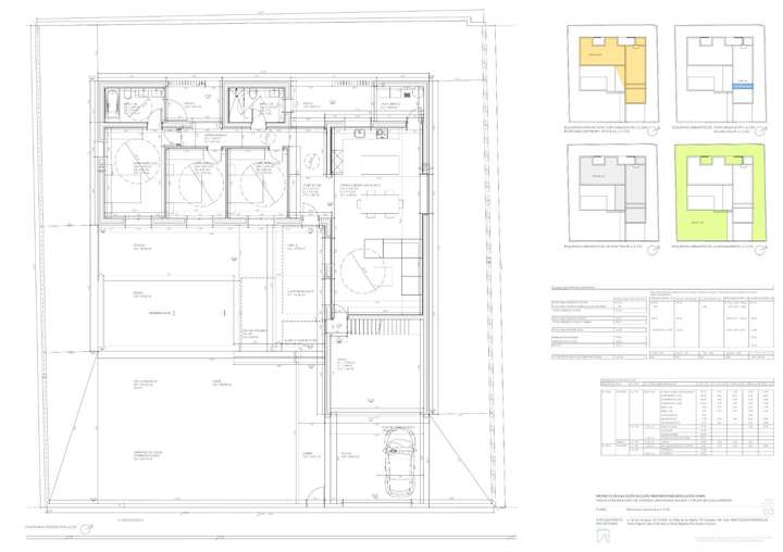
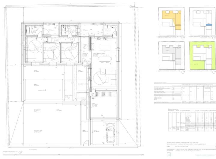
Erdgeschoss Wohnfläche: 157,26 m²
Geschlossener Keller-Garage: 29,12 m²
Überdachte Terrassen und Veranden: 39,12 m²
Schwimmbad: 24,50 m²
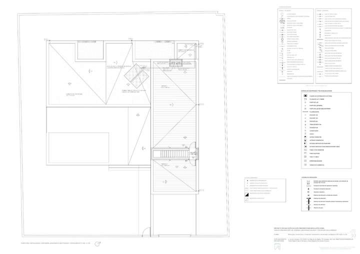
(Es kann eine zweite Etage in Betracht gezogen werden)
Das Highlight dieses Grundstücks ist, dass das Projekt bereits zur Ausführung bereit ist, sodass Sie nicht jahrelang auf den Baubeginn warten müssen, was eine schnelle und direkte Investition garantiert.
Die städtebauliche Lage verfügt über eine hervorragende Infrastruktur, da Wasser, Strom, Abwasser, Straßenbeleuchtung und Gehwege bereits installiert sind.
Die Lage in Sa Rápita bietet eine ruhige und wohnliche Umgebung auf Mallorca und ermöglicht es Ihnen, die Schönheit der Insel zu genießen, ohne auf die Nähe zu Dienstleistungen und Verkehrsanbindungen verzichten zu müssen.
Wenn Sie nach einem Grundstück auf Mallorca suchen, auf dem Sie den Bau Ihres Hauses sofort beginnen können, ist dies eine Gelegenheit, die Sie nicht verpassen sollten. Kontaktieren Sie uns für weitere Informationen und um einen Besichtigungstermin zu vereinbaren.
Verpassen Sie nicht diese großartige Gelegenheit und gestalten Sie das Haus Ihrer TRÄUME!
Weitere Informationen auf unserer Website: www.gestpropiedad.com (Ref: 07CJ082)
Registrierte Immobilienmakler bei ROAIIBE GOIBE722270/2024.
STÄDTISCHES GRUNDSTÜCK MIT PROJEKT UND GENEHMIGUNG IN SA RÁPITA
de sa Caragola, 15, 07639, Sa Ràpita 15,
07639 Campos
Auf Karte anzeigen
Finanzierungszertifikat
In nur zwei Minuten zu Ihrem persönlichen Finanzierungszertifkat.
Infos
| Vermarktungsart | Kaufen |
|---|---|
| Grundstücksfläche | 613 m2 |
Kosten
| Miete pro Jahr |
299.000 € |
|---|---|
| Provision | Nein |
Finanzierungsrechner:
Kaufpreis:
600.000 €
Eigenkapital:
600.000 €
Monatliche Rate
0 €
Effektiver Jahreszins
0 %
Sollzinsbindung
10 Jahre
Beschreibung des Objekts
Grundriss
foto1
>
>
foto2
>
>
foto3
>
>
foto4
>
>
foto5
>
>
foto6
>
>
foto7
>
>
foto8
>
>
foto9
>
>
foto10
>
>
foto11
>
>
foto12
>
>
foto13
>
>
foto14
>
>
foto15
>
>
foto16
>
>
foto17
>
>
foto18
>
>
foto19
>
>
foto20
>
>
foto21
>
>
foto22
>
>
foto23
>
>
foto24
>
>
foto25
>
>
foto26
>
>
foto27
>
>
foto28
>
>
foto29
>
>
foto30
>
>
foto31
>
>
foto32
>
>
foto33
>
>
foto34
>
>