Dieser Vierseitenhof, ehemals als Bauerhofanlage mit Viehhaltung genutzt hat seinen Ursprung Anfang 1920 und wurde seitdem immer wieder verändert, ergänzt, vergrößert, ausgebaut.
Der Wirtschaftshof, welcher an vier Seiten von Gebäuden, Mauern und einer Toreinfahrt umschlossen ist umfasst ca. 1000 m² und ist überwiegend befestigt/geflastert.
Straßenbegleitend erstreckt sich das Wohnhaus, mit Teilkeller, zwei Vollgeschossen und großem Dachboden mit BJ ca 1950. Teile des anliegenden Stall und Schuppen – Grenzbebauung zur westl. Grundstücksseiten - wurde 1984 aufgestockt und zu einer großzügigen Wohneinheit ausgebaut. Im EG befand sich viele Jahre eine Eisdiele, Schaufenster und Außenterrasse sind erhalten. Hier ist kleineres Gewerbe denkbar.
Eine große Scheune begrenzt den Hof südlich. Diese entstand auf einer Fläche von 250 m² und hat mittig einen Teilkeller und die typische Anordnung von Tenne, Heuboden etc.
Durch die Scheune gelangt man zu dem Gartenbereich.
Nutzung dieses Objektes ist in Vielfältiger Sicht denkbar.
Generationswohnen, Privat mit kleinem Gewerbe wie Friseur, Kosmetik oder für Tierliebhaber, z.b. Hundezucht oder als Anlage zur Vermietung. Hier können weitere Wohnungen aus dem Nebengelass entstehen.
Finanzierungszertifikat
In nur zwei Minuten zu Ihrem persönlichen Finanzierungszertifkat.
Infos
| Vermarktungsart | Kaufen |
|---|---|
| Grundstücksfläche | 2.698 m2 |
| Empfohlene Nutzung | Mehrfamilienhaus |
Kosten
| Miete pro Jahr |
254.000 € |
|---|---|
| Provision |
3,5 zzgl. MwSt |
Finanzierungsrechner:
Kaufpreis:
600.000 €
Eigenkapital:
600.000 €
Monatliche Rate
0 €
Effektiver Jahreszins
0 %
Sollzinsbindung
10 Jahre
Beschreibung des Objekts
Lage
Das Objekt liegt zentral an einer der Hauptadern durch den Ort, der Friedensstraße.
Langeneichstädt, ein durch die Landwirtschaft geprägter Ort, befindet sich im Randgebiet der Querfurter Platte und des Geiseltals, im süd/westlichen Saalekreis in Sachsen-Anhalt und ist seit 2006 ein Ortsteil der Stadt Mücheln (Geiseltal).
Entfernungen der nächst größeren Städte: nördlich Halle/Saale ca. 35 km, südlich Querfurth ca 20 km, Weißenfels westlich ca. 30 km
Sonstige Angaben
Die Gebäude befinden sich größtenteils in einem gutem bis sehr gutem Grundzustand. Die Straße ist fertig ausgebaut und an Strom, Wasser, Abwasser Telekom angeschlossen.
- Dacheindeckung Haupthaus 2008
- Heizungsanlage auf Öl 1992 und 2008 Ergänzung Solar Weißhaupt AuqaSol Speicher zur Unterstützung Heizung und Warmwasser, Benner neu
- Sanierung Badezimmer 2007
- Kunststofffenster Doppelverglasung 1995
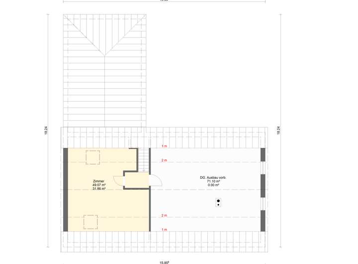
Wohnfläche ca. 350 m² aktuell auf zwei Wohneinheiten, Gewerbefläche ca 50 m², Nutzfläche ca 550 m²
Grundriss
EG
>
>
OG
>
>
DG
>
>
Keller
>
>