Kein Grundstück und kein Einfamilienhaus von der Stange — sondern eine durchdachte, wertbeständige Bauvision mit Mehrwert.
Wohnbaugrundstück mit genehmigtem Neubauprojekt in Augsburg – Hochzoll Süd
Hopfenseeweg 12, 86163 Augsburg | Flur-Nr. 2994/270 | Gemarkung Hochzoll
Grundstück und baurechtliche Situation:
Das hier angebotene vollerschlossene Grundstück mit einer Fläche von ca. 270 m² liegt in begehrter Wohnlage von Augsburg-Hochzoll Süd. Für das Grundstück liegt bereits eine rechtskräftige Baugenehmigung für die Errichtung eines modernen Einfamilienhauses mit Carport vor!
Bauvorhaben im Überblick:
- Geplantes Bauobjekt: Einfamilienhaus mit Carport
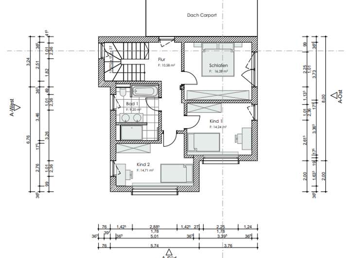
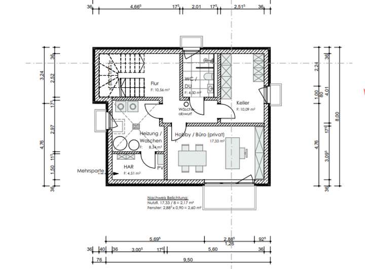
- Gesamte Wohnfläche: ca. 145 m²
- Bauweise: KG, EG, OG, Flachdach mit statisch möglicher Dachterrassennutzung
- Genehmigte Nutzung: Einliegerwohnung oder Büronutzung im Kellergeschoss mit separatem Außenzugang möglich
- Bauvorbereitet: kein Altbestand vorhanden – sofort bebaubar
- Nachhaltigkeit: Dach kann mit PV-Anlage ausgestattet und begrünt werden für optimierte Ökobilanz und längere Lebensdauer
Zusammenfassung:
Das Grundstück bietet mit seiner baugenehmigten Planung und der hervorragenden Mikrolage eine außerordentlich attraktive Investitions- und Bauchance.
Die flexible Nutzung (Einfamilienhaus + optionale Einliegerwohnung/Büro), die ökologische Bauweise (begrüntes Dach), die sofortige Bebaubarkeit und die exzellente Infrastruktur im direkten Umfeld heben dieses Angebot deutlich vom Marktstandard ab.
Fazit: Ein hochinteressantes Projekt für Familien, Selbstständige oder Kapitalanleger, die in einem der gefragtesten Stadt-teile Augsburgs nachhaltig investieren möchten.
Baugrundstück mit Baugenehmigung: EFH mit Carport in Top-Lage von Augsburg-Hochzoll Süd
Hopfenseeweg 16,
86163 Augsburg
Auf Karte anzeigen
Finanzierungszertifikat
In nur zwei Minuten zu Ihrem persönlichen Finanzierungszertifkat.
Infos
| Vermarktungsart | Kaufen |
|---|---|
| Grundstücksfläche | 270 m2 |
| Erschließung | Erschlossen |
| Empfohlene Nutzung | Einfamilienhaus |
| Bebaubar nach | wie Nachbarbebauung |
| Verfügbar ab | sofort |
Kosten
| Miete pro Jahr |
389.000 € |
|---|---|
| Provision |
2,38% inkl. Mehrwertsteuer inkl. MwSt. |
Finanzierungsrechner:
Kaufpreis:
600.000 €
Eigenkapital:
600.000 €
Monatliche Rate
0 €
Effektiver Jahreszins
0 %
Sollzinsbindung
10 Jahre
Beschreibung des Objekts
Lage
Hochzoll Süd zählt zu den gefragtesten und familienfreundlichsten Wohnlagen im Stadtgebiet Augsburg. Die Kombination aus hervorragender Infrastruktur, naturnaher Umgebung und optimaler Verkehrsanbindung macht diesen Standort besonders attraktiv für Eigennutzer und Kapitalanleger.
Entfernungen zu wichtigen Standortfaktoren (fußläufig bzw. per Rad):
Bahnhof Augsburg-Hochzoll: ca. 950 m (ca. 12 Gehminuten) → direkte Anbindung an Augsburg Hbf und München
Kuhsee & Naherholungsgebiet Lechauen: ca. 750 m (ca. 10 Gehminuten) → perfekte Erholung vor der Haustür
Apotheke Hochzoll Süd (Werdenfelser Apotheke): ca. 220 m (ca. 3 Gehminuten)
Grundschule Hochzoll Süd: ca. 450 m (ca. 6 Gehminuten)
Kindergarten: ca. 500 m (ca. 7 Gehminuten)
Realschule und Gymnasium: ca. 1.200 m (ca. 5 Min. per Fahrrad)
Supermarkt (REWE / Netto): ca. 350 m (ca. 4 Gehminuten)
Ärztezentrum Hochzoll Süd: ca. 600 m (ca. 8 Gehminuten)
Tram- & Bus-Haltestelle: ca. 300 m → direkte Verbindung in die Innenstadt
Weitere Standortvorteile:
Ruhige Wohnstraße ohne Durchgangsverkehr
Sehr gute Anbindung an die B17, A8 sowie die Augsburger Innenstadt
Hoher Freizeitwert durch unmittelbare Nähe zu Lech, Kuhsee und Siebentischwald
Zukunftssichere Lage mit positiver Wertentwicklung
Sonstige Angaben
Wir freuen uns auf Ihre Anfrage. Gerne lassen wir Ihnen weitere Informationen zu dieser Immobilie zukommen. Füllen Sie hierzu bitte das Kontaktformular vollständig aus.
Damit wir Ihnen sofort das Exposé zuschicken können, benötigen wir nach der Neuregelung im Verbraucherrecht Ihre Zustimmung.
Für Fragen und zur Vereinbarung eines Besichtigungstermins stehe ich Ihnen höchstpersönlich zur Verfügung.
Herr Simon Koch unter der Mobil-Nr. 0179-8740077
Da die Maklerprovision selbstverständlich nur dann anfällt, wenn Sie die Immobilie auch tatsächlich kaufen, bleibt Ihre Anfrage insoweit unverbindlich und kostenfrei.
Alle Angaben sind ohne Gewähr und basieren ausschließlich auf Angaben des Auftraggebers. Eine Haftung für Vollständigkeit, Richtigkeit und Aktualität kann nicht übernommen wer- den. Zwischenverkauf vorbehalten.
Sie möchten auch Ihre Immobilie verkaufen oder vermieten? Wir sind Ihr kompetenter Immobilienmakler im Raum Augsburg, Füssen, Garmisch-Partenkirchen, Landsberg am Lech und München.
Sie haben Fragen? Wir beraten Sie gerne!
Sie erreichen uns telefonisch, per Email oder über das Kontaktformular. Gerne beantworten wir im Vorfeld alle relevanten Fragen. Wir freuen uns auf Ihre Nachricht.