Dieser großzügige Bungalow mit separater Einliegerwohnung präsentiert sich als seltene Gelegenheit in ruhiger Lage von Sponheim bei Bad Kreuznach. Auf einer Wohnfläche von rund 220 m² und einem Grundstück von 535 m² verbindet das Objekt viel Platz, solide Bausubstanz und attraktive Nutzungsmöglichkeiten. Ob Mehrgenerationenwohnen, Wohnen & Arbeiten oder eine zusätzliche Einnahmequelle durch Vermietung – das Haus bietet eine hohe Flexibilität und ein außergewöhnliches Raumangebot. Die Kombination aus massiver Bauweise, gepflegtem Zustand und moderner Heiztechnik schafft eine nachhaltige Grundlage für zukünftige Eigentümer.Der Bungalow wurde 1968 in massiver Bauweise errichtet und über die Jahre fortlaufend gepflegt und modernisiert. Das Herzstück bildet die Hauptwohnung mit offen gestalteten Wohnbereichen und großflächigen Fenstern. Zusätzlich steht eine separate Einliegerwohnung zur Verfügung, ideal für Gäste, Familienmitglieder oder eine Vermietung.
Familienidylle in Sponheim – Bungalow mit Garten, Pool und Einliegerwohnung
55595 Sponheim
Die vollständige Adresse der Immobilie erhalten Sie vom Anbieter.
Auf Karte anzeigen
Die vollständige Adresse der Immobilie erhalten Sie vom Anbieter.
Finanzierungszertifikat
In nur zwei Minuten zu Ihrem persönlichen Finanzierungszertifkat.
Infos
| Etagenzahl | 1 |
|---|---|
| Wohnfläche ca. | 170 m2 |
| Grundstücksfläche | 535 m2 |
| Zimmer | 5 |
| Schlafzimmer | 3 |
| Badezimmer | 2 |
| Garage/Stellplatz | Garage |
| Anzahl Garage/Stellplatz | 1 |
Kosten
| Kaufpreis |
369.000 € |
|---|---|
| Provision |
Käuferprovision beträgt 3,57 % (inkl. MwSt.) des beurkundeten Kaufpreises |
Finanzierungsrechner:
Kaufpreis:
600.000 €
Eigenkapital:
600.000 €
Monatliche Rate
0 €
Effektiver Jahreszins
0 %
Sollzinsbindung
10 Jahre
Bausubstanz & Energieausweis
| Baujahr | 1968 |
|---|---|
| Letzte Sanierung | 2021 |
| Bauphase | Haus fertig gestellt |
| Objektzustand | Gepflegt |
| Qualität der Austattung | Einfach |
| Heizungsart | Zentralheizung |
| Wesentliche Energieträger | Öl |
| Energieausweis | liegt vor |
| Energieausweistyp | Bedarfsausweis |
| Energieverbrauchskennwert | 315,6 kWh/(m²*a) |
| Energieeffizienzklasse | H |
315,6
kWh/(m²*a)
Energieeffizienzklasse H
- A+
- A
- B
- C
- D
- E
- F
- G
- H
- 0
- 25
- 50
- 75
- 100
- 125
- 150
- 175
- 200
- 225
- >250
Beschreibung des Objekts
Ausstattung
Wohnfläche gesamt ca. 220 m², Grundstück ca. 535 m², zusätzliche Nutzfläche ca. 75 m²
5 Zimmer, davon 3 Schlafzimmer, 2 Badezimmer
Einliegerwohnung separat zugänglich
Neue Ölheizung, gepflegte Zentralheizung, ummantelte Öltanks
Doppelt verglaste Fenster
Massive Bauweise, Satteldach
Fliesenböden, teilweise aufgearbeitete Holzböden
Garten mit Swimmingpool (Pool 4 x 8 m), Gartennutzung, Terrasse
Einbauküche, Gäste-WC, Kamin
2 Außenstellplätze, weitere Flächen möglich
Unterkellert, großzügige Nutzflächen
Modernisierungen in den letzten Jahren, u. a. neue Ölheizung, Poolsanierung 2021
Außenwände mit 24 cm Dicke - außen Putz - innen 3 cm Styropor und Rigips
Innenausbau nichtragende Wände mit Rigipsplatten
Dieses vielseitige Raumangebot eignet sich perfekt für Familien mit Platzbedarf, Homeoffice-Konzepte oder Kapitalanleger, die Mieteinnahmen aus einer Einliegerwohnung generieren möchten.
Lage
Der Bungalow befindet sich in einer bevorzugten, ruhigen Wohnlage von Sponheim, einer traditionsreichen Weinbaugemeinde im Landkreis Bad Kreuznach. Die Umgebung ist geprägt von gepflegten Einfamilienhäusern, Weinbergen, sanften Hügeln und viel Natur. Trotz dieser idyllischen Lage profitieren Sie von einer guten Erreichbarkeit der regionalen Zentren.
Vor Ort:
Sponheim bietet eine sehr gute Grundversorgung und ein lebendiges Gemeindeleben. Neben Weingütern, Gastronomiebetrieben und kleinen Handwerksfirmen finden sich Sport- und Freizeitangebote, Vereine sowie ein Kindergarten. Das nahe gelegene Wallhausen und Rüdesheim/Nahe erweitern das Angebot um weitere Geschäfte, Ärzte, Apotheken und Grundschulen.
Bildung und Betreuung:
Kindergarten in Sponheim selbst
Grundschulen in den Nachbargemeinden (z. B. Wallhausen, Gutenberg)
Weiterführende Schulen, Berufs- und Fachschulen in Bad Kreuznach (15 Autominuten)
Hochschulen und Universitäten in Mainz und Bingen in ca. 35–40 Minuten erreichbar
Freizeit und Erholung:
Golfclub Stromberg & Land & Golfhotel Stromberg in ca. 10 Minuten Fahrzeit
Premiumwanderwege wie der Soonwaldsteig, der Nahehöhenweg oder der Rhein-Nahe-Weinwanderweg starten quasi vor der Haustür
Nahetal und Rheinhessen bieten ein reiches Angebot an Weingütern, Straußwirtschaften und Restaurants
Sportplätze, Tennis, Reitmöglichkeiten und Hallenbäder in den umliegenden Gemeinden
Naturfreunde profitieren von Rad- und Wanderwegen in die Weinberge und zum Hunsrück
Verkehrsanbindung:
Trotz der ruhigen Lage ist Sponheim hervorragend angebunden:
Bad Kreuznach Innenstadt: ca. 15 Minuten
Bingen am Rhein: ca. 20 Minuten
Mainz/Wiesbaden: ca. 35–40 Minuten
Flughafen Frankfurt: ca. 50–55 Minuten
Autobahn A61 (Anschluss Richtung Mainz/Koblenz): ca. 15 Minuten
Bahnhöfe in Langenlonsheim und Bad Kreuznach mit direkten Verbindungen nach Mainz, Bingen, Koblenz und Frankfurt
Diese Kombination aus erholsamer, naturnaher Lage und hervorragender Infrastruktur macht Sponheim zu einem besonders attraktiven Wohn- und Investitionsstandort. Sie genießen Ruhe, Natur und Privatsphäre – und bleiben dennoch flexibel in alle Richtungen.
Sonstige Angaben
GELDWÄSCHE: Als Immobilienmaklerunternehmen ist die von Poll Immobilien GmbH nach § 2 Abs. 1 Nr. 14 und § 11 Abs. 1, 2 Geldwäschegesetz (GwG) dazu verpflichtet, bei der Begründung einer Geschäftsbeziehung die Identität des Vertragspartners festzustellen und zu überprüfen, bzw. sobald ein ernsthaftes Interesse an der Durchführung des Immobilienkaufvertrages besteht. Hierzu ist es erforderlich, dass wir nach § 11 Abs. 4 GwG die relevanten Daten Ihres Personalausweises festhalten (wenn Sie als natürliche Person handeln) – beispielsweise mittels einer Kopie. Bei einer juristischen Person benötigen wir eine Kopie des Handelsregisterauszugs, aus welchem der wirtschaftlich Berechtigte hervorgeht. Das Geldwäschegesetz sieht vor, dass der Makler die Kopien bzw. Unterlagen fünf Jahre aufbewahren muss. Als unser Vertragspartner haben Sie auch eine Mitwirkungspflicht nach § 11 Abs. 6 GwG.
HAFTUNG: Wir weisen darauf hin, dass die von uns weitergegebenen Objektinformationen, Unterlagen, Pläne etc. vom Verkäufer bzw. Vermieter stammen. Eine Haftung für die Richtigkeit oder Vollständigkeit der Angaben übernehmen wir daher nicht. Es obliegt daher unseren Kunden, die darin enthaltenen Objektinformationen und Angaben auf ihre Richtigkeit hin zu überprüfen. Alle Immobilienangebote sind freibleibend und vorbehaltlich Irrtümer, Zwischenverkauf- und Vermietung oder sonstiger Zwischenverwertung.
UNSER SERVICE FÜR SIE ALS EIGENTÜMER:
Planen Sie den Verkauf oder die Vermietung Ihrer Immobilie, so ist es für Sie wichtig, deren Marktwert zu kennen. Lassen Sie kostenfrei und unverbindlich den aktuellen Wert Ihrer Immobilie professionell durch einen unserer Immobilienspezialisten einschätzen. Unser bundesweites und internationales Netzwerk ermöglicht es uns, Verkäufer bzw. Vermieter und Interessenten bestmöglich zusammenzuführen.
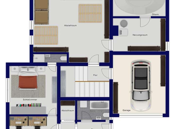
Grundriss
Erdgeschoss
>
>
Kellergeschoss mit Einliegerwo
>
>
Adresse
55595 Sponheim
Interessante Orte
Preis- und Lageinformationen
Preistrend für Bestandsimmobilien in Sponheim