Dieses charmante Einfamilienhaus aus dem Jahr 1938 bietet auf ca.147m² Wohnfläche, verteilt auf zwei Etagen, jede Menge Raum für individuelle Wohnideen. Mit insgesamt fünf Zimmern, einer Küche und einem Badezimmer im Erdgeschoss eignet es sich ideal für Familien, die Platz zum Leben und Gestalten suchen.
Das großzügige Grundstück mit etwa 800m² eröffnet zahlreiche Möglichkeiten. Hier lassen sich Gartenwünsche verwirklichen, gemütliche Sitzecken gestalten oder kleine Anbauflächen anlegen. Neben dem Haupthaus stehen praktische Nebengebäude zur Verfügung, darunter eine große Scheune, eine Garage, ein Waschhaus, eine kleine Werkstatt sowie ein Weinkeller unter dem Waschhaus. Diese Kombination macht das Anwesen nicht nur vielseitig nutzbar, sondern verleiht ihm auch einen besonderen Charme.
Die Heizungsanlage wurde zwar erst 2017 erneuert, jedoch befindet sich das Haus insgesamt in einem eher sanierungsbedürftigen Zustand. Gerade darin liegt aber für kreative Köpfe und junge Familien eine wunderbare Chance. Wer den Mut hat, eigene Ideen einfließen zu lassen, kann hier ein Zuhause mit unverwechselbarem Charakter und Geschichte schaffen. Die mit KI erstellten „Renovierungsbilder“ laden Sie ein, Ihren Möglichkeiten freien Lauf zu lassen, sie sind als Inspiration gedacht und möchten Ihnen aufzeigen, welches Potenzial in diesem Haus steckt. Zusätzlichen Rückenwind gibt das KfW-Förderprogramm 308 „Jung kauft Alt“, das junge Familien bei der Sanierung unterstützt und damit den Traum vom Eigenheim noch greifbarer macht.
Die Lage überzeugt durch ihre ruhige, familienfreundliche Umgebung mit guter Erreichbarkeit von Einkaufsmöglichkeiten, Schulen, Kindergärten und ärztlicher Versorgung. Auch die Anbindung an den öffentlichen Nahverkehr und überregionale Verkehrswege ist gewährleistet.
Dieses Einfamilienhaus vereint Geschichte, Charme und enormes Potenzial. Es richtet sich besonders an junge Familien, die mit Liebe zum Detail und Unterstützung durch staatliche Förderungen ihr eigenes Zuhause nach Maß erschaffen möchten.
Familienidyll aus den `30ern mit Garten, Scheune, Garage, Nebengelass- Ihr Heim voller Möglichkeiten
06774 Pouch
Die vollständige Adresse der Immobilie erhalten Sie vom Anbieter.
Auf Karte anzeigen
Die vollständige Adresse der Immobilie erhalten Sie vom Anbieter.
Finanzierungszertifikat
In nur zwei Minuten zu Ihrem persönlichen Finanzierungszertifkat.
Infos
| Haustyp | Einfamilienhaus |
|---|---|
| Etagenzahl | 2 |
| Wohnfläche ca. | 147 m2 |
| Grundstücksfläche | 800 m2 |
| Bezugsfrei ab | sofort |
| Zimmer | 5 |
| Schlafzimmer | 4 |
| Badezimmer | 1 |
| Garage/Stellplatz | Garage |
Kosten
| Kaufpreis |
195.900 € |
|---|---|
| Provision |
3,57 % inkl. 19 % Umsatzsteuer Provisionsteilung - hälftige Käufer- bzw. Verkäuferprovision in Höhe von 3,57 % inkl. 19 % Umsatzsteuer vom endgültigen Erwerbspreis (fällig für den Käufer bei Vertragsabschluss und nach Eingang der Verkäuferprovision) |
Finanzierungsrechner:
Kaufpreis:
600.000 €
Eigenkapital:
600.000 €
Monatliche Rate
0 €
Effektiver Jahreszins
0 %
Sollzinsbindung
10 Jahre
Bausubstanz & Energieausweis
| Baujahr | 1938 |
|---|---|
| Letzte Sanierung | 2017 |
| Bauphase | Haus fertig gestellt |
| Qualität der Austattung | Einfach |
| Heizungsart | Gas-Heizung |
| Wesentliche Energieträger | Erdgas schwer |
| Energieausweis | liegt vor |
| Energieausweistyp | Bedarfsausweis |
| Energieverbrauchskennwert | 278,0 kWh/(m²*a) |
| Energieeffizienzklasse | H |
278,0
kWh/(m²*a)
Energieeffizienzklasse H
- A+
- A
- B
- C
- D
- E
- F
- G
- H
- 0
- 25
- 50
- 75
- 100
- 125
- 150
- 175
- 200
- 225
- >250
Beschreibung des Objekts
Ausstattung
* ca.147m² Wohnfläche
* Rollläden
* Heizungsanlage: Baujahr 2017
* ca. 800m² großes Grundstück
* sonniger, ruhiger Garten
* Scheune
* Garage
* Nebengelass
Lage
Der Ortsteil Pouch strahlt eine ruhige, naturnahe Atmosphäre mit dörflichem Charme aus, eingebettet in weitläufige Auenlandschaften und direkt an gleich zwei Gewässern gelegen.
Nur etwa 200m vom Haus entfernt erreicht man den Muldestausee, der sich hervorragend zum Angeln eignet und sogar einen kleinen Seglerhafen bietet. In rund 400m Entfernung liegt zudem der Goitzschesee, einer der beliebtesten Seen der Region, der mit vielfältigen Freizeitmöglichkeiten wie Baden, Radfahren, Wandern und Wassersport lockt. Wer Tiere liebt, findet in der Muldeaue, nur ca. 2km entfernt, eine Alpaka-Farm, ein besonderer Ort für Familienausflüge.
Verkehrsanbindung:
Regionale Buslinien verbinden Pouch mit den umliegenden Gemeinden und der Bahnstation Bitterfeld. Über die B100 und B183 besteht ein schneller Anschluss ans überregionale Straßennetz; die neue Muldebrücke (geplant bis 2027) wird dies weiter verbessern. Nach Leipzig gelangt man mit Bus und Bahn in ca. 1,5 Stunden.
Einkaufen & Versorgung:
Im Ort finden sich ein großer Edeka, ein Fleischer sowie kleinere Läden und Bäcker, weitere Einkaufsmöglichkeiten bietet Bitterfeld in wenigen Fahrminuten. Apotheken und medizinische Einrichtungen sichern die lokale Gesundheitsversorgung.
Erholung & Natur:
Der Goitzschesee und die Muldeaue bieten ideale Bedingungen für Naturgenuss und Freizeitaktivitäten. Das nahe Naturschutzgebiet Muldetalhang Rösa lädt zum Wandern ein, während Schloss Pouch mit Parkanlagen historische und kulturelle Akzente setzt.
Kultur & Freizeit:
Neben Schloss Pouch mit dem markanten „Roten Turm“ locken Veranstaltungen wie das bekannte Sputnik Springbreak Festival. Kulturelle Angebote in Bitterfeld-Wolfen oder Dessau sind schnell erreichbar.
Bildung:
Schulen befinden sich in den Nachbarorten und in Bitterfeld-Wolfen, Hochschulen und Ausbildungsstätten in Bitterfeld, Dessau und Leipzig.
Die Lage vereint Ruhe und Natur unmittelbar vor der Haustür mit einer überraschend guten Anbindung und vorhandener Infrastruktur, perfekt für alle, die naturnah leben möchten, ohne dabei auf Nähe und Erreichbarkeit verzichten zu müssen
Sonstige Angaben
Vollständigkeit der Angaben:
Der Makler weist darauf hin, dass die von ihm weitergegebenen Objektinformationen vom Verkäufer bzw. von einem vom Verkäufer beauftragten Dritten stammen und von ihm, dem Makler, auf ihre Richtigkeit nicht überprüft worden sind. Es ist Sache des Kunden, diese Angaben auf ihre Richtigkeit hin zu überprüfen. Der Makler, der diese Informationen nur weitergibt, übernimmt für die Richtigkeit keinerlei Haftung.
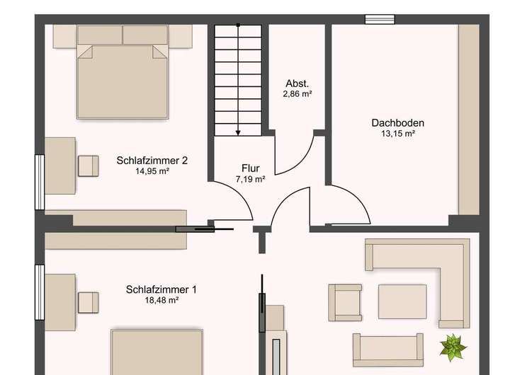
Grundriss
Grundriss EG
>
>
Grundriss DG
>
>
Adresse
06774 Pouch
Interessante Orte
Preis- und Lageinformationen
Preistrend für Bestandsimmobilien in Pouch